200 000 Р 2 480 $ или 2 160

Информация о гараже

18 м2
Площадь

Территория

СТО
рядом
Автомойка
рядом
Развернуть
Агент
+7 (923) 073-11-59
Начать чат с агентом

Гараж в Тюменская область, Ишим Тюменская ул., 55 (18 м)

Гараж, площадь 18 кв.м., адрес (местонахождение): Россия, обл Тюменская, г Ишим, ул Тюменская, дом 55, корпус строение 4, гараж-бокс 35, кадастровый (условный) номер: 72:25:0101010:2657

Читать полностью

    Для того, чтобы купить гараж площадью 18 кв. метров по адресу: Ишим, ул. Тюменская, 55, позвоните по телефону +7 (923) 073-11-59. Торопитесь! Объявление №40003143745 о продаже гаража площадью 18 кв. метров опубликовано Сегодня.

    Позвонить Написать
    200 000 Р2 480 $ или 2 160
    Агент
    +7 (923) 073-11-59
    Начать чат с агентом
    Похожие предложения
    Гараж в Тюменская область, Тюмень Таврическая ул., 9Бс2 (13 м) - Фото 1
    Гараж в Тюменская область, Тюмень Таврическая ул., 9Бс2 (13 м) - Фото 2
    общая площадь 13м²

    Продается машиноместо в центре города площадь 13 кв.м. , Паркинг обслуживает Управляющая Компания, ведется видео наблюдение, установлена система пожарной безопасности, вентиляции. Машиноместо на 1 этаже.Подъезд и выезд с паркинга осуществляется по удобной...
    • 13 м²
    210 000 Р
    Агент
    +7 (919) Показать номер
    Посмотреть контакты
    Гараж в Тюменская область, Тюмень Солнечный проезд, 7 (19 м) - Фото 1
    Гараж в Тюменская область, Тюмень Солнечный проезд, 7 (19 м) - Фото 2
    общая площадь 19м²

    Продаётся удобное и надежное машино-место площадью 18,6 квадратных метров в благоустроенном подземном паркинге Заречного микрорайона. Отличительной особенностью данного паркинга являются комфортные условия хранения вашего автомобиля круглый год благодаря...
    • 19 м²
    195 000 Р
    Агент
    +7 (982) Показать номер
    Посмотреть контакты
    Гараж в Тюменская область, Тюмень ул. Дружбы, 73к5 (16 м) - Фото 1
    Гараж в Тюменская область, Тюмень ул. Дружбы, 73к5 (16 м) - Фото 2
    общая площадь 16м²

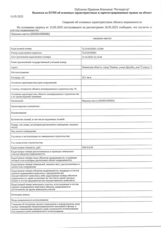
    Данные получены с сайта ГИС Торги.Должник: Макушкин В.А, собственник: Макушкин В.А. Лот: Машино-место, площадь 16,1 кв.м., кадастровый номер: 72:23:0105001:12594, г. Тюмень, ул. Дружбы, д. 73 корп. 5, пом.1, место 103, н/ц:., з-к:, код: 0001, рег.;...
    • 16 м²
    202 980 Р
    Агент
    +7 (982) Показать номер
    Посмотреть контакты
    Гараж в Свердловская область, Нижний Тагил Ульяновская ул. (20 м) - Фото 1
    Гараж в Свердловская область, Нижний Тагил Ульяновская ул. (20 м) - Фото 2
    общая площадь 20м²

    Продается просторный и ухоженный гараж в кооперативе Горняк-1 на Ульяновской. Площадь: 19,8 кв.м. — места хватит для автомобиля и организации мастерской или зоны хранения. Состояние: Гараж содержится в идеальной чистоте. Стены побелены, что создает...
    • 20 м²
    195 000 Р
    Агент
    +7 (982) Показать номер
    Посмотреть контакты
    Гараж в Владимирская область, Муром Совхозная ул., 64/2 (26 м) - Фото 1
    Гараж в Владимирская область, Муром Совхозная ул., 64/2 (26 м) - Фото 2
    общая площадь 26м²

    Продаётся гараж площадью 26 м, расположенный в микрорайоне Фанерный , в непосредственной близости от жилого дома по адресу Совхозная улица, 64/2. Гараж и земельный участок под ним находятся в собственности, что гарантирует юридическую чистоту сделки....
    • 26 м²
    200 000 Р
    Агент
    +7 (919) Показать номер
    Посмотреть контакты

    Не нашли подходящего объявления?

    Оставьте заявку, и наши риэлторы подберут гараж в районе Ишима

    (0)