4 300 000 Р 55 830 $ или 47 120

Информация о коттедже

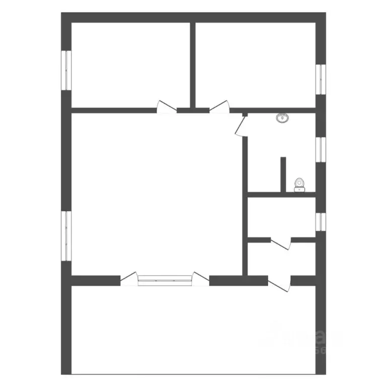
41 м2
Площадь
1
Этажность
12 cоток
Участок

Дополнительная информация

Дом продаётся вместе с участком
есть
Развернуть
Агент
+7 (967) 381-42-89
Начать чат с агентом

Дом в Ишим, улица Бажова (41.4 м)

-ТОЛЬКО ПРОВЕРЕННЫЕ СОБСТВЕННИКИ И РЕАЛЬНЫЕ КВАРТИРЫ -МЫ ОТВЕЧАЕМ ЗА ДЕЙСТВИЯ СОБСТВЕННИКОВ: В СЛУЧАЕ ГАРАНТИЙНОГО СЛУЧАЯ МЫ ОБЕСПЕЧИМ ПЕРЕСЕЛЕНИЕ И ФИНАНСОВУЮ ГАРАНТИЮ Продается очень уютный ,светлый, теплый дом в Залинейной части города Ишима. Дом шлаколитой, в отличном состоянии. Проведены все коммуникации: центральный водопровод, газовое отопление, септик на 5 кубов. Все это позволило организовать теплый санузел в доме, установлена душевая кабинка. Ванная комната очень просторная и в ней даже есть окно, что сейчас является очень модным элементом дизайна квартир. Водонагреватель позволяет пользоваться горячей водой и в ванной комнате и на кухне круглогодично. У дома заменена крыша, что убережет вас от лишних денежных вложений.. Ворота металлические, палисадник- деревянный штакетник.В доме выполнен косметический ремонт.Окна пластиковые. Обои в светлых оттенках, на полу линолеум, на потолке плитка. Есть возможность сделать еще одну комнату. В доме имеется подпол и на улице погреб. Можно хранить овощи с огорода и консервацию. В них сухо, воды не бывает. Во дворе имеется аккуратный сарайчик и навес. Земельный участок 12 соток, земля обрабатывается. Имеются многолетние насаждения: смородина ,жимолость, виноград уже плодоносит,яблоня, облепиха, крыжовник, виктория. Двор содержится в идеальном порядке, завершает картину новый асфальт на улице, обеспечивающий хорошую транспортную доступность. Это предложение для тех, кто ищет добротный, полностью обустроенный дом для жизни без необходимости вложений в ремонт и инфраструктур.Приглашаем на просмотр заинтересованных покупателей.Код пользователя: 141464Номер в базе:

Читать полностью

    Для того, чтобы купить 1-этажный коттедж по адресу: Ишим, ул. Бажова, позвоните по телефону +7 (967) 381-42-89. Торопитесь! Объявление №50016750520 о продаже одноэтажного коттеджа опубликовано Вчера.

    Позвонить Написать
    4 300 000 Р55 830 $ или 47 120
    Агент
    +7 (967) 381-42-89
    Начать чат с агентом
    Похожие предложения
    Коттедж в Тюменская область, Тюменский муниципальный округ, с. Кулига, ... - Фото 1
    Коттедж в Тюменская область, Тюменский муниципальный округ, с. Кулига, ... - Фото 2
    1 этаж, общая площадь 67м², участок 5 соток

    Продается уютный дом общей площадью 67 м, из которых 47 м составляют теплый контур, а также удобная терраса площадью 20 м. Это идеальный вариант для семейной жизни или отдыха на природе Дом каркасного типа, утепленный качественными материалами, что гарантирует...
    • 1 эт.
    • 67 м²
    • 5 сот.
    4 400 000 Р
    Агент
    +7 (982) Показать номер
    Посмотреть контакты
    Коттедж в Тюменская область, Тюмень ул. Бакинских Комиссаров (84 м) - Фото 1
    Коттедж в Тюменская область, Тюмень ул. Бакинских Комиссаров (84 м) - Фото 2
    1 этаж, общая площадь 83м², участок 9 соток

    Описание дома• Дом 83,8 кв.м в районе Дом Обороны Тюмени• Деревянный, 4 комнаты с ремонтом• Просторный и уютный, подходит для всей семьиУчасток и инфраструктура• Участок 9 соток с огородом• Гараж на территории дома• Проведены газ, электричество, водоснабжениеСобственники...
    • 1 эт.
    • 83 м²
    • 9 сот.
    4 200 000 Р
    Агент
    +7 (982) Показать номер
    Посмотреть контакты
    Дом в Тюменская область, Нижнетавдинский муниципальный округ, Аракчино ... - Фото 1
    Дом в Тюменская область, Нижнетавдинский муниципальный округ, Аракчино ... - Фото 2
    2 этажа, общая площадь 76м², участок 6 соток

    СРОЧНО БЕЗ КОМИССИИ ДЛЯ ПОКУПАТЕЛЯ ПОДХОДИТ ПОД СЕМЕЙНУЮ ИПОТЕКУ МОЖНО БЕЗ ПВ Дом в стиле а-фрейм в заповедном месте СНТ Аракчино всего в 40 минутах от города по Велижанскому тракту, в районе с.Тюнёво. Это отличный вариант для тех, кто ищет уютное...
    • 2 эт.
    • 76 м²
    • 6 сот.
    4 200 000 Р
    Агент
    +7 (982) Показать номер
    Посмотреть контакты
    Дом в Тюменская область, Тюменский муниципальный округ, д. Якуши ул. ... - Фото 1
    Дом в Тюменская область, Тюменский муниципальный округ, д. Якуши ул. ... - Фото 2
    общая площадь 46м², участок 8 соток

    Ищете уютный домик в тихом месте? Тогда это предложение для вас Мечтаете о домике в деревне, где можно отдохнуть от городской суеты, насладиться природой и тишиной? Тогда этот дом в деревне Якуши это то, что вам нужно 46,9 квадратов уюта на участке...
    • 46 м²
    • 8 сот.
    4 400 000 Р
    Агент
    +7 (982) Показать номер
    Посмотреть контакты
    Дом в Тюменская область, Тюменский муниципальный округ, д. Малиновка  ... - Фото 1
    Дом в Тюменская область, Тюменский муниципальный округ, д. Малиновка  ... - Фото 2
    общая площадь 90м², участок 7 соток

    Срочно продается новый загородный дом в большом поселке комфорт-класса в 15 минутах от центра города по Московскому тракту в коттеджном поселке Малиновка. Территория закрытая, въезд через шлагбаум. В поселке своя обустроенная набережная- с беседками и...
    • 90 м²
    • 7 сот.
    4 400 000 Р
    Агент
    +7 (982) Показать номер
    Посмотреть контакты

    Не нашли подходящего объявления?

    Оставьте заявку, и наши риэлторы подберут купить дом в районе Ишима

    (0)