4 500 000 Р 58 590 $ или 50 320

Информация о коттедже

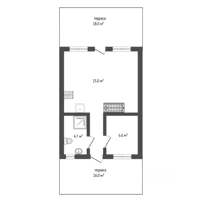
244 м2
Площадь
2
Этажность
43 cоток
Участок

Дополнительная информация

Дом продаётся вместе с участком
есть
Развернуть
Агент
+7 (912) 991-85-93
Начать чат с агентом

Дом в Тюменская область, Нижнетавдинский муниципальный округ, с. ...

Уважаемые покупатели Представляем вашему вниманию уникальное предложение — уютный и просторный дом на центральной улице села Средние Тарманы, расположенный по Велижанскому тракту. Этот добротный дом с шестью светлыми комнатами и просторной кухней станет идеальным местом для вашей семьи. Высота потолков в 3 метра создает ощущение простора и комфорта.Стены дома выполнены из качественных материалов: керамзитоблок (30 см) в сочетании с пенопластом (15 см) и кирпичом обеспечивают отличную тепло- и звукоизоляцию. В доме есть цокольный этаж, который можно использовать как подвал, а прочный ленточный фундамент и два ряда фундаментных блоков гарантируют надежность и долговечность строения. Перекрытие между цоколем и первым этажом выполнено из плит, что добавляет дополнительную прочность.Электричество уже заведено в гараж площадью 40 м, что обеспечит вам комфортное хранение автомобиля и других вещей. Дороги в селе асфальтированы, что делает передвижение удобным. В шаговой доступности находятся школа, детский сад и магазины — все необходимое для комфортной жизни.Это место не только для жизни, но и для отдыха Прекрасная природа и экологически чистая обстановка создают идеальные условия для семейного времяпрепровождения и активного отдыха на свежем воздухе.Также у нас есть возможность обмена на квартиру Мы готовы помочь вам с оформлением всех необходимых документов. Не упустите шанс стать владельцем этого замечательного дома Звоните прямо сейчас МЫ ГАРАНТИРУЕМ ФИНАНСОВУЮ БЕЗОПАСНОСТЬ ДЛЯ НАШИХ КЛИЕНТОВ.Код пользователя: 60580Номер в базе: 4333684

Читать полностью

    Для того, чтобы купить 2-этажный коттедж по адресу: Средние Тарманы, улица Мира, позвоните по телефону +7 (912) 991-85-93. Торопитесь! Объявление №50016627311 о продаже двухэтажного коттеджа опубликовано Вчера.

    Позвонить Написать
    4 500 000 Р58 590 $ или 50 320
    Агент
    +7 (912) 991-85-93
    Начать чат с агентом
    Похожие предложения
    Дом в Тюменская область, Нижнетавдинский муниципальный округ, ... - Фото 1
    Дом в Тюменская область, Нижнетавдинский муниципальный округ, ... - Фото 2
    1 этаж, общая площадь 61м², участок 10 соток

    Арт.В продаже отличный новый дом, каркасник, построен из бруса, стоит на ленточном фундаменте. В дом заведено электричество, отопление водяное, также на участке есть скважина с питьевой водой. Стены в кухне-гостиной выровнены и оклеены обоями под покраску....
    • 1 эт.
    • 61 м²
    • 10 сот.
    4 500 000 Р
    Агент
    +7 (912) Показать номер
    Посмотреть контакты
    Дом в Тюменская область, с. Нижняя Тавда ул. Дорожная (78 м) - Фото 1
    Дом в Тюменская область, с. Нижняя Тавда ул. Дорожная (78 м) - Фото 2
    1 этаж, общая площадь 78м², участок 4 сотки

    Арт.Продается частный дом площадью 78 кв.м. в с.Нижняя Тавда на земельном участке 4 сотки Дом блочный, утеплён, облицован металлосайдингом. Имеются все необходимые коммуникации: электричество, централизованное водоснабжение, газ, септик. В доме установлен...
    • 1 эт.
    • 78 м²
    • 4 сот.
    4 500 000 Р
    Агент
    +7 (982) Показать номер
    Посмотреть контакты
    Дом в Нижняя Тавда, улица Ульянова (67 м) - Фото 1
    Дом в Нижняя Тавда, улица Ульянова (67 м) - Фото 2
    общая площадь 67м²

    УНИКАЛЬНОЕ ПРЕДЛОЖЕНИЕ В СЕЛЕ НИЖНЯЯ ТАВДА: дом + УЧАСТОК 9 СОТОКПолный комфорт загородной жизни с городскими удобствами и автономией КЛЮЧЕВЫЕ ПРЕИМУЩЕСТВА: Капитальный ремонт в квартире — все системы заменены, готова к заселению Участок 9 соток с плодоносящими...
    • 67 м²
    4 500 000 Р
    Агент
    +7 (982) Показать номер
    Посмотреть контакты
    Коттедж в Тюменская область, Нижнетавдинский муниципальный округ, ... - Фото 1
    Коттедж в Тюменская область, Нижнетавдинский муниципальный округ, ... - Фото 2
    2 этажа, общая площадь 56м², участок 6 соток

    ВНИМАНИЕ Новый дом в стиле Афрейм — идеальный выбор для жизни и отдыха Преимущества дома:- Построен по качественному проекту из строганной доски камерной сушки (сечение 19545 мм) по каркасной технологии надежность и долговечность гарантированы - Общая...
    • 2 эт.
    • 56 м²
    • 6 сот.
    4 500 000 Р
    Агент
    +7 (919) Показать номер
    Посмотреть контакты
    Дом в Тюменская область, Нижнетавдинский район, д. Московка Косая ... - Фото 1
    Дом в Тюменская область, Нижнетавдинский район, д. Московка Косая ... - Фото 2
    общая площадь 60м², участок 8 соток

    БЕЗ КОМИССИИ ДЛЯ ПОКУПАТЕЛЯ Цена указана за комплектацию вайт боксДом проходит по семейной ипотеке под 6 Дом в КП Серебряная Подкова 15 минут от Тюмени по Велижанскому тракту Чистовая отделка — можно заехать сразу или сделать ремонт под себя. С...
    • 60 м²
    • 8 сот.
    4 500 000 Р
    Агент
    +7 (919) Показать номер
    Посмотреть контакты

    Не нашли подходящего объявления?

    Оставьте заявку, и наши риэлторы подберут купить дом в районе

    (0)