Реализация объекта недвижимости приостановлена

Информация о квартире

60.0 м2
Площадь
2
Комнаты
5
Этаж
15
Этажность
Развернуть

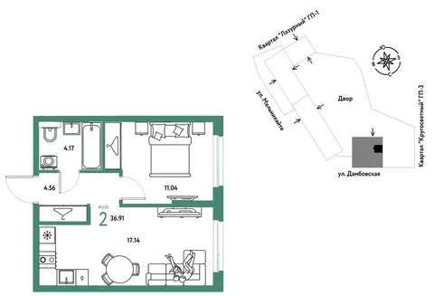
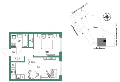
2-к кв. Тюменская область, Тобольск 10-й мкр, 43 (60.69 м)

Продаётся 2-комнатная квартира в строящемся доме (ГП-1), срок сдачи: III-кв. 2026, общей площадью 60.69 кв.м., на 5 этаже. Новый жилой комплекс от Специализированного застройщика Звездаасположен по адресу: г. Тобольск, 10-й микрорайон.

Читать полностью

    Реализация объекта недвижимости приостановлена

    Не нашли подходящего объявления?

    Оставьте заявку, и наши риэлторы подберут квартиру в новостройке в районе Тобольска

    (0)