1 300 000 Р 16 200 $ или 14 130

Информация об комнате

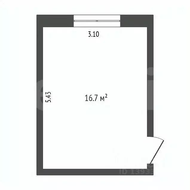
16 м2
Комната
7
Этаж
9
Этажность

Состояние и оснащение

Лифт
есть

Дополнительная информация

Количество комнат
2
Количество продаваемых комнат
1
Лифт
Развернуть
Агент
+7 (934) 442-32-76
Начать чат с агентом

1к в -комнатной квартире (16 м)

Отличное общежитие блочного типа, заведена вода, своя кухонная зона, санузел общий на 8 комнат, свободно от проживания, при продаже остаётся вся мебель и бытовая техника, что на фото, великолепный вариант, чтобы сразу заехать и жить долго и счастливо, либо сдавать в аренду, рядом с домом есть всё, что необходимо для комфортной жизни, пенсионерам, ветеранам и многодетным семьям скидка на услуги компании.МЫ ГАРАНТИРУЕМ ФИНАНСОВУЮ БЕЗОПАСНОСТЬ ДЛЯ НАШИХ КЛИЕНТОВ.Код пользователя: 2046Номер в базе:

Читать полностью
    Позвонить Написать
    1 300 000 Р16 200 $ или 14 130
    Агент
    +7 (934) 442-32-76
    Начать чат с агентом
    Похожие предложения
    Комната Тюменская область, Тюмень Волгоградская ул., 70 (16.8 м) - Фото 1
    Комната Тюменская область, Тюмень Волгоградская ул., 70 (16.8 м) - Фото 2
    Предлагаем вашему вниманию уникальную возможность приобрести уютную квартиру (по документам статус КВАРТИРА) с косметическим ремонтом, которая станет идеальным местом для комфортной жизни В этой светлой и теплой комнате установлены качественные пластиковые...
    • 1 ком.
    • 9/9 эт.
    • 16.8 м²
    1 250 000 Р
    Агент
    +7 (919) Показать номер
    Посмотреть контакты
    Комната Тюменская область, Тюмень ул. Осипенко, 61 (16.8 м) - Фото 1
    Комната Тюменская область, Тюмень ул. Осипенко, 61 (16.8 м) - Фото 2
    Просторная комната площадью 16,8 м расположена в кирпичном здании в самом центре города. Объект находится на удобном третьем этаже и входит в состав отдельного блока из восьми комнат, что обеспечивает дополнительную безопасность, благодаря общей запирающейся...
    • 1 ком.
    • 3/5 эт.
    • 16.8 м²
    1 280 000 Р
    Агент
    +7 (982) Показать номер
    Посмотреть контакты
    Комната Тюменская область, Тюмень ул. 50 лет Октября, 63а (13.4 м) - Фото 1
    Комната Тюменская область, Тюмень ул. 50 лет Октября, 63а (13.4 м) - Фото 2
    Уважаемые покупатели Продается комната в общежитии 17,4 м2. В комнате выполнен косметический ремонт, заведена вода, установлена раковина. Сам блок поделен на 2 части, состоит из 8 комнат, в центре города, район КПД, при продаже остаётся всё что вы...
    • 1 ком.
    • 8/9 эт.
    • 13.4 м²
    1 250 000 Р
    Агент
    +7 (919) Показать номер
    Посмотреть контакты
    Комната Тюменская область, Тюмень Харьковская ул., 1 (17.2 м) - Фото 1
    Комната Тюменская область, Тюмень Харьковская ул., 1 (17.2 м) - Фото 2
    Продается уютная и светлая комната в самом сердце Тюмени Это идеальное место для комфортной жизни или выгодной аренды. В комнате выполнен косметический ремонт, установлены пластиковые окна, а входная дверь — надежная металлическая. Вода и слив уже заведены,...
    • 1 ком.
    • 7/9 эт.
    • 17.2 м²
    1 200 000 Р
    Агент
    +7 (912) Показать номер
    Посмотреть контакты
    1к в -комнатной квартире (13 м) - Фото 1
    1к в -комнатной квартире (13 м) - Фото 2
    Код предложения ID 819830. В продаже комната в общежитии. В комнате выполнен качественный свежий ремонт. Также ремонт выполнен в местах общего пользования: в санузле, душевой, кухне, коридоре. Стены покрашены, полы залиты, постелен новый линолеум.Соседи...
    • 1 ком.
    • 3/9 эт.
    • 13 м²
    1 250 000 Р
    Агент
    +7 (982) Показать номер
    Посмотреть контакты

    Не нашли подходящего объявления?

    Оставьте заявку, и наши риэлторы подберут комнату в районе Тюмени

    (0)