Реализация объекта недвижимости приостановлена

Информация о коттедже

210.0 м2
Площадь
2
Этажность
5.0 cоток
Участок

Дополнительная информация

Дом продаётся вместе с участком
есть
Развернуть

Коттедж в Тюменская область, Тюмень Физкультурная ул., 57 (210 м)

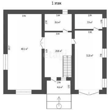
Прекрасное предложение для тех, кому важен комфорт и удобство - продаётся двухэтажный коттедж, на первом этаже расположена кухня -гостиная и комната, на втором этаже свободная планировка. Цокольный этаж, высотой 2.5м . Стены дома выполнены из блоков, утеплителя и облицовочного кирпича. Окна пластиковые, тройной стеклопакет. Перекрытия железобетонные. Возле дома проходит газовый трубопровод, центральный водопровод, электричество заведено в дом. Общая площадь составляет 210м2. Сейчас коттедж находится в стадии черновой отделки, что дает вам возможность воплотить в жизнь свои дизайнерские идеи. Кроме дома на участке построен гараж, баня и хозяйственной блок. Участок ухоженный, есть теплица, многолетние насаждения.Это отличное сочетание цены и качества, что делает данный объект привлекательным как для молодых людей, желающих обустроить свое пространство с учетом всех современных удобств, так и для инвесторов, видящих потенциал в недвижимости. Кроме того, коттедж идеально подходит для семей с детьми, родителей или пожилых родственников. Также стоит отметить, что доступна ипотека, что делает приобретение этого жилья еще более легким и удобным. Рядом с домом расположены такие учреждения как детский сад, городские поликлиники, Торговые центры, спортивные учреждения, остановки общественного транспорта.Не упустите уникальную возможность стать обладателем собственного комфортного и просторного коттеджа Сделайте свою жизнь ярче и уютнее - звоните прямо сейчас и уточняйте все детали о покупке этого замечательного объекта.Номер объекта: 1/545274/22044

Читать полностью

    Реализация объекта недвижимости приостановлена

    Не нашли подходящего объявления?

    Оставьте заявку, и наши риэлторы подберут купить дом в районе Тюмени

    (0)