Россия, Тюменская область, Тюмень, территория СОСН Агросад-

Реализация объекта недвижимости приостановлена

Информация о коттедже

157.0 м2
Площадь
2
Этажность
6.0 cоток
Участок

Дополнительная информация

Дом продаётся вместе с участком
есть
Развернуть

Дом в Тюмень, территория СОСН Агросад-Тюмень (157 м)

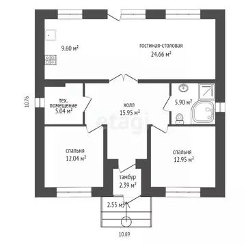
К продаже предлагается современный коттедж в черте города Тюмень. Район Цимлянское расположен вблизи ЭКОпарка Затюменский, рядом общеобразовательная школа, детские сады, спортивные комплексы, магазины, продуктовый рынок, отличная транспортная развязка в любую точку города. Земельный участок 6 соток правильной формы, расположен коттедж 157 м2, два этажа, просторная входная группа, 1 этаж кухня-гостиная 50,6 м2, спальня 13,5 м2, котельная , санузел 5,9 м2, выход на террасу, 2 этаж четыре просторные спальни, санузел с окном, широкая лестница. Все коммуникации заведены, водоснабжение центральное. Продажа от Индивидуального предпринимателя, возможно купить по льготной ипотеке.МЫ ГАРАНТИРУЕМ ФИНАНСОВУЮ БЕЗОПАСНОСТЬ ДЛЯ НАШИХ КЛИЕНТОВ.Код пользователя: 24438Номер в базе:

Читать полностью

    Реализация объекта недвижимости приостановлена

    Не нашли подходящего объявления?

    Оставьте заявку, и наши риэлторы подберут купить дом в районе Тюмени

    (0)