Россия, Тюменская область, Тюмень, Садовое товарищество Липовый остров, ул. 24-я Западная
5 490 000 Р 67 620 $ или 58 710

Информация о коттедже

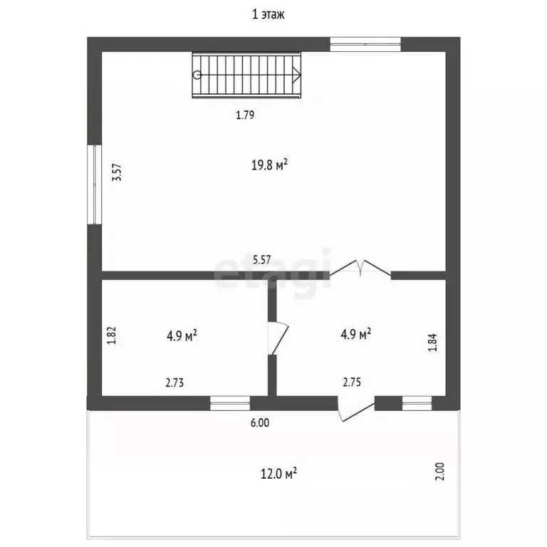
78 м2
Площадь
2
Этажность
8 cоток
Участок

Дополнительная информация

Дом продаётся вместе с участком
есть
Развернуть
Агент
+7 (912) 391-22-83
Начать чат с агентом

Дом в Тюменская область, Тюмень Садовое товарищество Липовый остров, ...

Продается уютный дом в живописном СНТ Липовый Остров Предлагаем вашему вниманию уникальную возможность стать владельцем прекрасного дома площадью 78,3 кв.м. с просторной кухней 20 кв.м., идеально подходящего как для постоянного проживания, так и для отдыха на природе. Участок в 8 соток полностью подготовлен: отсыпан и выровнен, что позволяет вам сразу же начать обустройство своего нового уголка счастья.Дом выполнен в современном стиле и полностью укомплектован качественной мебелью и техникой. Здесь есть все необходимое для комфортной жизни: скважина, колодец, септик и электричество. Электрокотел обеспечит вам тепло в любое время года. Все работы выполнены на высоком уровне с использованием импортных комплектующих. Забор по периметру гарантирует вашу безопасность и уединение.СНТ Липовый Остров — это не просто дача, а место, где можно наслаждаться жизнью круглый год. Здесь живут дружелюбные соседи, а городская прописка дает вам все преимущества городской жизни. Удобное транспортное сообщение: регулярно ходят автобусы, а в шаговой доступности находятся магазины, строительные и промышленные товары, а также пункты выдачи. Асфальтированные подъездные пути делают дорогу к вашему новому дому комфортной в любое время года. Общество активно развивается, и здесь уже ведется строительство капитальных домов, что свидетельствует о высоком потенциале для инвестиций.После продажи остаётся все, кроме телевизоров. Дом полностью мебелированный.Не упустите шанс стать владельцем этого замечательного дома Звоните прямо сейчас, и я с радостью отвечу на все ваши вопросы и организую показ. Ваш новый дом ждет вас МЫ ГАРАНТИРУЕМ ФИНАНСОВУЮ БЕЗОПАСНОСТЬ ДЛЯ НАШИХ КЛИЕНТОВ.Код пользователя: 126558Номер в базе: 5745698

Читать полностью

    Для того, чтобы купить 2-этажный коттедж по адресу: Тюмень, Садовое товарищество Липовый остров, ул. 24-я Западная, позвоните по телефону +7 (912) 391-22-83. Торопитесь! Объявление №50016493779 о продаже двухэтажного коттеджа опубликовано Вчера.

    Позвонить Написать
    5 490 000 Р67 620 $ или 58 710
    Агент
    +7 (912) 391-22-83
    Начать чат с агентом
    Похожие предложения
    Дом в Тюменская область, Тюмень Мелиораторов мкр, ул. 1-я Западная (50 ... - Фото 1
    2 этажа, общая площадь 50м², участок 5 соток

    Природное спокойствие в городском комфорте Продается уютный загородный дом в районе ММС. Компактный, светлый дом с жилым мансардным этажом для дружной семьи. Дом находится в черте города на участке 6 соток. Покупая этот дом, получаем формат загородной...
    • 2 эт.
    • 50 м²
    • 5 сот.
    5 550 000 Р
    Агент
    +7 (982) Показать номер
    Посмотреть контакты
    Дом в Тюменская область, Тюмень СОСН Березка-3 тер., ул. 27-я (70 м) - Фото 1
    Дом в Тюменская область, Тюмень СОСН Березка-3 тер., ул. 27-я (70 м) - Фото 2
    1 этаж, общая площадь 70м², участок 4 сотки

    Готовый Дом по семейной ипотеке. Дом в городе Тюмени, в 3 км от объездной дороги. Центральные коммуникации: Электричество заведено в дом, центральная вода в доме. Газ возле участка, заведем по договоренности.. Септик. Отопление теплые полы по всему дому....
    • 1 эт.
    • 70 м²
    • 4 сот.
    5 500 000 Р
    Агент
    +7 (919) Показать номер
    Посмотреть контакты
    Дом в Тюменская область, Тюмень Россиянка садовое товарищество, ул. ... - Фото 1
    Дом в Тюменская область, Тюмень Россиянка садовое товарищество, ул. ... - Фото 2
    общая площадь 90м², участок 6 соток

    Продается уютный загородный дом для круглогодичного проживания в СНТ Россиянка Идеальное сочетание природы и комфортаРасположен в живописном месте рядом с поселком Березняковский тишина, чистый воздух и зелень вокруг, при этом всего: 10 минут до города...
    • 90 м²
    • 6 сот.
    5 500 000 Р
    Агент
    +7 (919) Показать номер
    Посмотреть контакты
    Дом в Тюменская область, Тюмень Царево садовое товарищество,  (80 м) - Фото 1
    Дом в Тюменская область, Тюмень Царево садовое товарищество,  (80 м) - Фото 2
    1 этаж, общая площадь 80м², участок 5 соток

    Готовый дом пред чистовая отделка. Фото для примера ремонта.Уважаемые покупатели, продается загородный дом по цене однокомнатной квартиры на завершающей стадии строительства на земельный участке 5,3 сотки в садовом обществе Царево .Покупка возможна без...
    • 1 эт.
    • 80 м²
    • 5 сот.
    5 500 000 Р
    Агент
    +7 (919) Показать номер
    Посмотреть контакты
    Дом в Тюмень, СНТ Дубравушка, Центральная улица (50 м) - Фото 1
    Дом в Тюмень, СНТ Дубравушка, Центральная улица (50 м) - Фото 2
    2 этажа, общая площадь 50м², участок 5 соток

    Продается двухэтажный дом в СНТ «Металлист , расположенном в экологически чистом районе. Дороги в зимний период регулярно очищаются, что обеспечивает беспроблемный подъезд в любое время года. Транспортная доступность высокая — до остановки общественного...
    • 2 эт.
    • 50 м²
    • 5 сот.
    5 500 000 Р
    Агент
    +7 (967) Показать номер
    Посмотреть контакты

    Не нашли подходящего объявления?

    Оставьте заявку, и наши риэлторы подберут купить дом в районе Тюмени

    (0)