Россия, Тюменская область, Тюмень, микрорайон Березняковский
13 800 000 Р 179 300 $ или 153 500

Информация о коттедже

130 м2
Площадь
Развернуть
Агент
+7 (909) 740-31-76
Начать чат с агентом

Дом в Тюмень, микрорайон Березняковский (130 м)

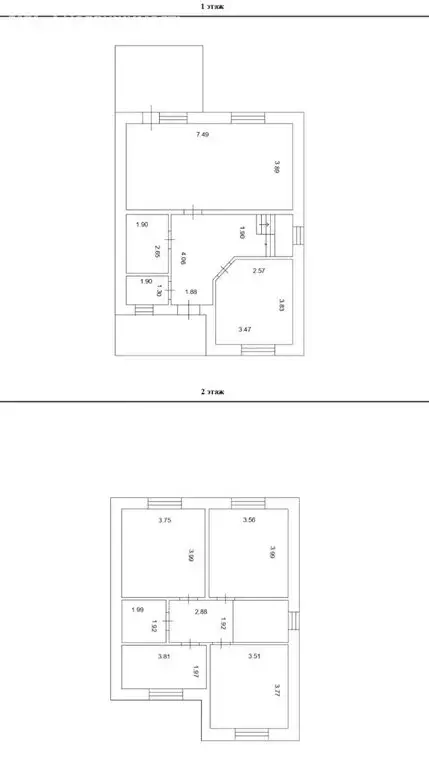
Уважаемые покупатели Продам новый 2-этажный дом с центральной водой и газом в Березняках.Площадь дома 130 кв.м на участке 4,5 соток.Идеально подходит для большой семьи. Соседи вокруг живут. Асфальт до самого участка.В доме расположилась просторная кухня-гостиная с выходом на террасу, 4 спальни, 2 санузла и котельная.При строительстве использовались только качественные материалы Фундамент - монолитная плита 400 ммНесущая стена - керамзитоблок 290 мм с утеплением 100 ммОблицовка - силикатный кирпичКровля - мягкая черепица Технониколь, деревянная стропильная системаОтопление - тёплый водяной пол + радиаторы2 котла – Газовый и резервный электрокотел, бойлерЦентральная вода и канализация.Электроразводка по всему домуОкна имеют пяти-камерный профильДверь уличная, коттеджная с терморазрывом.Отделка Вайт бокс.Вентиляционная вытяжка - на кухне и в санузлеСептик 10м3Отмостка - вокруг дома с установкой дождеприемников и с выводом воды за границы участка.В непосредственной близости находятся новая школа, детский сад и детские площадки, множество магазинов , рядом остановка , а также асфальтированные дороги . Это идеальное место для жизни с детьми.Продажа от Застройщика, что позволяет купить дом по льготной ипотеке, а также Вы получаете гарантию на 5 лет Дом стоит на кадастровом учете Скорее звоните и записывайтесь на просмотр - и Вы точно оцените качество этого дома Звоните И я организую показ Номер предложения: 60555.

Читать полностью

    Для того, чтобы купить коттедж по адресу: Тюмень, микрорайон Березняковский, позвоните по телефону +7 (909) 740-31-76. Торопитесь! Объявление №50016624372 о продаже коттеджа опубликовано Вчера.

    Позвонить Написать
    13 800 000 Р179 300 $ или 153 500
    Агент
    +7 (909) 740-31-76
    Начать чат с агентом
    Похожие предложения в Тюмени
    Коттедж в Тюменская область, Тюмень Быкова мкр, ул. Тихих Зорь, 4 (98 ... - Фото 1
    Коттедж в Тюменская область, Тюмень Быкова мкр, ул. Тихих Зорь, 4 (98 ... - Фото 2
    1 этаж, общая площадь 98м², участок 10 соток

    Продается коттедж с отличным планированием и удобствами для комфортного проживания.Этот одно-этажный дом состоит из 3 комнат , кухней -гостиной - 40 квадратных метров. Одна мастер-спальня со своим санузлом ( с окном) и гардеробной. В двух детских выделено...
    • 1 эт.
    • 98 м²
    • 10 сот.
    13 000 000 Р
    Агент
    +7 (982) Показать номер
    Посмотреть контакты
    Дом в Тюменская область, Тюмень Полевая ул., 10 (58 м) - Фото 1
    Дом в Тюменская область, Тюмень Полевая ул., 10 (58 м) - Фото 2
    1 этаж, общая площадь 58м², участок 6 соток

    Дом в районе Дома обороны. Построен из лиственницы. Отопление газ и электричество, центральный водопровод заведен в дом. Водоотведение - скважина. Асфальт до участка. Во дворе место под автомобиль.Особую ценность представляет месторасположение и участок....
    • 1 эт.
    • 58 м²
    • 6 сот.
    13 000 000 Р
    Агент
    +7 (982) Показать номер
    Посмотреть контакты
    Коттедж в Тюменская область, Тюмень Воронина мкр, ул. Бердюжская (134 ... - Фото 1
    Коттедж в Тюменская область, Тюмень Воронина мкр, ул. Бердюжская (134 ... - Фото 2
    2 этажа, общая площадь 134м², участок 4 сотки

    Продается коттедж площадью 134 кв.м., идеальный для тех, кому важен комфорт и удобство. Дом находится в живописном месте, с прекрасным видом. В доме выполнен современный ремонт, идеальное сочетание цена-качество.В доме есть все необходимые коммуникации:...
    • 2 эт.
    • 134 м²
    • 4 сот.
    13 700 000 Р
    Агент
    +7 (912) Показать номер
    Посмотреть контакты
    Дом в Тюменская область, Тюмень Центральная пл. (134 м) - Фото 1
    Дом в Тюменская область, Тюмень Центральная пл. (134 м) - Фото 2
    общая площадь 134м², участок 7 соток

    ПРЯМАЯ ПРОДАЖА ДОМА БЕЗ КОМИССИИ 10 минут до центраТихий и экологически чистый район (Воронинские горки) , в шаговой доступности река Тура Возможна льготная ипотека О доме : СТРОИТЕЛЬСТВО ПРОИСХОДИТ ПО ВСЕМ ТЕХНОЛОГИЧЕСКИМ НОРМАМ Общая площадь -...
    • 134 м²
    • 7 сот.
    13 800 000 Р
    Агент
    +7 (982) Показать номер
    Посмотреть контакты
    Дом в Тюменская область, Тюмень Лето-Парк кп,  (123 м) - Фото 1
    Дом в Тюменская область, Тюмень Лето-Парк кп,  (123 м) - Фото 2
    общая площадь 122м², участок 5 соток

    Готовый и жилой, одноэтажный дом со спальными комнатами, кухней-гостиной в современном коттеджном поселке Лето парк .Сделан свежий дизайнерский ремонт, керамогранит и кафель на полу и в санузле Новый кухонный гарнитур.КОММУНИКАЦИИ: Есть газ, электричество,...
    • 122 м²
    • 5 сот.
    14 500 000 Р
    Агент
    +7 (912) Показать номер
    Посмотреть контакты

    Не нашли подходящего объявления?

    Оставьте заявку, и наши риэлторы подберут купить дом в районе Тюмени

    (0)