Россия, Тюменская область, Тюмень, 3-я Северная улица
7 300 000 Р 93 320 $ или 79 270

Информация о коттедже

134 м2
Площадь
10 cоток
Участок

Дополнительная информация

Дом продаётся вместе с участком
есть
Развернуть
Агент
+7 (985) 601-53-64
Начать чат с агентом

Дом в Тюмень, 3-я Северная улица (134 м)

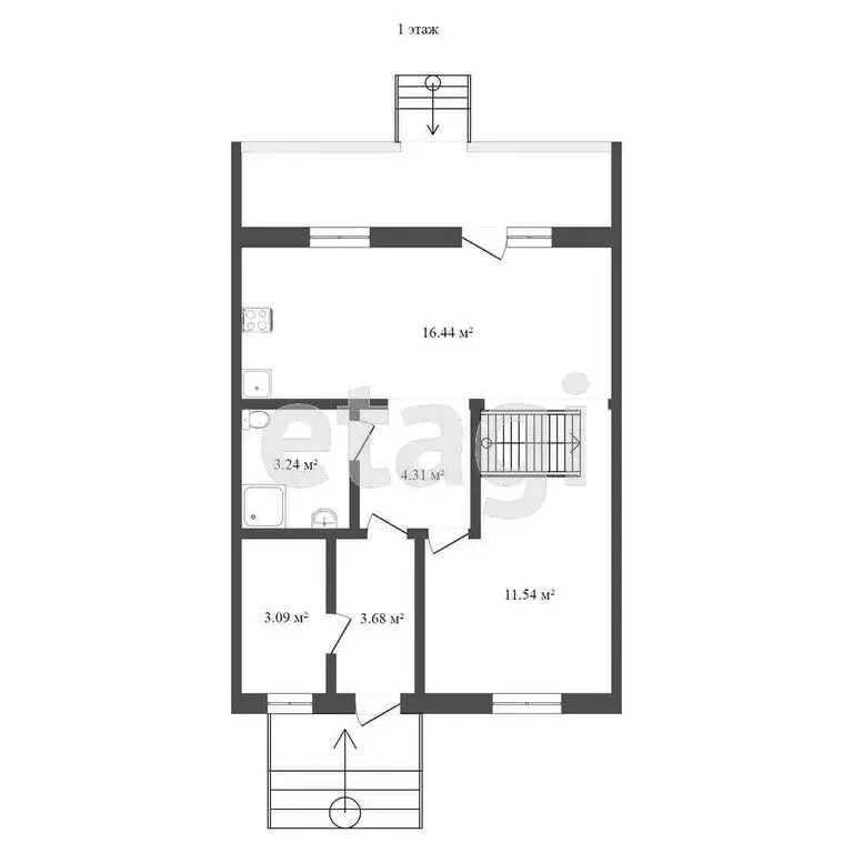
Продаётся танхаус , в черте города. Дом построен из керамзитоблоков , облицован кирпичом , утеплитель – минвата. Крыша – металлочерепица . Газ, вода, электричество, канализация – централизованные. Отопление газовое .Установлены счётчики воды и тепла. В доме 3-и этажа. На первом этаже кухня , гостиная и санузел , на втором этаже две спальни , с/узел и большой балкон . Третий этаж свободной планировки , высота потолков 4,5 м. Здесь вы сможете пофантазировать Можно разместить игровую комнату , сделать спортзал , гардеробную , спальню и т.д. Общая площадь по документам 134 кв.м. Также у вас будет участок , площадью 1,07 сот. Здесь вы сможете оборудовать мангал , небольшую детскую площадку и др. Территория комплекса закрытая . Будет установлено видеонаблюдение , оборудована детская площадка. Достаточно парковочных мест . Рядом Липовое озеро , лес . Вся инфраструктура – удобная транспортная развязка , д/сад , школа , магазины , аптеки , поликлиника .Таунхаус, который станет Домом для семьи из трех - четырех человек, прекрасная замена квартиры в многоэтажном доме и лучшее соотношение цена/комфорт. Сочетание разумной планировки, собственного земельного участка создаст уют и спокойствие для проживания в этом прекрасном доме. Готовы рассмотреть вариант обмена на квартиру , автомобиль.МЫ ГАРАНТИРУЕМ ФИНАНСОВУЮ БЕЗОПАСНОСТЬ ДЛЯ НАШИХ КЛИЕНТОВ.Код пользователя: 71625Номер в базе: 1224233

Читать полностью

    Для того, чтобы купить коттедж по адресу: Тюмень, 3-я Северная улица, позвоните по телефону +7 (985) 601-53-64. Торопитесь! Объявление №50016664972 о продаже коттеджа опубликовано 22 декабря 2025.

    Позвонить Написать
    7 300 000 Р93 320 $ или 79 270
    Агент
    +7 (985) 601-53-64
    Начать чат с агентом
    Похожие предложения в Тюмени
    Дом в Тюменская область, Тюмень Медик СНТ, ул. Кедровая, 554 (129 м) - Фото 1
    Дом в Тюменская область, Тюмень Медик СНТ, ул. Кедровая, 554 (129 м) - Фото 2
    общая площадь 129м², участок 8 соток

    Продается просторный дом в Березниках Ищете идеальное место для реализации своих дизайнерских идей? Этот просторный дом ждет вас -- Отличное расположение:• В шаговой доступности от школы 45 и магазинов с товарами повседневного спроса — идеальный выбор...
    • 129 м²
    • 8 сот.
    7 400 000 Р
    Агент
    +7 (982) Показать номер
    Посмотреть контакты
    Дом в Тюменская область, Тюмень Парфеново мкр, ул. Жданова (100 м) - Фото 1
    Дом в Тюменская область, Тюмень Парфеново мкр, ул. Жданова (100 м) - Фото 2
    1 этаж, общая площадь 100м², участок 6 соток

    Продажа добротного капитального дома площадью 100 кв.м. в черте города - мкр Парфеново.Дом отапливается от газового котла, вода заведена.Вода из колодца (станция для подачи воды установлена в доме),в целом есть центральный водопровод по улице с возможностью...
    • 1 эт.
    • 100 м²
    • 6 сот.
    7 400 000 Р
    Агент
    +7 (912) Показать номер
    Посмотреть контакты
    Дом в Тюменская область, Тюмень Мелиоратор садовое товарищество, ул. ... - Фото 1
    Дом в Тюменская область, Тюмень Мелиоратор садовое товарищество, ул. ... - Фото 2
    1 этаж, общая площадь 100м², участок 5 соток

    СЕМЕЙНАЯ ИПОТЕКА На участке площадью 6,37сотки, стоит дом, созданный для вашей семьи. Просторные 100 м, наполненные теплом электрического отопления и удобством продуманных инженерных решений. Вода чиста, как родниковая, а мощность в 380 Вт позволяет...
    • 1 эт.
    • 100 м²
    • 5 сот.
    7 200 000 Р
    Агент
    +7 (982) Показать номер
    Посмотреть контакты
    Дом в Тюменская область, Тюмень Березняки СНТ, ул. Вишневая (170 м) - Фото 1
    Дом в Тюменская область, Тюмень Березняки СНТ, ул. Вишневая (170 м) - Фото 2
    2 этажа, общая площадь 170м², участок 8 соток

    Объект находится в ипотеке и есть возможность оформления покупки по ставке от 8 Продается двухэтажный загородный дом для круглогодичного проживания на участке 8,55 соток.Этот уютный дом из бревна с облицовкой сайдингом и ленточным фундаментом идеально...
    • 2 эт.
    • 170 м²
    • 8 сот.
    7 400 000 Р
    Агент
    +7 (912) Показать номер
    Посмотреть контакты
    Дом в Тюменская область, Тюмень проезд Черноморский (82 м) - Фото 1
    Дом в Тюменская область, Тюмень проезд Черноморский (82 м) - Фото 2
    общая площадь 82м², участок 7 соток

    Предлагаем к покупке дом с отличным расположением. Дом строили для себя, с нуля, не экономили на материалах. Дом построен из 300 мм керамзита блока, утеплитель - пенопласт, облицован керамическим кирпичом, фундамент - монолитная плита. Все перегородки...
    • 82 м²
    • 7 сот.
    7 200 000 Р
    Агент
    +7 (919) Показать номер
    Посмотреть контакты

    Не нашли подходящего объявления?

    Оставьте заявку, и наши риэлторы подберут купить дом в районе Тюмени

    (0)