9 500 000 Р 120 500 $ или 102 800

Информация о коттедже

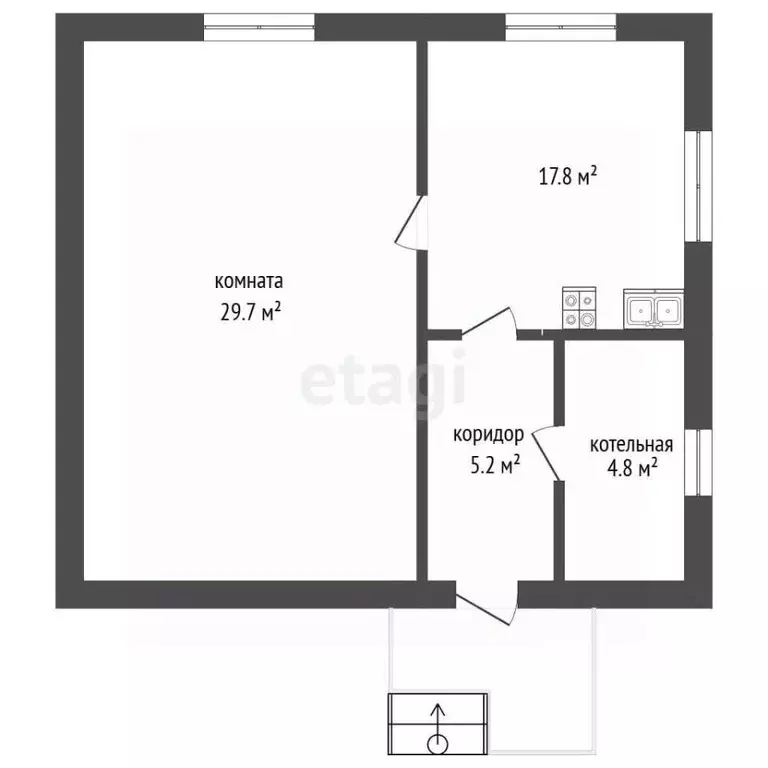
118 м2
Площадь
1
Этажность
9 cоток
Участок

Дополнительная информация

Дом продаётся вместе с участком
есть
Развернуть
Агент
+7 (912) 924-14-76
Начать чат с агентом

Дом в Тюменская область, Тюмень (118 м)

Арт.Продается дом 122 кв.м c учаcтком 9 сот.В доме идеальная планировка:3 спальни + кухня-гостиная, просторный санузел, большая гардеробная и тех.комната. Из гостиной выход на террасу.Конструктив дома : стены керамический кирпич и керамзит-блок. Бетонная плита 300мм с двойным армированием. Техническое наполнение:Водяное отопление: электрокотел, теплые полы по всему дому, радиаторы; септик 10 м, водонагреватель 80 литров, электропроводка 380 вт/15 квт, разводка электропроводки скрытым способом с установкой закладных деталей под установку розеток и выключателей. Газ до участка, центральный водопровод.Забор и автоматические ворота уже установлены на каждом домовладении Коттеджный поселок находится в 15 минутах от Тюмени. Закрытая территория с видеонаблюдением так же на территории имеется детская площадка. Автобусная остановка возле КП, школьный автобус.Для покупки данного дома можно использовать материнский капитал, а также купить дом по сниженной ставке.

Читать полностью

    Для того, чтобы купить 1-этажный коттедж по адресу: Тюмень, позвоните по телефону +7 (912) 924-14-76. Торопитесь! Объявление №50016673553 о продаже одноэтажного коттеджа опубликовано 10 января 2026.

    Позвонить Написать
    9 500 000 Р120 500 $ или 102 800
    Агент
    +7 (912) 924-14-76
    Начать чат с агентом
    Похожие предложения в Тюмени
    Дом в Тюменская область, Тюмень пер. Юности (200 м) - Фото 1
    Дом в Тюменская область, Тюмень пер. Юности (200 м) - Фото 2
    2 этажа, общая площадь 200м², участок 12 соток

    Срочно.Продается Дом в черте города. Участок расположен в районе поселка Антипино и Копытова. Земля в собственности.На участке расположен дом примерно 200 кв.м Категория земель: земли населенных пунктов. Разрешенное использование: для индивидуального...
    • 2 эт.
    • 200 м²
    • 12 сот.
    9 500 000 Р
    Агент
    +7 (982) Показать номер
    Посмотреть контакты
    Дом в Тюменская область, Тюмень Медик СНТ,  (147 м) - Фото 1
    Дом в Тюменская область, Тюмень Медик СНТ,  (147 м) - Фото 2
    1 этаж, общая площадь 147м², участок 8 соток

    Продаётся тёплый дом в предчистовой отделке с участком 8 соток Ищете надёжный и просторный дом с продуманной планировкой? Предлагаем отличный вариант в развитом районе О доме:• Фундамент: Монолитная плита.• Стены: Керамзитоблок (200мм) + утеплитель...
    • 1 эт.
    • 147 м²
    • 8 сот.
    9 500 000 Р
    Агент
    +7 (919) Показать номер
    Посмотреть контакты
    Дом в Тюменская область, Тюмень СОСН Лесная Поляна тер., ул. Садовая ... - Фото 1
    Дом в Тюменская область, Тюмень СОСН Лесная Поляна тер., ул. Садовая ... - Фото 2
    2 этажа, общая площадь 72м², участок 5 соток

    СРОЧНАЯ ПРОДАЖА ЗВОНИТЕ В ЛЮБОЕ ВРЕМЯ Продается великолепный двухэтажный дом с участком в живописном СНТ Лесная Поляна Этот уютный дом общей площадью 72 кв.м станет идеальным местом как для полноценного проживания, так и для отдыха на выходных....
    • 2 эт.
    • 72 м²
    • 5 сот.
    9 400 000 Р
    Агент
    +7 (982) Показать номер
    Посмотреть контакты
    Дом в Тюменская область, Тюмень Хантыйская ул. (100 м) - Фото 1
    Дом в Тюменская область, Тюмень Хантыйская ул. (100 м) - Фото 2
    1 этаж, общая площадь 100м², участок 4 сотки

    Уважаемые покупатели Спешите приобрести по очень привлекательной цене по СЕМЕЙНОЙ ипотеке- от 6 Вашему вниманию предлагается к продаже полноценный новый жилой дом площадью 95 кв.м, в черте города район ММС. Отопление дома электрическое, теплые полы,...
    • 1 эт.
    • 100 м²
    • 4 сот.
    9 500 000 Р
    Агент
    +7 (982) Показать номер
    Посмотреть контакты
    Дом в Тюменская область, Тюмень Изобилие СНТ, ул. Центральная (100 м) - Фото 1
    Дом в Тюменская область, Тюмень Изобилие СНТ, ул. Центральная (100 м) - Фото 2
    общая площадь 100м², участок 4 сотки

    Основные характеристики:• Цена: 9,500,000• Местоположение: Тюменская область, Тюмень, СНТ Изобилие, Ягодная ул.• Площадь дома: 100 м• Площадь участка: 5 соток• Этажность: 2 этажа• Количество комнат: Свободная планировка• Ремонт: КосметическийУдобства:•...
    • 100 м²
    • 4 сот.
    9 500 000 Р
    Агент
    +7 (982) Показать номер
    Посмотреть контакты

    Не нашли подходящего объявления?

    Оставьте заявку, и наши риэлторы подберут купить дом в районе Тюмени

    (0)