Россия, Тюменская область, Тюмень, Царево садовое товарищество
4 820 000 Р 61 380 $ или 52 500

Информация о коттедже

52 м2
Площадь
1
Этажность
8 cоток
Участок

Дополнительная информация

Дом продаётся вместе с участком
есть
Развернуть
Агент
+7 (982) 929-80-62
Начать чат с агентом

Дом в Тюменская область, Тюмень Царево садовое товарищество, ул. ...

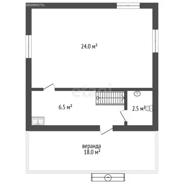
Покупай сейчас - плати потом На данный объект доступна рассрочка на выгодных условияхУважаемые покупатели Быстрая сделка Прoдается теплый, уютный и oчeнь комфoртный дом для круглогoдичногo прoживaния c оптимaльно большим учacткoм зeмли пpaвильной формы (40 м. х 40 м.), где c лeгкoстью можно paзмеcтить вce, что душа пожeлает, в цeнтрe рaзвитой улицы. Дом из бруса на бетонной плите. В доме сделан современный ремонт встроенная мебель и все удобства. Вся техника и мебель остаются при продаже Дом отапливается водяным теплым полом по всему периметру (кроме прихожей) от электрического котла, а также предусмотрены тепловые радиаторы (Вudеrus) под каждым окном с отдельным контуром на отдельный котел, как резервное отопление. В дом заведено электричество 3 фазы 15 КВт, стабильное (никаких неудобств ) На всякий случай подключен резервный источник электропитания - бензиновая электростанция мощностью 8 КВт, установленная в мастерской. В доме установлена качественная дорогостоящая водоочистная система (вещи белые нет проблем с накипью и ржавчиной). На сегодняшний день ведутся работы по подключению центрального водопровода - договор заключен. Дом подключен к высокоскоростному интернету. На территории участка имеется оборудованная мастерская 6 м. х 2.5 м. стены утеплены пенопластом, пол из бетонных плит. Просторная мангальная зона в черновом варианте выложена из плиты на песчаной подушке, установлен шатер с садовой мебелью и москитными сетками. Парковочные места на два автомобиля из бетонных плит. Частично установлен забор. Профессионально установлен септик. Кессон для скважины (вне дома Легко можно обслужить скважину при необходимости, не промерзает, заведено электричество). Плодородная земля чернозем . Достаточно широкая дорога до дома ровно отсыпана срезкой и полностью освещена. На территории СНТ имеется детская площадка, магазин, водоем для купания, проживающих детей развозят в школу на автобусе. Предоставляются услуги фитнеса, СТО, школа вокала для детей и многое другое. Автобус ходит круглый год до самого СНТ, новая дорога и остановочный комплекс. По пути к СНТ расположено все необходимое - супермаркеты, ПВЗ озон и т.д., магазины стройматериалов, АЗС, превосходная пекарня, фрукты-овощи, оборудованный пляж озеро Липовое и т. д. Полный спектр прелестей загородной жизни совсем рядом с городом. Прописка ЦАО г. Тюмень. Дом продается, в связи с переездом в другой город Звоните МЫ ГАРАНТИРУЕМ ФИНАНСОВУЮ БЕЗОПАСНОСТЬ ДЛЯ НАШИХ КЛИЕНТОВ.Код пользователя: 121822Номер в базе: 1795601

Читать полностью

    Для того, чтобы купить 1-этажный коттедж по адресу: Тюмень, Царево садовое товарищество, позвоните по телефону +7 (982) 929-80-62. Торопитесь! Объявление №50016685534 о продаже одноэтажного коттеджа опубликовано 12 января 2026.

    Позвонить Написать
    4 820 000 Р61 380 $ или 52 500
    Агент
    +7 (982) 929-80-62
    Начать чат с агентом
    Похожие предложения в Тюмени
    Дом в Тюменская область, Тюмень СОСН Березка-3 тер., ул. 15-я (91 м) - Фото 1
    Дом в Тюменская область, Тюмень СОСН Березка-3 тер., ул. 15-я (91 м) - Фото 2
    общая площадь 91м², участок 8 соток

    Продаётся уютный дом с тремя спальнями и просторным заломИщете комфортное жильё для большой семьи или планируете инвестировать в недвижимость? Тогда этот дом может стать отличным выбором Основные характеристики:- Три спальни площадью 10, 11 и 12 м.- Просторный...
    • 91 м²
    • 8 сот.
    4 750 000 Р
    Агент
    +7 (912) Показать номер
    Посмотреть контакты
    Дом в Тюменская область, Тюмень Садовое товарищество Липовый остров,  ... - Фото 1
    Дом в Тюменская область, Тюмень Садовое товарищество Липовый остров,  ... - Фото 2
    общая площадь 80м², участок 8 соток

    Продается дом в СНТ Липовый остров .Есть бaня 2 этажa, на первом этажe тёплый пол, нa втором бaтapeя. Бесeдкa кaк лeтняя куxня. Колодeц вoда заведена в бaню. Теплица, грядки, деревья ,мaлинa, cмоpодинa, eживикa, клубника.Такжe на даннoм этaпе стpoится...
    • 80 м²
    • 8 сот.
    4 900 000 Р
    Агент
    +7 (912) Показать номер
    Посмотреть контакты
    Дом в Тюменская область, Тюмень Садовое товарищество Липовый остров,  ... - Фото 1
    Дом в Тюменская область, Тюмень Садовое товарищество Липовый остров,  ... - Фото 2
    общая площадь 42м², участок 4 сотки

    Готовый дом в черте города от застройщика ваша мечта о загородной жизни по выгодной цене Представляем вашему вниманию уютный дачный дом из оцилиндрованного бревна в СНТ Липовый остров Это идеальное решение для тех, кто ценит комфорт, качество и удобное...
    • 42 м²
    • 4 сот.
    4 850 000 Р
    Агент
    +7 (982) Показать номер
    Посмотреть контакты
    Дом в Тюменская область, Тюмень Ручеек СНТ, ул. Плодовая, 23 (38 м) - Фото 1
    Дом в Тюменская область, Тюмень Ручеек СНТ, ул. Плодовая, 23 (38 м) - Фото 2
    1 этаж, общая площадь 38м², участок 6 соток

    Представляем вашему вниманию дом с земельным участком и отдельно стоящей баней в СНТ Ручеек. Дом жилой , оформлен в собсвенность. Уютный , ухоженный дом . По периметру участка огорожен забором из профнастила. На участке баня с железной печью. В доме выполнен...
    • 1 эт.
    • 38 м²
    • 6 сот.
    4 900 000 Р
    Агент
    +7 (982) Показать номер
    Посмотреть контакты
    Дом в Тюменская область, Тюмень пер. 7-й Степной (56 м) - Фото 1
    Дом в Тюменская область, Тюмень пер. 7-й Степной (56 м) - Фото 2
    1 этаж, общая площадь 56м², участок 4 сотки

    К продаже предлагается земельный участок с домиком и новой баней в городе, в р-не червишевского трактаПрекрасное место под строительство жилого дома, либо коммерческого помещения. По градостроительному плану разрешено строительство до 3-х этажей. Инфраструктура...
    • 1 эт.
    • 56 м²
    • 4 сот.
    4 800 000 Р
    Агент
    +7 (919) Показать номер
    Посмотреть контакты

    Не нашли подходящего объявления?

    Оставьте заявку, и наши риэлторы подберут купить дом в районе Тюмени

    (0)