Россия, Тюменская область, Тюмень, Новоуральская улица, 3
15 500 000 Р 196 600 $ или 167 800

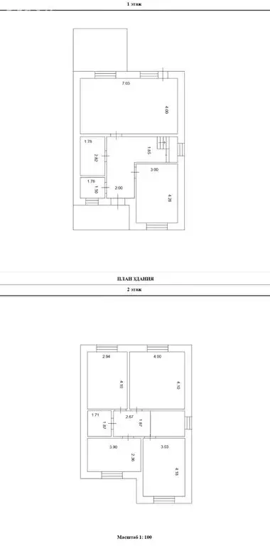
Информация о коттедже

127 м2
Площадь
2
Этажность
7 cоток
Участок

Дополнительная информация

Дом продаётся вместе с участком
есть
Развернуть
Агент
+7 (912) 911-54-53
Начать чат с агентом

Дом в Тюмень, микрорайон Березняковский, Новоуральская улица, 3 (127.7 ...

— Предлагаю купить двухэтажный дом Классика Все коммуникации подключены. — До центра города 10 минут, район Березняковский. — Экологически чистый район. — По согласованию возможна рассрочка или ипотека. — Этот двухэтажный кирпичный дом построен из керамзитоблока и силикатного кирпича - это один из самых лучших вариантов стен для нашего региона, сохраняет тепло зимой и прохладу летом. О ДОМЕ: — Общая площадь дома -127,3 кв.м., 4 просторных спальни, кухня-гостиная, два санузла - ванная комната и душевая, котельная и веранда, терраса. — Фундамент: монолитная плита — Стены: керамический блок, 100 мм., облицовка кирпич. — Крыша: Четырехскатная. — Пластиковые окна и качественные двери с терморазрывом. — Коммуникации: электричество 380 А, водопровод центральный, газ заведен в дом, септик 10м3 - на территории - все подключено. О РАЙОНЕ: — Район Березняковский - отсутствие городского шума и близость к центру, современный частный сектор с магазинами, ресторанами, школой и детским садом. — Великолепный природный ландшафт. — Удобное транспортное сообщение с центром города. УЧАСТОК: — Площадь:7.4 соток, правильной формы. — На участке есть место для парковки и сада. — К дому можно подъехать по асфальтированной дороге. — Участок дома оснащен парковкой для вашего автомобиля, а также огорожен забором, обеспечивая вам приватность и уединение. О СДЕЛКЕ: — Документы готовы к продаже. Возможна ипотека. — Без обременения. — Прямая продажа. — Полное юридическое сопровождение. ПОЧЕМУ МЫ? — Подготовка документов и подача заявок в банки для одобрения ипотеки. — Скидки по страховке до 50 от страховых компаний-партнеров. — Полное сопровождение сделки от выбора объекта до новоселья. — Широкая специализация на рынке недвижимости. — Высококвалифицированные специалисты, которые помогают Вам во всем процессе продаж. — Трансфер для просмотра дома. Звоните, отвечу на все вопросы по телефону и организую просмотр

Читать полностью

    Для того, чтобы купить 2-этажный коттедж по адресу: Тюмень, Новоуральская улица, 3, позвоните по телефону +7 (912) 911-54-53. Торопитесь! Объявление №50016687517 о продаже двухэтажного коттеджа опубликовано 05 января 2026.

    Позвонить Написать
    15 500 000 Р196 600 $ или 167 800
    Агент
    +7 (912) 911-54-53
    Начать чат с агентом
    Похожие предложения
    Дом в Тюменская область, Тюмень Березняки-2 садовое товарищество, ул. ... - Фото 1
    Дом в Тюменская область, Тюмень Березняки-2 садовое товарищество, ул. ... - Фото 2
    2 этажа, общая площадь 183м², участок 7 соток

    Покупай сейчас - плати потом На данный объект доступна рассрочка на выгодных условияхУважаемые покупатели Предлагаем вашему вниманию уникальное предложение — великолепный дом в садовом товариществе Березняки-2 Этот просторный дом площадью 183 м расположен...
    • 2 эт.
    • 183 м²
    • 7 сот.
    15 000 000 Р
    Агент
    +7 (919) Показать номер
    Посмотреть контакты
    Коттедж в Тюменская область, Тюмень Тарманы мкр, ул. Клубная, 1 (560 ... - Фото 1
    Коттедж в Тюменская область, Тюмень Тарманы мкр, ул. Клубная, 1 (560 ... - Фото 2
    2 этажа, общая площадь 560м², участок 10 соток

    АУКЦИОН. Объект реализуется через электронный аукцион споЗемельный участок, категория земель Земли населенных пунктов, кадастровый (условный) номер 72: 23: 0106002: 681, общей площадью 1500 кв.м. , Место нахождения: Россия, обл Тюменская, г Тюмень, пгт...
    • 2 эт.
    • 560 м²
    • 10 сот.
    16 002 707 Р
    Агент
    +7 (982) Показать номер
    Посмотреть контакты
    Дом в Тюменская область, Тюмень  (100 м) - Фото 1
    Дом в Тюменская область, Тюмень  (100 м) - Фото 2
    1 этаж, общая площадь 100м², участок 7 соток

    Арт.Продается уютный дом с готовым ремонтом площадью 100 м2 Благоустройство участка уже включено в стоимость: Тротуарная плитка и газон.Система автоматического полива.Полностью огороженный участок с автоматическими воротами.Готовый качественный ремонт....
    • 1 эт.
    • 100 м²
    • 7 сот.
    15 500 000 Р
    Агент
    +7 (982) Показать номер
    Посмотреть контакты
    Дом в Тюменская область, Тюмень Ривьера садовое товарищество, ул. ... - Фото 1
    Дом в Тюменская область, Тюмень Ривьера садовое товарищество, ул. ... - Фото 2
    2 этажа, общая площадь 144м², участок 8 соток

    Продается замечательный коттедж в одном из самых привлекательных районов города Тюмени: проезд Воронинские горки, район пос. Метелево/Ривьера. Дом расположен в непосредственной близости к городу: 15 минут до центра города на машине и на aвтобусе. Дом...
    • 2 эт.
    • 144 м²
    • 8 сот.
    15 999 999 Р
    Агент
    +7 (982) Показать номер
    Посмотреть контакты
    Дом в Тюменская область, Тюмень СОСН Березовое Озеро тер.,  (156 м) - Фото 1
    Дом в Тюменская область, Тюмень СОСН Березовое Озеро тер.,  (156 м) - Фото 2
    общая площадь 156м², участок 7 соток

    Продам дом 156 м2 на участке ИЖС 7.5 соток, расположенный в Береза-парке на Салаирском тракте в 15 минутах от города.Всего в 100 метрах от благоустроенного пляжа находится этот уникальный дом, созданный с любовью и вниманием к каждой детали.Планировка...
    • 156 м²
    • 7 сот.
    15 500 000 Р
    Агент
    +7 (982) Показать номер
    Посмотреть контакты

    Не нашли подходящего объявления?

    Оставьте заявку, и наши риэлторы подберут купить дом в районе Тюмени

    (0)