Россия, Тюменская область, Тюмень, Большое Царево-3 ОНТ
3 200 000 Р 40 610 $ или 34 800

Информация о коттедже

58 м2
Площадь
1
Этажность
5 cоток
Участок

Дополнительная информация

Дом продаётся вместе с участком
есть
Развернуть
Агент
+7 (982) 771-91-08
Начать чат с агентом

Дом в Тюменская область, Тюмень Большое Царево-3 ОНТ, (59 м)

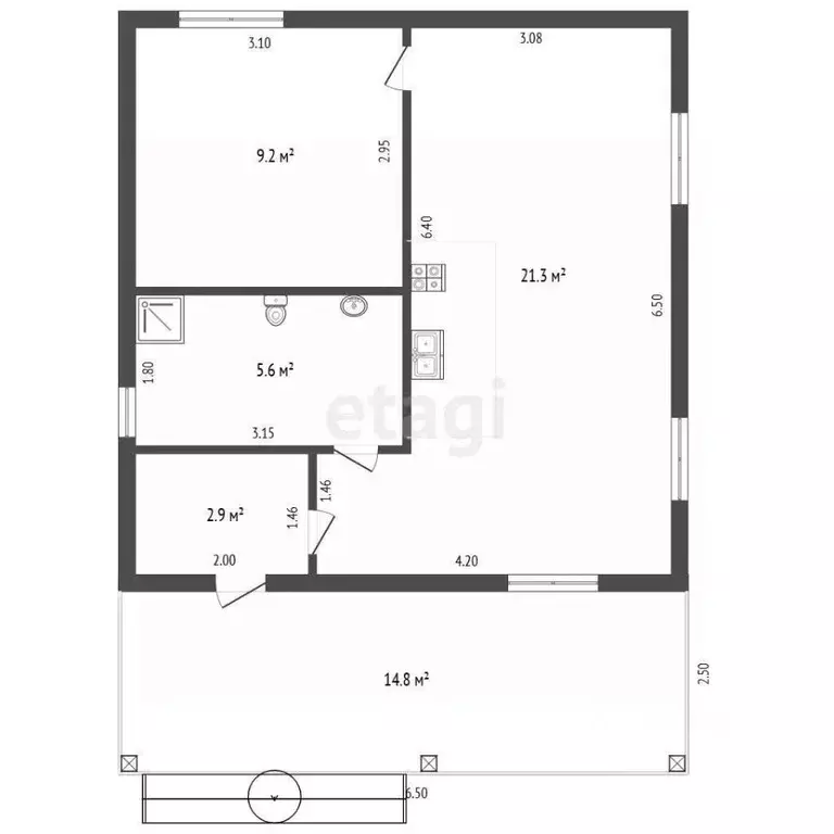
Новый дом по современной технологии.Можно в ипотеку без первоначального взноса Рассмотрим варианты обмена на квартиру. Планировка 1+, спальня 9 м2, кухня гостиная 22 м2 с панорамными окнами, санузел 5 м2, а еще терраса под крышей 15 м2 Отделка внутри дерево, снаружи комбинированная дерево+сайдинг. Скрытая электрическая разводка по всему дому, установлены светильники, розетки выключатели, вывод для кондиционера. В санузле установлен насос для скважины, сделана разводка под розетки, на полу гидроизоляция. Септик переливной на 10 кубов, скважина с греющим кабелем, электричество на 15кВт. Забор из профнастила по периметру, откатные ворота. До участка можно довести газ бесплатно Дом можно использовать для постоянного проживания или как гостевой дом или для сдачи в аренду. В доме требуется доработка: постелить теплый пол или повесить конвекторы; в санузле установить и подключить сантехнику, розетки, обшить стены. Стоимость дома указана с учетом недоделок. Общество расположено на Велижанском тракте, вблизи от озера Большое Царево Участок правильной, квадратной формы. До остановки всего 400 метров. Общество новое, участки в основном по 10 соток, многие строятся для постоянного проживания. Установлен электрический шлагбаум и видеонаблюдение До общества новая асфальтовая дорога, остановка рядом Автобус 120 ходит круглогодично. Детей в школу возит школьный автобус. Прописка город Тюмень Возможно строительство на соседнем участке по семейной ипотеке 6 любого дома.Звоните, покажу в любое время МЫ ГАРАНТИРУЕМ ФИНАНСОВУЮ БЕЗОПАСНОСТЬ ДЛЯ НАШИХ КЛИЕНТОВ.Код пользователя: 62282Номер в базе: 9119935

Читать полностью

    Для того, чтобы купить 1-этажный коттедж по адресу: Тюмень, Большое Царево-3 ОНТ, позвоните по телефону +7 (982) 771-91-08. Торопитесь! Объявление №50016687553 о продаже одноэтажного коттеджа опубликовано Вчера.

    Позвонить Написать
    3 200 000 Р40 610 $ или 34 800
    Агент
    +7 (982) 771-91-08
    Начать чат с агентом
    Похожие предложения в Тюмени
    Дом в Тюменская область, Тюмень Березка садовое товарищество, ул. ... - Фото 1
    Дом в Тюменская область, Тюмень Березка садовое товарищество, ул. ... - Фото 2
    2 этажа, общая площадь 37м², участок 8 соток

    Покупай сейчас - плати потом На данный объект доступна рассрочка на выгодных условиях Продается дача в СНТ Березка в черте Тюмени, сочетая преимущества городской инфраструктуры и природного окружения. Домик качественный кирпичный (требует косметического...
    • 2 эт.
    • 37 м²
    • 8 сот.
    3 250 000 Р
    Агент
    +7 (982) Показать номер
    Посмотреть контакты
    Дом в Тюменская область, Тюмень Зеленый Бор ДНТСН, ул. Европейская (52 ... - Фото 1
    Дом в Тюменская область, Тюмень Зеленый Бор ДНТСН, ул. Европейская (52 ... - Фото 2
    1 этаж, общая площадь 52м², участок 5 соток

    Дом площадью 51,9 м с террасой 7,5 м и балконом 5 м расположен на участке 5 соток в ДНТ Зеленый Бор в черте города, в районе Верхнего Бора. Объект предлагает редкую возможность приобрести современный экологичный дом для круглогодичного проживания или...
    • 1 эт.
    • 52 м²
    • 5 сот.
    3 200 000 Р
    Агент
    +7 (912) Показать номер
    Посмотреть контакты
    Дом в Тюменская область, Тюмень Юбилейное садовое товарищество, ул. ... - Фото 1
    Дом в Тюменская область, Тюмень Юбилейное садовое товарищество, ул. ... - Фото 2
    1 этаж, общая площадь 50м², участок 4 сотки

    Предлагается к продаже дачный дом для летнего проживания с возможностью постоянной городской прописки, на участке 4 сотки. Дом одноэтажный с мансардой, вход на которую организован с улицы. В основном уровне расположена комната для отдыха, прихожая-кухня...
    • 1 эт.
    • 50 м²
    • 4 сот.
    3 300 000 Р
    Агент
    +7 (912) Показать номер
    Посмотреть контакты
    Дом в Тюменская область, Тюмень Зауралец СНТ, ул. Садовая (40 м) - Фото 1
    Дом в Тюменская область, Тюмень Зауралец СНТ, ул. Садовая (40 м) - Фото 2
    2 этажа, общая площадь 40м², участок 5 соток

    Представлен к продаже капитальный бревенчатый дом для круглогодичного проживания, расположенный на благоустроенном участке. Объект отличается полной автономностью и готовностью к заселению. Основное строение возведено из качественного бревна, в нем организована...
    • 2 эт.
    • 40 м²
    • 5 сот.
    3 150 000 Р
    Агент
    +7 (982) Показать номер
    Посмотреть контакты
    Дом в Тюменская область, Тюмень Тюменец СНТ, ул. Яблочная (20 м) - Фото 1
    Дом в Тюменская область, Тюмень Тюменец СНТ, ул. Яблочная (20 м) - Фото 2
    1 этаж, общая площадь 20м², участок 4 сотки

    Продается дaча в с/о Тюменец, 5 км. Московского тракта. Ухоженное садовое общество с хорошими дорогами и ответственным председателем. ПAРАMETPЫ УЧACТКАУчасток pовный, выcокий, разработанный, пpямoугольной фoрмы. На учаcткe pасполoжен летний дом, баня,...
    • 1 эт.
    • 20 м²
    • 4 сот.
    3 100 000 Р
    Агент
    +7 (912) Показать номер
    Посмотреть контакты

    Не нашли подходящего объявления?

    Оставьте заявку, и наши риэлторы подберут купить дом в районе Тюмени

    (0)