Россия, Тюменская область, Тюмень, садовое товарищество Надежда (ВОИ)
7 800 000 Р 100 500 $ или 86 370

Информация о коттедже

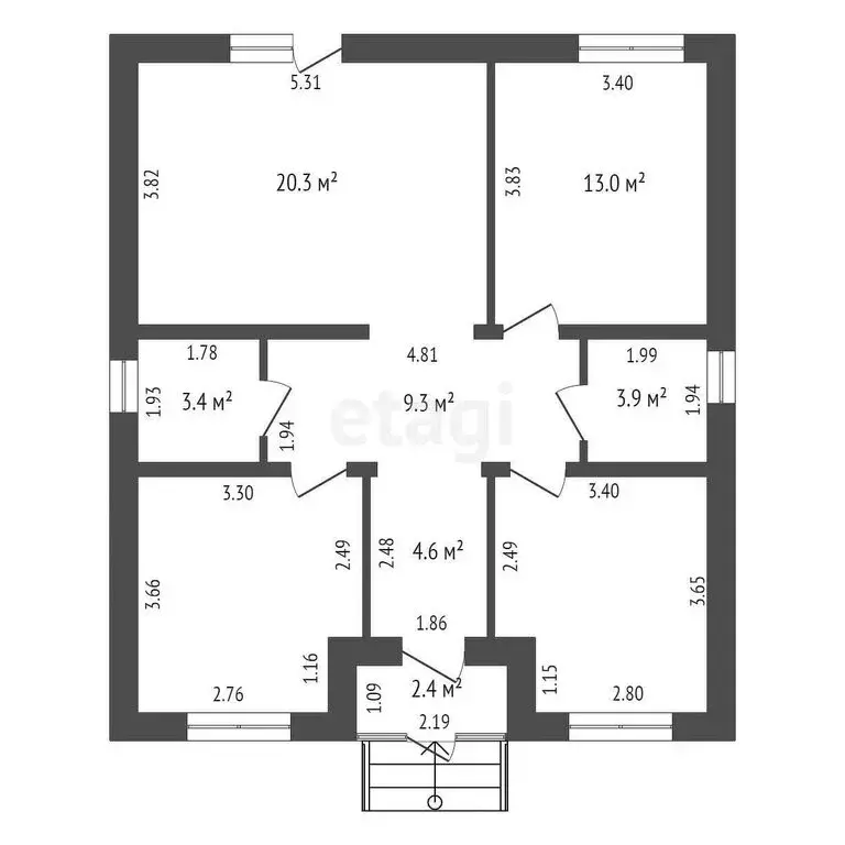
83 м2
Площадь
1
Этажность
6 cоток
Участок

Дополнительная информация

Дом продаётся вместе с участком
есть
Развернуть
Агент
+7 (934) 442-40-09
Начать чат с агентом

Дом в Тюмень, садовое товарищество Надежда (ВОИ), Первая улица (83.3 ...

Продается великолепный современный кирпичный дом, который станет идеальным местом для вашей семьи Этот уютный одноэтажный дом площадью 83,3 кв.м расположен на земельном участке 6,2 сотки с назначением ИЖС. Участок уже отсыпан и выровнен, что позволяет вам сразу же приступить к обустройству своего нового уголка.Дом построен на надежной фундаментной плите толщиной 300 мм, которая утеплена для вашего комфорта. Внутри выполнена качественная отделка: стены и полы выровнены по маякам, а стяжка пола обеспечивает идеальную основу для вашего интерьера. Высокие потолки (3 метра) создают ощущение простора и света.Внутреннее пространство включает три уютные комнаты и просторную кухню-гостиную, где вы сможете проводить время с близкими. Теплые полы по всему дому обеспечат комфорт в холодное время года. Также предусмотрены котельная и гостевой санузел, что добавляет удобства в повседневной жизни.В котельной установлен современный электрический двухконтурный котел, который обеспечит вас теплом и горячей водой. Вода поступает из скважины, а канализация организована через септик – все для вашего удобства и комфорта.На приусадебной территории есть возможность построить гараж и организовать дополнительную парковку для второго автомобиля. Участок огорожен надежным забором из профнастила, что гарантирует вашу безопасность и приватность.Не упустите шанс стать владельцем этого замечательного дома Мы также работаем с ипотекой, что делает покупку еще более доступной. Звоните прямо сейчас, чтобы организовать просмотр и узнать больше Ваш новый дом ждет вас МЫ ГАРАНТИРУЕМ ФИНАНСОВУЮ БЕЗОПАСНОСТЬ ДЛЯ НАШИХ КЛИЕНТОВ.Код пользователя: 111098Номер в базе: 1855720

Читать полностью

    Для того, чтобы купить 1-этажный коттедж по адресу: Тюмень, садовое товарищество Надежда (ВОИ), позвоните по телефону +7 (934) 442-40-09. Торопитесь! Объявление №50016823813 о продаже одноэтажного коттеджа опубликовано 2 дня назад.

    Позвонить Написать
    7 800 000 Р100 500 $ или 86 370
    Агент
    +7 (934) 442-40-09
    Начать чат с агентом
    Похожие предложения в Тюмени
    Дом в Тюменская область, Тюмень Царево садовое товарищество,  (87 м) - Фото 1
    Дом в Тюменская область, Тюмень Царево садовое товарищество,  (87 м) - Фото 2
    1 этаж, общая площадь 87м², участок 5 соток

    Жить за городом, оставаясь в ритме Тюмени и с Тюменской пропиской Продается новый капитальный дом для круглогодичного проживания в СНТ Царево . Это самое близкое и удобное СНТ по Велижанскому тракту — минимальное расстояние до центра города Почему это...
    • 1 эт.
    • 87 м²
    • 5 сот.
    7 700 000 Р
    Агент
    +7 (982) Показать номер
    Посмотреть контакты
    Коттедж в Тюменская область, Тюмень ул. Рублевская (90 м) - Фото 1
    Коттедж в Тюменская область, Тюмень ул. Рублевская (90 м) - Фото 2
    1 этаж, общая площадь 90м², участок 5 соток

    Предлагается к продаже новый дом в экологически чистом районе Березняки. Материал стен: керамзитобетонные блоки, утеплитель пенопласт, облицовка - керамический кирпич, фундамент - монолитная плита.Дом в предчистовой отделке White box: стены выровнены...
    • 1 эт.
    • 90 м²
    • 5 сот.
    7 700 000 Р
    Агент
    +7 (982) Показать номер
    Посмотреть контакты
    Коттедж в Тюменская область, Тюмень ул. Рублевская, 57к17 (90 м) - Фото 1
    Коттедж в Тюменская область, Тюмень ул. Рублевская, 57к17 (90 м) - Фото 2
    1 этаж, общая площадь 90м², участок 5 соток

    Предлагается к продаже новый дом в экологически чистом районе Березняки. Материал стен: керамзитобетонные блоки, утеплитель пенопласт, облицовка - керамический кирпич, фундамент - монолитная плита.Дом в предчистовой отделке White box: стены выровнены...
    • 1 эт.
    • 90 м²
    • 5 сот.
    7 700 000 Р
    Агент
    +7 (982) Показать номер
    Посмотреть контакты
    Дом в Тюменская область, Тюмень Березняковский мкр,  (96 м) - Фото 1
    Дом в Тюменская область, Тюмень Березняковский мкр,  (96 м) - Фото 2
    1 этаж, общая площадь 96м², участок 6 соток

    Строительство современного дома по выгодной программе Уважаемые покупатели Приглашаем вас стать владельцем собственного нового дома, построенного по программе Семейная ипотека .Ключевые преимущества: Выгодные условия: Приобретение доступно по льготной...
    • 1 эт.
    • 96 м²
    • 6 сот.
    7 700 000 Р
    Агент
    +7 (912) Показать номер
    Посмотреть контакты
    Дом в Тюменская область, Тюмень ул. Рублевская (100 м) - Фото 1
    Дом в Тюменская область, Тюмень ул. Рублевская (100 м) - Фото 2
    1 этаж, общая площадь 100м², участок 5 соток

    Стоимость снижена Подходит для покупки по семейной ипотеке со ставкой 6 Новый дом в шикарном месте, в окружении леса, но вблизи города Таких локаций очень мало - здесь Вы находитесь по-настоящему наедине с природой, при этом всего в нескольких минутах...
    • 1 эт.
    • 100 м²
    • 5 сот.
    7 700 000 Р
    Агент
    +7 (982) Показать номер
    Посмотреть контакты

    Не нашли подходящего объявления?

    Оставьте заявку, и наши риэлторы подберут купить дом в районе Тюмени

    (0)