Россия, Тюменская область, Тюмень, территория СОСН Русское Поле
8 125 000 Р 102 700 $ или 88 470

Информация о коттедже

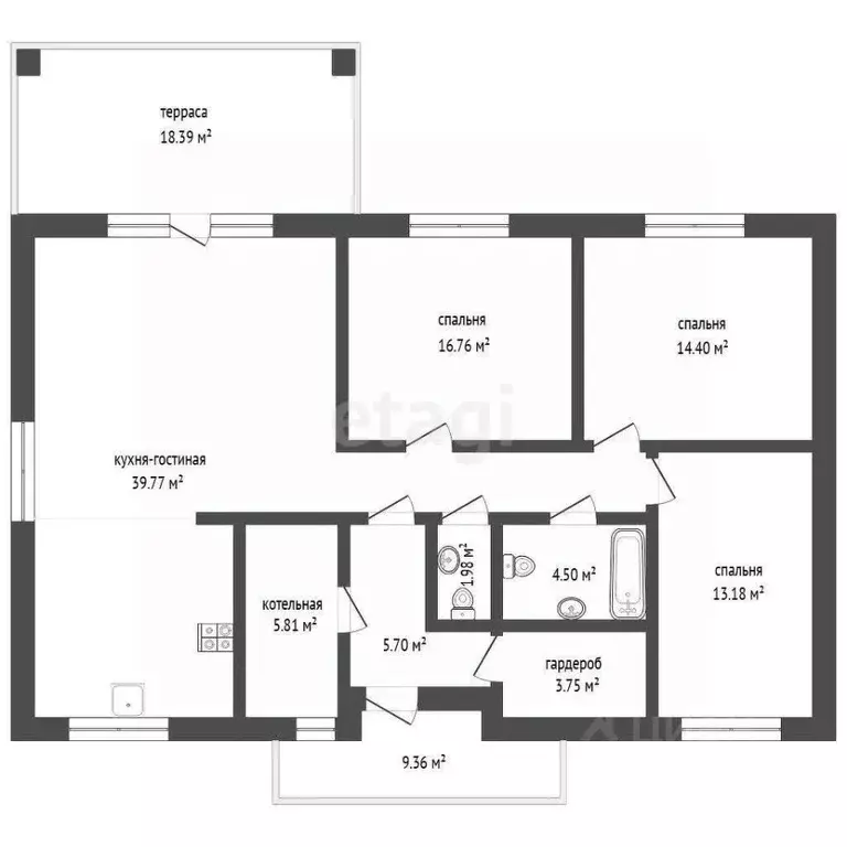
100 м2
Площадь
1
Этажность
7 cоток
Участок

Дополнительная информация

Дом продаётся вместе с участком
есть
Развернуть
Агент
+7 (964) 206-02-24
Начать чат с агентом

Дом в Тюмень, территория СОСН Русское Поле, Добрая улица (100 м)

Продается кирпичный дом площадью 100 м в СНТ Русское поле . Предлагает редкое сочетание надежности капитальной постройки и свободы для окончательной отделки под личные предпочтения. Продуманная планировка с высокими потолками и правильной геометрией помещений и улучшенная черновая отделка создают отличную основу: вы избегаете затрат на перепланировку и получаете чистый холст для реализации любого дизайн-проекта.Коммуникации полностью подготовлены для комфортного проживания: к дому подведены центральное водоснабжение и магистральный газ, что существенно упрощает и удешевляет организацию независимого отопления или подключение газового котла. Для утилизации стоков уже установлен современный септик. Дополнительным преимуществом является система теплого пола, заложенная на этапе черновой отделки. Подъезд к участку осуществляется по асфальтированной дороге, что гарантирует доступность в любое время года. Спокойная атмосфера садового товарищества, удаленность от городского шума и собственная территория формируют полноценную загородную жизнь. Рассматриваются различные формы расчета, возможен торг для покупателей с наличными средствами.МЫ ГАРАНТИРУЕМ ФИНАНСОВУЮ БЕЗОПАСНОСТЬ ДЛЯ НАШИХ КЛИЕНТОВ.Код пользователя: 188502Номер в базе:

Читать полностью

    Для того, чтобы купить 1-этажный коттедж по адресу: Тюмень, территория СОСН Русское Поле, позвоните по телефону +7 (964) 206-02-24. Торопитесь! Объявление №50016835328 о продаже одноэтажного коттеджа опубликовано Вчера.

    Позвонить Написать
    8 125 000 Р102 700 $ или 88 470
    Агент
    +7 (964) 206-02-24
    Начать чат с агентом
    Похожие предложения в Тюмени
    Дом в Тюменская область, Тюмень СОСН Мичуринец тер.,  (327 м) - Фото 1
    Дом в Тюменская область, Тюмень СОСН Мичуринец тер.,  (327 м) - Фото 2
    3 этажа, общая площадь 327м², участок 5 соток

    Продам отдельно стоящее здание, сауну, хостел. Оформлено как жилое. Два зала сауны. Большой зал с большим бассейном, бильярдом и зона отдыха. Везде большие экраны и интернет. Вода своя, есть сертификат о чистоте. Газ, отопление в зиму в месяц(зимой)...
    • 3 эт.
    • 327 м²
    • 5 сот.
    8 000 000 Р
    Агент
    +7 (982) Показать номер
    Посмотреть контакты
    Дом в Тюменская область, Тюмень Меридиан СНТ, ул. 13-я (103 м) - Фото 1
    Дом в Тюменская область, Тюмень Меридиан СНТ, ул. 13-я (103 м) - Фото 2
    1 этаж, общая площадь 103м², участок 5 соток

    Уважаемые покупатели, к продаже представлен дом площадью 131,6 кв.м, расположенный на 5 км Московского тракта, удобный отдельный въезд с Московского тракта 200 метров. В 20 минутах езды от цента города, в 2 минутах от Объездной. Планировка включает: большую...
    • 1 эт.
    • 103 м²
    • 5 сот.
    8 000 000 Р
    Агент
    +7 (982) Показать номер
    Посмотреть контакты
    Дом в Тюменская область, Тюмень Парфеново мкр, ул. Лобкова (285 м) - Фото 1
    Дом в Тюменская область, Тюмень Парфеново мкр, ул. Лобкова (285 м) - Фото 2
    общая площадь 285м², участок 8 соток

    Продается двухэтажный коттедж на участке ИЖС площадью 285 м. В собственности у одного владельца. Особенности дома: •Два откатных ворот с калиткой для удобства въезда и выхода.•Стены из керамзитоблока, что обеспечивает отличную теплоизоляцию.•Крыша из...
    • 285 м²
    • 8 сот.
    8 200 000 Р
    Агент
    +7 (919) Показать номер
    Посмотреть контакты
    Дом в Тюменская область, Тюмень Меридиан СНТ, ул. Садовая (103 м) - Фото 1
    Дом в Тюменская область, Тюмень Меридиан СНТ, ул. Садовая (103 м) - Фото 2
    общая площадь 103м², участок 6 соток

    БЕЗ КОМИССИИ — ГАРАНТИЯ ОТ ЗАСТРОЙЩИКА ПРОДАМ НОВЫЙ ГОТОВЫЙ ДОМ в СНТ Меридиан , всего 7 минут от города Ипотека от 6 Дом 103,3 м:3 отдельные спальни (в т.ч. мастер-спальня)2 санузлагардеробнаякотельнаяпросторная кухня-гостиная с выходом на угловую...
    • 103 м²
    • 6 сот.
    8 000 000 Р
    Агент
    +7 (982) Показать номер
    Посмотреть контакты
    Дом в Тюменская область, Тюмень Садовое товарищество Липовый остров, ... - Фото 1
    Дом в Тюменская область, Тюмень Садовое товарищество Липовый остров, ... - Фото 2
    1 этаж, общая площадь 105м², участок 7 соток

    Предлагаем к продаже отличный дом в с/о Липовый остров по Салаирскому тракту. Можно приобрести по семейной ипотеке.Вблизи общества расположено озеро, круглогодично ходит общественный транспорт. На участке расположен капитальный дом, изготовленный из блока,...
    • 1 эт.
    • 105 м²
    • 7 сот.
    8 000 000 Р
    Агент
    +7 (982) Показать номер
    Посмотреть контакты

    Не нашли подходящего объявления?

    Оставьте заявку, и наши риэлторы подберут купить дом в районе Тюмени

    (0)