6 699 000 Р 83 500 $ или 72 830

Информация о коттедже

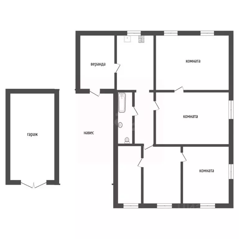
93 м2
Площадь
2
Этажность
1 cоток
Участок

Дополнительная информация

Дом продаётся вместе с участком
есть
Развернуть
Агент
+7 (982) 942-57-70
Начать чат с агентом

Дом в Тюменская область, Тюмень Парфеново мкр, ул. Мусы Джалиля (93 м)

Уважаемые покупатели, продается дом в центральном районе. К дому подведены все коммуникации, есть просторный гараж с автоматическими воротами, двор под автомобиль, выложен брусчаткой, домофон. В доме имеется сауна, просторный сан-узел, кухня, зал и две спальни на втором этаже. Обшит сайдингом. В шаговой доступности магазины, остановка общественного транспорта, школа 9. Поблизости находится аквапарк Лето-Лето, улица асфальтирована. Отличный вариант для тех, кто хочет жить в своем доме , но с комфортом квартиры, без соседей за стеной и проблем с парковочным местом. Звоните, записывайтесь на показ.МЫ ГАРАНТИРУЕМ ФИНАНСОВУЮ БЕЗОПАСНОСТЬ ДЛЯ НАШИХ КЛИЕНТОВ.Код пользователя: 76670Номер в базе: 1575662

Читать полностью

    Для того, чтобы купить 2-этажный коттедж по адресу: Тюмень, Парфеново мкр, позвоните по телефону +7 (982) 942-57-70. Торопитесь! Объявление №50016845415 о продаже двухэтажного коттеджа опубликовано 13 марта 2026.

    Позвонить Написать
    6 699 000 Р83 500 $ или 72 830
    Агент
    +7 (982) 942-57-70
    Начать чат с агентом
    Похожие предложения в Тюмени
    Дом в Тюменская область, Тюмень пос. Букино, ул. Оренбургская (98 м) - Фото 1
    Дом в Тюменская область, Тюмень пос. Букино, ул. Оренбургская (98 м) - Фото 2
    2 этажа, общая площадь 98м², участок 12 соток

    Ваш дом для счастливой жизни в гармонии с природой, не выезжая из города Представляем вам уникальное предложение — уютный двухэтажный дом из бруса, построенный в 2010 году, который станет вашим личным уголком спокойствия и уюта. Это не просто дом, это...
    • 2 эт.
    • 98 м²
    • 12 сот.
    6 730 000 Р
    Агент
    +7 (982) Показать номер
    Посмотреть контакты
    Дом в Тюменская область, Тюмень Надежда-3 СНТ, ул. Рощинская, 441 (76 ... - Фото 1
    Дом в Тюменская область, Тюмень Надежда-3 СНТ, ул. Рощинская, 441 (76 ... - Фото 2
    2 этажа, общая площадь 76м², участок 6 соток

    дом из бруса, для круглогодичного проживания, утеплен обшит сайдингом, на винтовых сваях. Участок 6 соток. Септик 8 куб. На полу везде ламинат, потолки натяжные. Сан. узел в доме. На первом этаже кухня гостиная, на втором две комнаты. На участке сруб...
    • 2 эт.
    • 76 м²
    • 6 сот.
    6 600 000 Р
    Агент
    +7 (982) Показать номер
    Посмотреть контакты
    Дом в Тюменская область, Тюмень СОСН Чайка тер., ул. Мелиораторов (125 ... - Фото 1
    Дом в Тюменская область, Тюмень СОСН Чайка тер., ул. Мелиораторов (125 ... - Фото 2
    1 этаж, общая площадь 125м², участок 4 сотки

    Покупай сейчас - плати потом На данный объект доступна рассрочка на выгодных условияхПросторный 3 комнатный дом с ремонтом- идеальное решение для тех, кто ценит комфорт и качество Плюсы этого дома: 3 светлые и просторные комнаты- место для каждого члена...
    • 1 эт.
    • 125 м²
    • 4 сот.
    6 799 000 Р
    Агент
    +7 (982) Показать номер
    Посмотреть контакты
    Дом в Тюменская область, Тюмень Быкова мкр, ул. Тихих Зорь (45 м) - Фото 1
    Дом в Тюменская область, Тюмень Быкова мкр, ул. Тихих Зорь (45 м) - Фото 2
    1 этаж, общая площадь 45м², участок 10 соток

    Предлагается к продаже уютный дом площадью 45 кв.м на участке 10 соток в районе Быково, в черте города Отличный вариант для молодой семьи . Возможен обмен на квартиру в г. Тюмень .Основные характеристики: - Одноэтажный дом из бревна с планировкой...
    • 1 эт.
    • 45 м²
    • 10 сот.
    6 750 000 Р
    Агент
    +7 (982) Показать номер
    Посмотреть контакты
    Дом в Тюменская область, Тюмень Садовое товарищество Липовый остров, ... - Фото 1
    Дом в Тюменская область, Тюмень Садовое товарищество Липовый остров, ... - Фото 2
    2 этажа, общая площадь 122м², участок 8 соток

    Продается просторный двухэтажный дом в СНТ Площадь дома: 122 м Площадь участка: 8.6 соток Этажность: 2 Количество комнат: 3 Год постройки: 2014 Материал стен: брус О доме: Продаю просторный двухэтажный дом с дизайнерским ремонтом, полностью...
    • 2 эт.
    • 122 м²
    • 8 сот.
    6 800 000 Р
    Агент
    +7 (912) Показать номер
    Посмотреть контакты

    Не нашли подходящего объявления?

    Оставьте заявку, и наши риэлторы подберут купить дом в районе Тюмени

    (0)