Россия, Тюменская область, Тюмень, жилой комплекс Окинава
7 540 000 Р 92 870 $ или 80 630

Информация о квартире

40 м2
Площадь
12 м2
Жилая
14 м2
Кухня
1
Комната
11
Этаж
19
Этажность
Развернуть
Агент
+7 (982) 910-87-60
Начать чат с агентом

1-комнатная квартира: Тюмень, жилой комплекс Окинава (40.76 м)

Apт.2417254. Просторная 1-комн. квартира с предчистовой отделкой в ЖК Окинава на 11 этаже. Общая площадь: 40.76 кв.м., жилая: 12.63 кв.м., площадь просторной кухни-столовой: 14.47 кв.м. Все окна выходят на одну сторону. В квартире один балкон, один совмещенный санузел. Высота потолков 2.7 м. Квартира будет сдана с предчистовой отделкой: на полах стяжка под финишное покрытие, стены подготовлены под покраску или оклейку обоями, разведена вся электрика с подготовкой для установки выключателей и освещения. При желании вы можете заказать отделку под ключ, варианты возможных решений представлены в альбоме фотографий. Дом монолитный, многоподъездный, переменной этажности, от 13 до 19 этажей. Квартира находится во 2-й секции высотой 13 этажей в корпусе Дом Огня. На этаже 5 квартир. В подъезде 1 пассажирский и 1 грузовой лифт. Окончание строительства - 3 квартал 2027 года. Оформление сделки по договору долевого участия. ЖК «Окинава – это не просто жилой комплекс, это остров 4 стихий. Они отражаются во внешнем виде фасадов домов, обустройстве дворов и внутреннем оформлении холлов. Каждая из стихий – это отдельный дом. Между домами раскинется большой двухуровневый пешеходный бульвар. Первый уровень – прогулочный с местами для отдыха, амфитеатром и фонтанами. На втором уровне расположатся площадки для детей, спортивных игр и тренировок. Квартал будет располагать богатой инфраструктурой: на первых этажах разместятся магазины, пекарни, кофейни, пункты выдачи, аптеки, детские центры, цветочные салоны и многое другое, что сделает жизнь поистине комфортной. В жилом комплексе есть кладовые, а также несколько видов паркинга: уличный гостевой, закрытый теплый и паркинг в стилобате, попасть в который можно на лифте с любого жилого этажа. Дворы в каждом доме отражают его стихию, отличаясь по наполнению. Они дополняют друг друга, образуя единое дворовое пространство жилого комплекса. Закрытая территория, свободная от автомобилей, обеспечит безопасность и спокойный отдых. Холлы оформлены керамогранитом, зеркалами и разноуровневым освещением. Витражные входные группы, мягкие зоны ожидания, видеонаблюдение 24/7, вместительные колясочные и даже лапомойки для питомцев – всё это будет в ЖК «Окинава . Жилой комплекс «Окинава находится в активно развивающемся V заречном микрорайоне, недалеко от озера Алебашево, где в будущем расположится масштабный ивент-парк с зонами отдыха. Удобная транспортная развязка позволит добраться до центра всего за 15 минут.

Читать полностью
    Позвонить Написать
    7 540 000 Р92 870 $ или 80 630
    Агент
    +7 (982) 910-87-60
    Начать чат с агентом
    Похожие предложения в Тюмени
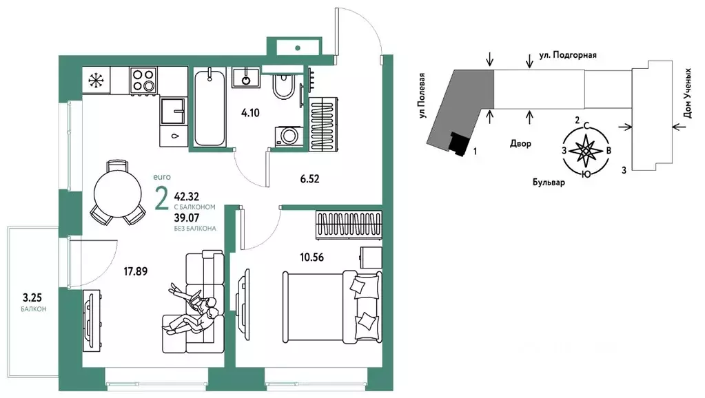
    2-к кв. Тюменская область, Тюмень Авторский жилой комплекс (42.32 м) - Фото 1
    2-к кв. Тюменская область, Тюмень Авторский жилой комплекс (42.32 м) - Фото 2
    2-комнатная квартира, общая площадь 42м², жилая 23м², кухня 5м²

    Новая квартира в ЖК Авторский напрямую от федерального застройщика Страна Девелопмент .Продается 2комнатная квартира на 8 этаже от застройщика Страна Девелопмент. Площадь квартиры 42,32 кв. м.Жилой комплекс Авторский — квартал для авторов своей жизни...
    • 42 м²
    • 2-ком
    • 8/16 эт.
    7 588 889 Р
    Агент
    +7 (994) Показать номер
    Посмотреть контакты
    2-к кв. Тюменская область, Тюмень ул. Новаторов, 30 (58.5 м) - Фото 1
    2-комнатная квартира, общая площадь 58м²

    Продаётся 2-комнатная квартира в строящемся доме (ГП-1 (Новаторов, 28)), срок сдачи: IV-кв. 2025, общей площадью 58.5 кв.м., на 3 этаже. Новый жилой комплекс Новатор от застройщика ГК СБКасположен по адресу: г. Тюмень по ул. Новаторов.
    • 58 м²
    • 2-ком
    • 3/14 эт.
    7 512 000 Р
    Агент
    +7 (800) Показать номер
    Посмотреть контакты
    2-к кв. Тюменская область, Тюмень ул. Новаторов, 30 (58.5 м) - Фото 1
    2-комнатная квартира, общая площадь 58м²

    Продаётся 2-комнатная квартира в строящемся доме (ГП-1 (Новаторов, 28)), срок сдачи: IV-кв. 2025, общей площадью 58.5 кв.м., на 7 этаже. Новый жилой комплекс Новатор от застройщика ГК СБКасположен по адресу: г. Тюмень по ул. Новаторов.
    • 58 м²
    • 2-ком
    • 7/14 эт.
    7 512 000 Р
    Агент
    +7 (800) Показать номер
    Посмотреть контакты
    2-к кв. Тюменская область, Тюмень ул. Новаторов, 30 (58.5 м) - Фото 1
    2-комнатная квартира, общая площадь 58м²

    Продаётся 2-комнатная квартира в строящемся доме (ГП-1 (Новаторов, 28)), срок сдачи: IV-кв. 2025, общей площадью 58.5 кв.м., на 9 этаже. Новый жилой комплекс Новатор от застройщика ГК СБКасположен по адресу: г. Тюмень по ул. Новаторов.
    • 58 м²
    • 2-ком
    • 9/14 эт.
    7 512 000 Р
    Агент
    +7 (800) Показать номер
    Посмотреть контакты
    2-к кв. Тюменская область, Тюмень ул. Новаторов, 30 (57.9 м) - Фото 1
    2-комнатная квартира, общая площадь 57м²

    Продаётся 2-комнатная квартира в строящемся доме (ГП-1 (Новаторов, 28)), срок сдачи: IV-кв. 2025, общей площадью 57.9 кв.м., на 7 этаже. Новый жилой комплекс Новатор от застройщика ГК СБКасположен по адресу: г. Тюмень по ул. Новаторов.
    • 57 м²
    • 2-ком
    • 7/14 эт.
    7 438 000 Р
    Агент
    +7 (800) Показать номер
    Посмотреть контакты

    Не нашли подходящего объявления?

    Оставьте заявку, и наши риэлторы подберут квартиру в новостройке в районе Тюмени

    (0)