Россия, Тюменская область, Тюмень, жилой комплекс Мотивы
8 210 000 Р 101 100 $ или 87 490

Информация о квартире

62 м2
Площадь
23 м2
Жилая
18 м2
Кухня
2
Комнаты
10
Этаж
14
Этажность
Развернуть
Агент
+7 (919) 957-09-10
Начать чат с агентом

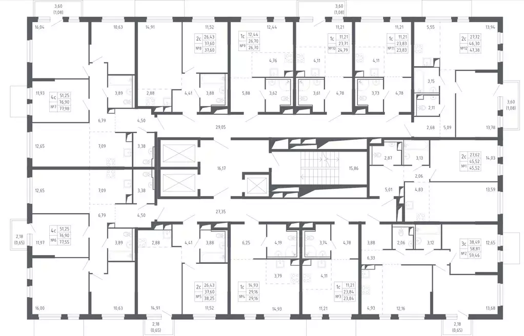
2-комнатная квартира: Тюмень, жилой комплекс Мотивы (62.78 м)

Apт.2402746. Продается двухкомнатная квартира с предчистовой отделкой в ЖК Мотивы на 10 этаже. Общая площадь: 62.78 кв.м., жилая: 23.91 кв.м., площадь просторной кухни-столовой: 18.93 кв.м. Угловая квартира, идеально подойдет любителям тишины и панорамных видов. В квартире одна лоджия, один совмещенный и один раздельный санузел. Высота потолков 2.7 м. Квартира будет сдаваться с предчистовой отделкой – White Box: выровнены и оштукатурены стены, проведено электричество и отопление, установлены радиаторы. Вы также можете приобрести квартиру с ремонтом от застройщика, представленным в трех цветовых решениях – Scandi, Wood и Coffee и включающим ламинат, обои под покраску, двери, натяжной потолок и санузел с сантехникой. При желании вы можете заказать отделку под ключ, варианты возможных решений представлены в альбоме фотографий. Дом монолитный, черырехподъездный, переменной этажности, от 12 до 14 этажей. Квартира находится в 3-й секции высотой 12 этажей в корпусе ГП-8. На этаже 5 квартир. В подъезде 1 пассажирский и 1 грузовой лифт. Окончание строительства - 2 квартал 2026 года. Оформление сделки по договору долевого участия. Закрытая от автомобилей территория, безопасный двор и камеры видеонаблюдения - гаранты вашего спокойствия. Квартал будет располагать богатой инфраструктурой: на первых этажах разместятся магазины, пекарни, кофейни, пункты выдачи, аптеки, детские центры, цветочные салоны и многое другое, что сделает жизнь поистине комфортной. Рядом находится парк общей площадью почти 5000 м, в котором располагаются локации для игр и отдыха жителей, здесь можно совершить утреннюю пробежку или прогуляться после рабочего дня. В парке есть зона воркаута с тренажерами для взрослых, игровые комплексы с горками и канатный комплекс для детей разных возрастов, качели и лавочки для отдыха, площадки для командных видов спорта и для панна-футбола. В ЖК «Мотивы всё продумано до мелочей: светлые холлы входных групп, оформленные в едином стиле, просторные колясочные, лапомойки для питомцев. На территории комплекса находятся 2 8-ми этажных паркинга и более 1000 м/м на открытой парковке. Жилой комплекс находится в одном из экологически благоприятных районов Тюмени, недалеко от Плехановского бора. При этом до центра города можно добраться за 15 минут, а до международного аэропорта Рощино за 13 минут. Окончание строительства: ГП 1, 2, 3, 4 – сдача до конца 2024 года, ГП 6, 7, 8 – сдача 2 квартал 2026 года.

Читать полностью
    Позвонить Написать
    8 210 000 Р101 100 $ или 87 490
    Агент
    +7 (919) 957-09-10
    Начать чат с агентом
    Похожие предложения в Тюмени
    2-комнатная квартира: Тюмень, Арктическая улица, 2 (61.47 м) - Фото 1
    2-комнатная квартира: Тюмень, Арктическая улица, 2 (61.47 м) - Фото 2
    2-комнатная квартира, общая площадь 61м², жилая 24м², кухня 16м²

    Apт.2427639. Продается двухкомнатная квартира с предчистовой отделкой в ЖК Прео на 18 этаже. Общая площадь: 61.47 кв.м., жилая: 24.12 кв.м., площадь просторной кухни-столовой: 16.37 кв.м. Комнаты изолированные, все окна выходят на одну сторону. В квартире...
    • 61 м²
    • 2-ком
    • 18/21 эт.
    8 110 000 Р
    Агент
    +7 (967) Показать номер
    Посмотреть контакты
    2-комнатная квартира: Тюмень, Ленинский округ, ЖК Беринг (65.11 м) - Фото 1
    2-комнатная квартира: Тюмень, Ленинский округ, ЖК Беринг (65.11 м) - Фото 2
    2-комнатная квартира, общая площадь 65м², жилая 25м², кухня 21м²

    Apт.2316168. Просторная 2-комн. квартира в ЖК Беринг на 22 этаже. Квартира без отделки, после оформления собственности можно делать ремонт. Общая площадь: 65.11 кв.м., жилая: 25.8 кв.м., площадь просторной кухни-столовой: 21.41 кв.м. Квартира - распашонка,...
    • 65 м²
    • 2-ком
    • 22/22 эт.
    8 254 365 Р
    Агент
    +7 (967) Показать номер
    Посмотреть контакты
    1-к кв. Тюменская область, Тюмень ул. Юрия Рогачева, 11к1 (46.31 м) - Фото 1
    1-к кв. Тюменская область, Тюмень ул. Юрия Рогачева, 11к1 (46.31 м) - Фото 2
    1-комнатная квартира, общая площадь 46м², жилая 12м², кухня 19м²

    Строим кварталы для жизни с заботой о будущем. Предлагается 1-комнатная квартира комфорт-класса 46,31 кв.м в корпусе 1.4 на 5 этаже, в ЖК Чаркова 72 Квартира с чистовой отделкой. Доступность дополнительных опций уточняйте у застройщика.Приобрести квартиру...
    • 46 м²
    • 1-ком
    • 5/17 эт.
    • монолит
    8 142 541 Р
    Агент
    +7 (968) Показать номер
    Посмотреть контакты
    1-к кв. Тюменская область, Тюмень ул. Юрия Рогачева, 9к2 (44.6 м) - Фото 1
    1-к кв. Тюменская область, Тюмень ул. Юрия Рогачева, 9к2 (44.6 м) - Фото 2
    1-комнатная квартира, общая площадь 44м², жилая 14м², кухня 18м²

    Строим кварталы для жизни с заботой о будущем. Предлагается 1-комнатная квартира комфорт-класса 44,6 кв.м в корпусе 1.1 на 22 этаже, в ЖК Чаркова 72 Квартира с чистовой отделкой. Доступность дополнительных опций уточняйте у застройщика.Приобрести квартиру...
    • 44 м²
    • 1-ком
    • 22/24 эт.
    • монолит
    8 107 466 Р
    Агент
    +7 (968) Показать номер
    Посмотреть контакты
    2-к кв. Тюменская область, Тюмень Ставропольская ул., 1к4 (60.59 м) - Фото 1
    2-к кв. Тюменская область, Тюмень Ставропольская ул., 1к4 (60.59 м) - Фото 2
    2-комнатная квартира, общая площадь 60м²

    Продаётся 2-комнатная квартира в строящемся доме (ГП-2 (Ставропольская, 1к4)), срок сдачи: IV-кв. 2026, общей площадью 60.59 кв.м., на 8 этаже. Новый жилой комплекс Один плюс один от Специализированного застройщика Звездаасположен по адресу: г. Тюмень,...
    • 60 м²
    • 2-ком
    • 8/12 эт.
    • блочный
    8 180 000 Р
    Агент
    +7 (977) Показать номер
    Посмотреть контакты

    Не нашли подходящего объявления?

    Оставьте заявку, и наши риэлторы подберут квартиру в новостройке в районе Тюмени

    (0)