Россия, Тюменская область, Тюмень, жилой комплекс Окинава
7 890 000 Р 97 070 $ или 83 770

Информация о квартире

40 м2
Площадь
13 м2
Жилая
16 м2
Кухня
1
Комната
16
Этаж
19
Этажность
Развернуть
Агент
+7 (982) 910-87-60
Начать чат с агентом

1-комнатная квартира: Тюмень, жилой комплекс Окинава (40.4 м)

Apт.2417404. Просторная 1-комн. квартира с предчистовой отделкой в ЖК Окинава на 16 этаже. Общая площадь: 40.4 кв.м., жилая: 13.07 кв.м., площадь просторной кухни-столовой: 16.25 кв.м. Все окна выходят на одну сторону. В квартире одна лоджия, один совмещенный санузел. Высота потолков 2.7 м. Квартира будет сдана с предчистовой отделкой: на полах стяжка под финишное покрытие, стены подготовлены под покраску или оклейку обоями, разведена вся электрика с подготовкой для установки выключателей и освещения. При желании вы можете заказать отделку под ключ, варианты возможных решений представлены в альбоме фотографий. Дом монолитный, многоподъездный, переменной этажности, от 13 до 19 этажей. Квартира находится в 3-й секции высотой 19 этажей в корпусе Дом Огня. На этаже 11 квартир. В подъезде 1 пассажирский и 1 грузовой лифт. Окончание строительства - 3 квартал 2027 года. Оформление сделки по договору долевого участия. ЖК «Окинава – это не просто жилой комплекс, это остров 4 стихий. Они отражаются во внешнем виде фасадов домов, обустройстве дворов и внутреннем оформлении холлов. Каждая из стихий – это отдельный дом. Между домами раскинется большой двухуровневый пешеходный бульвар. Первый уровень – прогулочный с местами для отдыха, амфитеатром и фонтанами. На втором уровне расположатся площадки для детей, спортивных игр и тренировок. Квартал будет располагать богатой инфраструктурой: на первых этажах разместятся магазины, пекарни, кофейни, пункты выдачи, аптеки, детские центры, цветочные салоны и многое другое, что сделает жизнь поистине комфортной. В жилом комплексе есть кладовые, а также несколько видов паркинга: уличный гостевой, закрытый теплый и паркинг в стилобате, попасть в который можно на лифте с любого жилого этажа. Дворы в каждом доме отражают его стихию, отличаясь по наполнению. Они дополняют друг друга, образуя единое дворовое пространство жилого комплекса. Закрытая территория, свободная от автомобилей, обеспечит безопасность и спокойный отдых. Холлы оформлены керамогранитом, зеркалами и разноуровневым освещением. Витражные входные группы, мягкие зоны ожидания, видеонаблюдение 24/7, вместительные колясочные и даже лапомойки для питомцев – всё это будет в ЖК «Окинава . Жилой комплекс «Окинава находится в активно развивающемся V заречном микрорайоне, недалеко от озера Алебашево, где в будущем расположится масштабный ивент-парк с зонами отдыха. Удобная транспортная развязка позволит добраться до центра всего за 15 минут.

Читать полностью
    Позвонить Написать
    7 890 000 Р97 070 $ или 83 770
    Агент
    +7 (982) 910-87-60
    Начать чат с агентом
    Похожие предложения в Тюмени
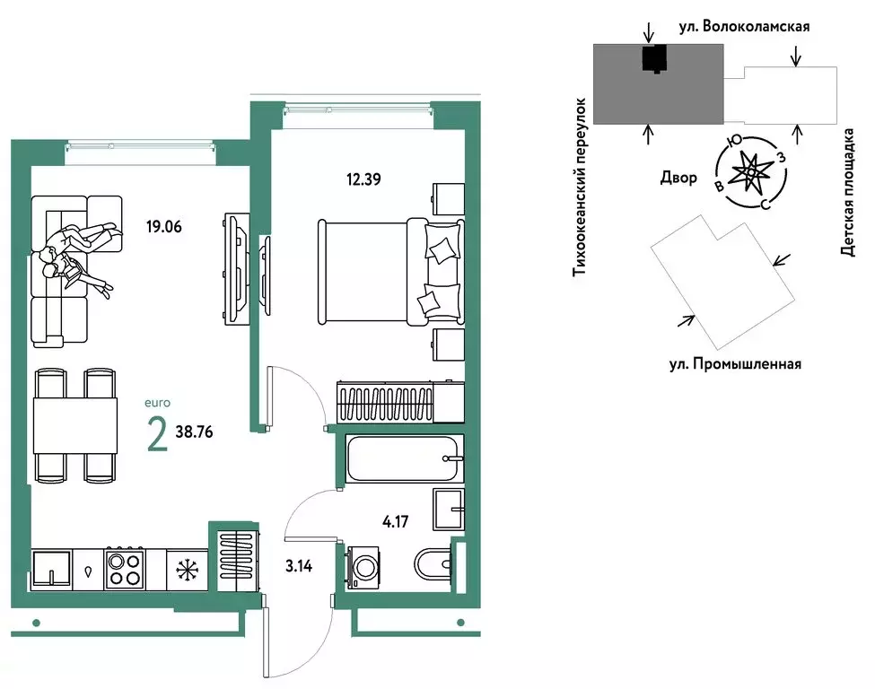
    2-комнатная квартира: Тюмень, улица Мельникайте, 42к1 (38.76 м) - Фото 1
    2-комнатная квартира: Тюмень, улица Мельникайте, 42к1 (38.76 м) - Фото 2
    2-комнатная квартира, общая площадь 38м², жилая 26м², кухня 5м²

    Объявление от застройщика “Страна Девелопмент”. Покупка квартиры защищена банком.Продается 2–комнатная квартира на 3 этаже от застройщика “Страна Девелопмент”. Площадь квартиры 38,76 кв. м.ОСOБEHНОCTИ: - Закрытый двоp c оxрaной 24/7 - Поздемный пapкинг...
    • 38 м²
    • 2-ком
    • 3/20 эт.
    7 877 778 Р
    Агент
    +7 (919) Показать номер
    Посмотреть контакты
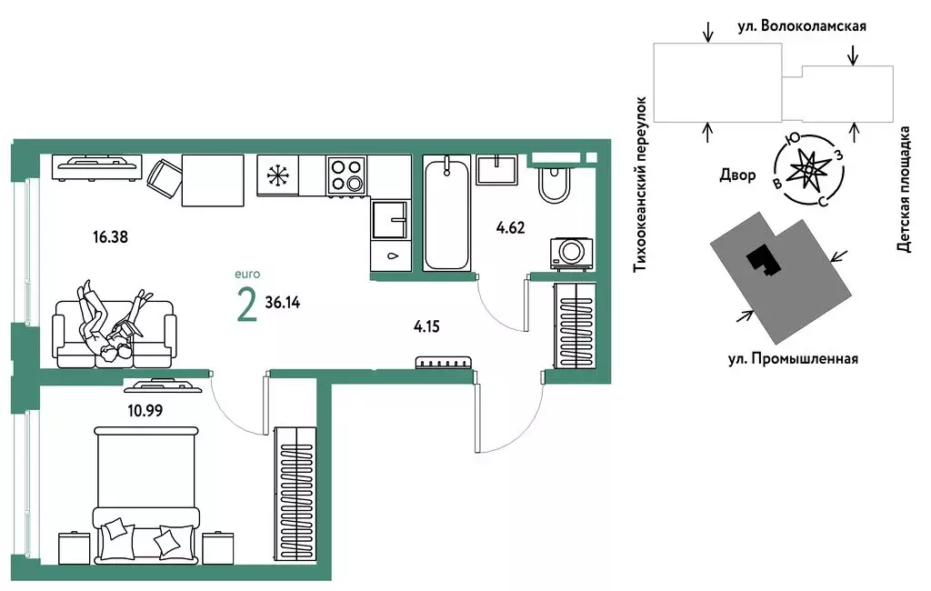
    2-комнатная квартира: Тюмень, улица Мельникайте, 42к1 (36.14 м) - Фото 1
    2-комнатная квартира: Тюмень, улица Мельникайте, 42к1 (36.14 м) - Фото 2
    2-комнатная квартира, общая площадь 36м², жилая 22м², кухня 5м²

    Объявление от застройщика “Страна Девелопмент”. Покупка квартиры защищена банком.Продается 2–комнатная квартира на 14 этаже от застройщика “Страна Девелопмент”. Площадь квартиры 36,14 кв. м.ОСOБEHНОCTИ: - Закрытый двоp c оxрaной 24/7 - Поздемный пapкинг...
    • 36 м²
    • 2-ком
    • 14/20 эт.
    7 822 222 Р
    Агент
    +7 (919) Показать номер
    Посмотреть контакты
    2-комнатная квартира: Тюмень, улица Мельникайте, 42к1 (37.05 м) - Фото 1
    2-комнатная квартира: Тюмень, улица Мельникайте, 42к1 (37.05 м) - Фото 2
    2-комнатная квартира, общая площадь 37м², жилая 23м², кухня 5м²

    Объявление от застройщика “Страна Девелопмент”. Покупка квартиры защищена банком.Продается 2–комнатная квартира на 4 этаже от застройщика “Страна Девелопмент”. Площадь квартиры 37,09 кв. м.ОСOБEHНОCTИ: - Закрытый двоp c оxрaной 24/7 - Поздемный пapкинг...
    • 37 м²
    • 2-ком
    • 4/20 эт.
    7 844 444 Р
    Агент
    +7 (919) Показать номер
    Посмотреть контакты
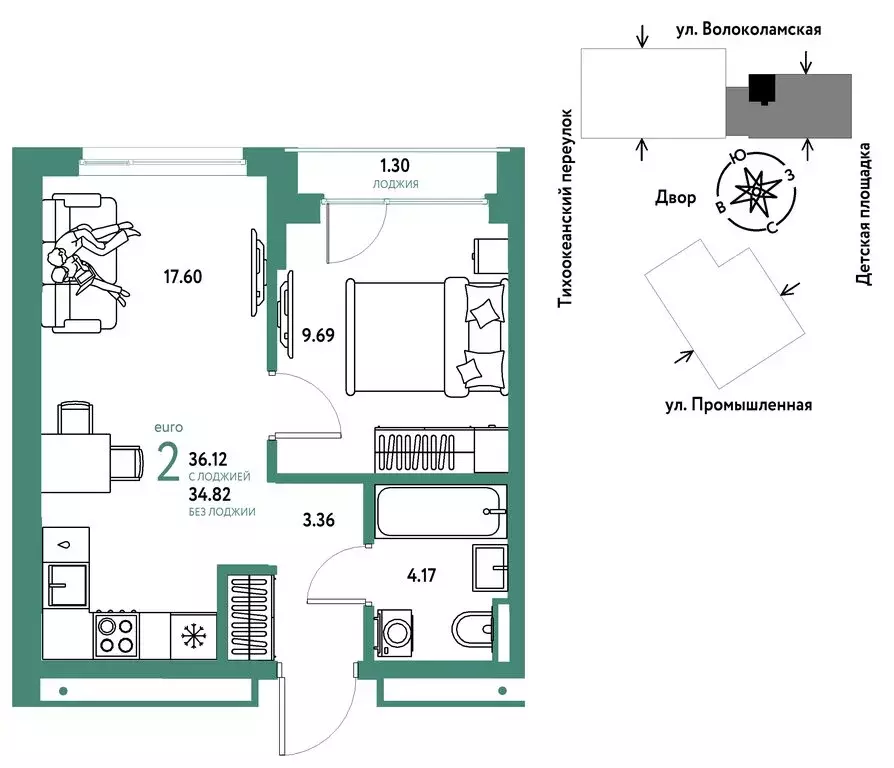
    2-комнатная квартира: Тюмень, улица Мельникайте, 42к1 (36.12 м) - Фото 1
    2-комнатная квартира: Тюмень, улица Мельникайте, 42к1 (36.12 м) - Фото 2
    2-комнатная квартира, общая площадь 36м², жилая 22м², кухня 5м²

    Объявление от застройщика “Страна Девелопмент”. Покупка квартиры защищена банком.Продается 2–комнатная квартира на 14 этаже от застройщика “Страна Девелопмент”. Площадь квартиры 36,41 кв. м.ОСOБEHНОCTИ: - Закрытый двоp c оxрaной 24/7 - Поздемный пapкинг...
    • 36 м²
    • 2-ком
    • 14/20 эт.
    7 988 889 Р
    Агент
    +7 (919) Показать номер
    Посмотреть контакты
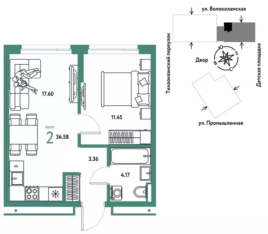
    2-комнатная квартира: Тюмень, улица Мельникайте, 42к1 (36.58 м) - Фото 1
    2-комнатная квартира: Тюмень, улица Мельникайте, 42к1 (36.58 м) - Фото 2
    2-комнатная квартира, общая площадь 36м², жилая 24м², кухня 5м²

    Объявление от застройщика “Страна Девелопмент”. Покупка квартиры защищена банком.Продается 2–комнатная квартира на 11 этаже от застройщика “Страна Девелопмент”. Площадь квартиры 36,62 кв. м.ОСOБEHНОCTИ: - Закрытый двоp c оxрaной 24/7 - Поздемный пapкинг...
    • 36 м²
    • 2-ком
    • 11/20 эт.
    7 877 778 Р
    Агент
    +7 (919) Показать номер
    Посмотреть контакты

    Не нашли подходящего объявления?

    Оставьте заявку, и наши риэлторы подберут квартиру в новостройке в районе Тюмени

    (0)