Россия, Тюменская область, Тюмень, жилой комплекс Республики 205
7 600 000 Р 96 170 $ или 83 920

Информация о квартире

44 м2
Площадь
8 м2
Жилая
16 м2
Кухня
1
Комната
9
Этаж
16
Этажность
Развернуть
Агент
+7 (905) 821-97-26
Начать чат с агентом

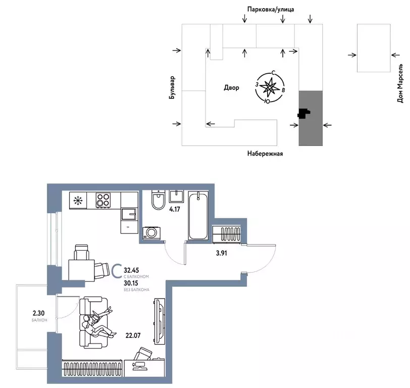
1-комнатная квартира: Тюмень, жилой комплекс Республики 205 (44.1 м)

Квартира в счёт первоначального взноса по программе обмена. Звоните, мы вам все подробно расскажем Продается однокомнатная квартира с предчистовой отделкой в ЖК «Республики 205 на 9 этаже. Общая площадь: 44.1 кв.м., жилая: 8.9 кв.м., площадь просторной кухни-гостиной: 16 кв.м. Все окна выходят на одну сторону. В квартире один балкон, один совмещенный санузел. Высота потолков 2.7 м. Купить квартиру можно с помощью программ покупки от застройщика Брусника:- ипотека по эксклюзивной ставке с помощью в получении положительного кредитного решения через сервис ипотечный брокер;- квартиры в рассрочку без процентов от застройщика Брусника;- обмен квартиры на новую. Получить одобрение ипотеки или рассрочку, а также осуществить обмен квартир можно онлайн. Дом монолитный, многоподъездный, переменной этажности, от 7 до 16 этажей. Квартира находится в 1-й секции высотой 9 этажей в корпусе 2. На этаже 10 квартир. В подъезде 1 грузовой лифт. Начало строительства - 1 квартал 2024 года. Окончание строительства - 1 квартал 2026 года. Оформление сделки по договору долевого участия. Район Проект расположен в границах улиц Пермякова, Энергетиков, Воровского и Республики. До центра города — 10 минут на машине. Рядом — автомобильная развязка на пересечении улиц Пермякова и Республики. В шаговой доступности есть школы, детские сады, поликлиники, крупный торговый центр, автовокзал и несколько скверов. Проект «Республики 205 — это проект комплексного развития территории, уникальный по своему наполнению. Переосмысляя бывшую территорию завода медицинского оборудования, мы создадим новое место силы — микрорайон, насыщенный деловой, развлекательной, рекреационной, игровой, образовательной и медицинской инфраструктурой. До каждого полезного сервиса здесь можно будет дойти за 15 минут. Локальными центрами «Республики 205 будут общественные пространства — скверы, парки, бульвары и площади.В границах нашего участка мы намерены разместить школу, рассчитанную на 1550 учеников, два детских сада на 300 мест и встроенный детский сад на 100 мест.В одном из цехов бывшего завода расположится креативный кластер «Кузница . Он станет площадкой для нескольких институций — галереи, лектория, книжного магазина-библиотеки, кинобара и точек креативного pop-up-ритейла. Пешеходные бульвары внутри района соединят между собой улицу ресторанов, детские и спортивные площадки, событийную площадь и летний кинотеатр. Идентификатор квартиры по базе застройщика: РСП-02-1-1. (AQID

Читать полностью
    Позвонить Написать
    7 600 000 Р96 170 $ или 83 920
    Агент
    +7 (905) 821-97-26
    Начать чат с агентом
    Похожие предложения в Тюмени
    Студия Тюменская область, Тюмень Береговая ул., 100к2 (32.45 м) - Фото 1
    Студия Тюменская область, Тюмень Береговая ул., 100к2 (32.45 м) - Фото 2
    студия, общая площадь 32м², жилая 17м², кухня 5м²

    Объявление от застройщика Страна Девелопмент. Покупка квартиры защищена банком.Продается 1комнатная квартира на 11 этаже от застройщика Страна Девелопмент. Площадь квартиры 32,45 кв. м. Стоимость указана без учета акций.Европейский берег 2.0. — это продолжение...
    • 32 м²
    • студия-ком
    • 11/24 эт.
    7 644 444 Р
    Агент
    +7 (968) Показать номер
    Посмотреть контакты
    Студия Тюменская область, Тюмень Береговая ул., 100к2 (32.45 м) - Фото 1
    Студия Тюменская область, Тюмень Береговая ул., 100к2 (32.45 м) - Фото 2
    студия, общая площадь 32м², жилая 17м², кухня 5м²

    Объявление от застройщика Страна Девелопмент. Покупка квартиры защищена банком.Продается 1комнатная квартира на 7 этаже от застройщика Страна Девелопмент. Площадь квартиры 32,45 кв. м. Стоимость указана без учета акций.Европейский берег 2.0. — это продолжение...
    • 32 м²
    • студия-ком
    • 7/24 эт.
    7 555 556 Р
    Агент
    +7 (968) Показать номер
    Посмотреть контакты
    Студия Тюменская область, Тюмень Береговая ул., 100к2 (32.45 м) - Фото 1
    Студия Тюменская область, Тюмень Береговая ул., 100к2 (32.45 м) - Фото 2
    студия, общая площадь 32м², жилая 17м², кухня 5м²

    Объявление от застройщика Страна Девелопмент. Покупка квартиры защищена банком.Продается 1комнатная квартира на 5 этаже от застройщика Страна Девелопмент. Площадь квартиры 32,45 кв. м. Стоимость указана без учета акций.Европейский берег 2.0. — это продолжение...
    • 32 м²
    • студия-ком
    • 5/24 эт.
    7 511 111 Р
    Агент
    +7 (968) Показать номер
    Посмотреть контакты
    1-к кв. Тюменская область, Тюмень Береговая ул., 100к2 (33.15 м) - Фото 1
    1-к кв. Тюменская область, Тюмень Береговая ул., 100к2 (33.15 м) - Фото 2
    1-комнатная квартира, общая площадь 33м², жилая 12м², кухня 12м²

    Объявление от застройщика Страна Девелопмент. Покупка квартиры защищена банком.Продается 1комнатная квартира на 9 этаже от застройщика Страна Девелопмент. Площадь квартиры 33,15 кв. м. Стоимость указана без учета акций.Европейский берег 2.0. — это продолжение...
    • 33 м²
    • 1-ком
    • 9/24 эт.
    7 688 889 Р
    Агент
    +7 (968) Показать номер
    Посмотреть контакты
    Студия Тюменская область, Тюмень Береговая ул., 100к2 (32.45 м) - Фото 1
    Студия Тюменская область, Тюмень Береговая ул., 100к2 (32.45 м) - Фото 2
    студия, общая площадь 32м², жилая 17м², кухня 5м²

    Объявление от застройщика Страна Девелопмент. Покупка квартиры защищена банком.Продается 1комнатная квартира на 9 этаже от застройщика Страна Девелопмент. Площадь квартиры 32,45 кв. м. Стоимость указана без учета акций.Европейский берег 2.0. — это продолжение...
    • 32 м²
    • студия-ком
    • 9/24 эт.
    7 600 000 Р
    Агент
    +7 (968) Показать номер
    Посмотреть контакты

    Не нашли подходящего объявления?

    Оставьте заявку, и наши риэлторы подберут квартиру в новостройке в районе Тюмени

    (0)