Россия, Тюменская область, Тюмень, Скандиа.Квартал в Комарово Парк жилой квартал
4 350 000 Р 53 710 $ или 45 990

Информация о квартире

26 м2
Площадь
студия
Комнат
4
Этаж
17
Этажность
Развернуть
Агент
+7 (968) 302-69-76
Начать чат с агентом

Студия Тюменская область, Тюмень Скандиа.Квартал в Комарово Парк жилой ...

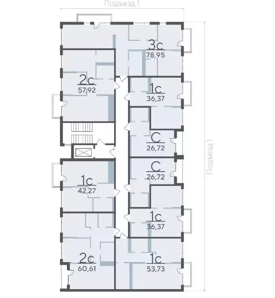
Квартал в Комарово Парк — шесть домов переменной этажности и два наземных паркинга, которые формируют уютную квартальную застройку, органично вписываясь в природное окружение. Здесь можно наслаждаться тишиной, сохраняя доступность городской инфраструктуры. Комарово Парк — это новый район города с собственной инфраструктурой, расположенный в черте города и в то же время рядом с природой.Студия площадью 26.72 кв.м на 4 этаже — уютное пространство, которое легко адаптировать под любые сценарии проживания. Продуманное расположение зон создаёт комфорт для жизни и отдыха.

Читать полностью
    Позвонить Написать
    4 350 000 Р53 710 $ или 45 990
    Агент
    +7 (968) 302-69-76
    Начать чат с агентом
    Похожие предложения в Тюмени
    Студия Тюменская область, Тюмень ул. Вадима Бованенко, 11 (28.1 м) - Фото 1
    Студия Тюменская область, Тюмень ул. Вадима Бованенко, 11 (28.1 м) - Фото 2
    студия, общая площадь 28м²

    Квартира 580 на 16 этаже. Скандиа. Квартал в Слободе — современная комплексная застройка в развитом районе, состоящая из двух домов переменной этажности и двух многоуровневых паркингов. Доминантами проекта станут две 24-этажные секции.Квартал расположен...
    • 28 м²
    • студия-ком
    • 16/24 эт.
    4 450 000 Р
    Агент
    +7 (968) Показать номер
    Посмотреть контакты
    1-к кв. Тюменская область, Тюмень ул. Фармана Салманова, 23 (32.41 м) - Фото 1
    1-к кв. Тюменская область, Тюмень ул. Фармана Салманова, 23 (32.41 м) - Фото 2
    1-комнатная квартира, общая площадь 32м², жилая 9м², кухня 12м²

    Продается 1-комн. квартира от застройщика с предчистовой отделкой в ЖК Прео на 15 этаже. Общая площадь: 32.41 кв.м., жилая: 9.85 кв.м., площадь просторной кухни-столовой: 12.23 кв.м. Все окна выходят на одну сторону. В квартире одна лоджия, один совмещенный...
    • 32 м²
    • 1-ком
    • 15/17 эт.
    • монолит
    4 500 000 Р
    Агент
    +7 (986) Показать номер
    Посмотреть контакты
    1-к кв. Тюменская область, Тюмень ул. Фармана Салманова, 23 (33.77 м) - Фото 1
    1-к кв. Тюменская область, Тюмень ул. Фармана Салманова, 23 (33.77 м) - Фото 2
    1-комнатная квартира, общая площадь 33м², жилая 13м², кухня 9м²

    Однокомнатная квартира от застройщика с предчистовой отделкой в ЖК Прео на 4 этаже. Общая площадь: 33.77 кв.м., жилая: 13.83 кв.м., площадь просторной кухни-столовой: 9.85 кв.м. Все окна выходят на одну сторону. В квартире одна лоджия, один совмещенный...
    • 33 м²
    • 1-ком
    • 4/17 эт.
    • монолит
    4 500 000 Р
    Агент
    +7 (986) Показать номер
    Посмотреть контакты
    Студия Тюменская область, Тюмень ул. Республики, 204к20 (21.5 м) - Фото 1
    Студия Тюменская область, Тюмень ул. Республики, 204к20 (21.5 м) - Фото 2
    студия, общая площадь 21м²

    Компактная студия правильной формы. В комнате выход на лоджию с панорамным остеклением. Он с окнами в пол — будет больше света. Место для хранения вещей в холле, для шкафа-купе здесь отдельная ниша. В квартире предчистовая отделка: стены оштукатурены...
    • 21 м²
    • студия-ком
    • 6/17 эт.
    • монолит
    4 490 000 Р
    Агент
    +7 (994) Показать номер
    Посмотреть контакты
    Студия Тюменская область, Тюмень Гилевский жилрайон,  (29.89 м) - Фото 1
    Студия Тюменская область, Тюмень Гилевский жилрайон,  (29.89 м) - Фото 2
    студия, общая площадь 29м², жилая 10м², кухня 14м²

    Квартал у Озера — это малоэтажные дома в скандинавском стиле, расположенные в живописном районе между озёрами Песьяное и Чистый пруд. Низкая плотность застройки, близость природы и разнообразие прогулочных маршрутов позволят насладиться покоем и отдохнуть...
    • 29 м²
    • студия-ком
    • 3/4 эт.
    4 330 000 Р
    Агент
    +7 (986) Показать номер
    Посмотреть контакты

    Не нашли подходящего объявления?

    Оставьте заявку, и наши риэлторы подберут квартиру в новостройке в районе Тюмени

    (0)