Россия, Тюменская область, Тюмень, ул. Василия Севергина, 9
6 700 000 Р 82 440 $ или 70 980

Информация о квартире

52 м2
Площадь
23 м2
Жилая
14 м2
Кухня
2
Комнаты
1
Этаж
4
Этажность

Дополнительная информация

Тип дома
монолит
Развернуть
Агент
+7 (938) 818-93-02
Начать чат с агентом

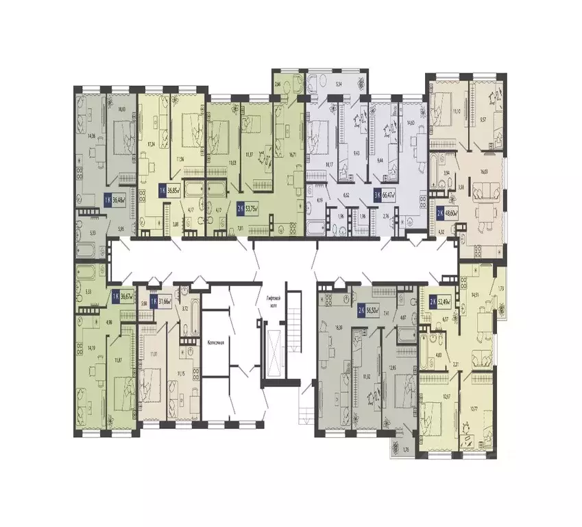
2-к кв. Тюменская область, Тюмень ул. Василия Севергина, 9 (52.49 м)

Продаётся квартира площадью 52.49 м2 в жилом комплексе Смородина . Квартира находится на 1 этаже дома, который будет введен в эксплуатацию в 2 квартале 2028 года. Жилая площадь квартиры 23.44 м2, площадь просторной кухни — 14.51 м2. Среди особенностей планировки — изолированные комнаты с окнами на одну сторону, 1 совмещённый санузел. Жилой комплекс Смородина — это: уютный малоэтажный комплекс в районе ММС дома высотой 4 этажа квартиры от студий до семейных вариантов с отапливаемыми лоджиями экологичные материалы в благоустройстве территории 1 очередь — срок сдачи в 2025 году 2 очередь — III кв. 2026 3 очередь — IV кв. 2026 Окружение В 5 минутах ходьбы от проекта — озеро Липовое с песчаным пляжем и лесопарковая зона. Инфраструктура В шаговой доступности есть все для комфортной жизни: школы, детские сады, магазины и аптеки. Рядом с проектом — остановка общественного транспорта. Благоустройство Прямо во дворе — собственные грядки для жителей, где можно выращивать зелень и цветы. Для детей оборудованы детские площадки из натуральных материалов. Лобби Вдохновленные современными тенденциями наши парадные разработаны с акцентом на эстетическую привлекательность и практичность. Использование натуральных материалов и ярких цветовых акцентов создает атмосферу уюта и стиля. Планировки Среди многообразия продуманных планировок есть и уютные студии, и просторные семейные варианты. Во всех квартирах предусмотрены отапливаемые лоджии, где можно устроить зону отдыха или рабочий кабинет.

Читать полностью
    Позвонить Написать
    6 700 000 Р82 440 $ или 70 980
    Агент
    +7 (938) 818-93-02
    Начать чат с агентом
    Похожие предложения в Тюмени
    2-к кв. Тюменская область, Тюмень ул. Василия Севергина, 9 (50.32 м) - Фото 1
    2-к кв. Тюменская область, Тюмень ул. Василия Севергина, 9 (50.32 м) - Фото 2
    2-комнатная квартира, общая площадь 50м², жилая 20м², кухня 16м²

    Продаётся квартира площадью 50.32 м2 в жилом комплексе Смородина . Квартира находится на 3 этаже дома, который будет введен в эксплуатацию в 2 квартале 2028 года. Жилая площадь квартиры 20.67 м2, площадь просторной кухни — 16.09 м2. Среди особенностей...
    • 50 м²
    • 2-ком
    • 3/4 эт.
    • монолит
    6 700 000 Р
    Агент
    +7 (938) Показать номер
    Посмотреть контакты
    1-к кв. Тюменская область, Тюмень ул. Игоря Комиссарова, 9 (45.03 м) - Фото 1
    1-к кв. Тюменская область, Тюмень ул. Игоря Комиссарова, 9 (45.03 м) - Фото 2
    1-комнатная квартира, общая площадь 45м²

    Планировка с лоджией. Выход на неё через гостиную — она объединена с кухней, при этом у каждого пространства своё место. В спальне гардеробная. Внутри готова предчистовая отделка: стены оштукатурены и выровнены по общему уровню, на полу слой цементно-песчаного...
    • 45 м²
    • 1-ком
    • 2/4 эт.
    • монолит
    6 700 000 Р
    Агент
    +7 (968) Показать номер
    Посмотреть контакты
    Квартира-студия: Тюмень, улица Василия Подшибякина, 9 (30.14 м) - Фото 1
    Квартира-студия: Тюмень, улица Василия Подшибякина, 9 (30.14 м) - Фото 2
    студия, общая площадь 30м², жилая 16м²

    Apт.2513940. Продается однокомнатная квартира-студия с предчистовой отделкой в ЖК Уездные кварталы на 18 этаже. Общая площадь: 30.14 кв.м., площадь гостиной 16.29 кв.м., из которых 5 кв.м. выделено под кухонную зону. Все окна выходят на одну сторону....
    • 30 м²
    • студия-ком
    • 18/23 эт.
    6 700 000 Р
    Агент
    +7 (905) Показать номер
    Посмотреть контакты
    Квартира-студия: Тюмень, улица Василия Подшибякина, 9 (30.14 м) - Фото 1
    Квартира-студия: Тюмень, улица Василия Подшибякина, 9 (30.14 м) - Фото 2
    студия, общая площадь 30м², жилая 16м²

    Apт.2513933. Просторная 1-комн. квартира-студия с предчистовой отделкой в ЖК Уездные кварталы на 14 этаже. Общая площадь: 30.14 кв.м., площадь гостиной 16.29 кв.м., из которых 5 кв.м. выделено под кухонную зону. Все окна выходят на одну сторону. В квартире...
    • 30 м²
    • студия-ком
    • 14/23 эт.
    6 700 000 Р
    Агент
    +7 (905) Показать номер
    Посмотреть контакты
    1-к кв. Тюменская область, Тюмень ул. Игоря Комиссарова, 9 (45.03 м) - Фото 1
    1-к кв. Тюменская область, Тюмень ул. Игоря Комиссарова, 9 (45.03 м) - Фото 2
    1-комнатная квартира, общая площадь 45м²

    Планировка с лоджией. Выход на неё через гостиную — она объединена с кухней, при этом у каждого пространства своё место. В спальне гардеробная. Внутри готова предчистовая отделка: стены оштукатурены и выровнены по общему уровню, на полу слой цементно-песчаного...
    • 45 м²
    • 1-ком
    • 4/4 эт.
    • монолит
    6 790 000 Р
    Агент
    +7 (968) Показать номер
    Посмотреть контакты

    Не нашли подходящего объявления?

    Оставьте заявку, и наши риэлторы подберут квартиру в новостройке в районе Тюмени

    (0)