10 050 000 Р 123 900 $ или 105 700

Информация о квартире

82 м2
Площадь
34 м2
Жилая
18 м2
Кухня
3
Комнаты
11
Этаж
23
Этажность

Дополнительная информация

Тип дома
монолит
Развернуть
Агент
+7 (968) 302-86-58
Начать чат с агентом

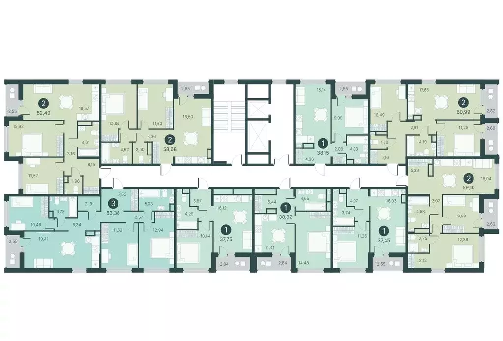
3-к кв. Тюменская область, Тюмень ул. Арктическая, 9 (82.89 м)

Просторная трехкомнатная квартира в ЖК Уездные кварталы на 11 этаже. Квартира без отделки, новый владелец может сделать ремонт по своему проекту. Общая площадь: 82.89 кв.м., жилая: 34.06 кв.м., площадь просторной кухни-столовой: 18.07 кв.м. Квартира угловая, окна oбecпeчивaют paвнoмepнoe ocвeщeниe в тeчeниe дня. В квартире две лоджии, два совмещенных санузла. Высота потолков 2.6 м. Квартира находится в корпусе ГП-4. Дом монолитный, одноподъездный, высотой 23 этажа. На этаже 10 квартир. В подъезде 1 пассажирский и 1 грузовой лифт. На сегодняшний день строительство окончено, дом сдан в 3 квартале 2025 года. Оформление сделки по договору купли-продажи. Уездные кварталы - семейный жилой комплекс комфорт-класса с авторской архитектурой и трехуровневым ландшафтным озеленением. Рядом расположены крупные транспортные развязки, которые позволяют добраться в любую точку города за 15 минут. Жилой комплекс находится в современном районе с развитой инфраструктурой, на первой линии Тюменской Слободы. Вокруг есть всё необходимое в шаговой доступности: новые детские сады и школы, остановки общественного транспорта, магазины, кафе и рестораны, поликлиника, детская школа искусств, парки и спортивный комплекс. На первых этажах квартала расположена собственная коммерческая сеть, а также свой соседский центр. Проект включает 5 домов переменной этажности с более чем 100 планировками - с террасами, французскими балконами и мастер-спальнями. Закрытые дворы оборудованы интерактивными площадками для игр, спортивными зонами и местами тихого отдыха. Вдоль жилого комплекса расположен пешеходный бульвар с сухим фонтаном, а для автомобилей предусмотрен теплый паркинг. Часть квартир можно приобрести с ремонтом, мебелью и техникой от застройщика, а расходы включить в ипотечный платеж. Z6sco6

Читать полностью
    Позвонить Написать
    10 050 000 Р123 900 $ или 105 700
    Агент
    +7 (968) 302-86-58
    Начать чат с агентом
    Похожие предложения в Тюмени
    3-комнатная квартира: Тюмень, улица Василия Подшибякина, 9 (82.89 м) - Фото 1
    3-комнатная квартира: Тюмень, улица Василия Подшибякина, 9 (82.89 м) - Фото 2
    3-комнатная квартира, общая площадь 82м², жилая 34м², кухня 18м²

    Apт.2513922. Просторная 3-комн. квартира в ЖК Уездные кварталы на 7 этаже. Квартира без отделки, новый владелец может сделать ремонт по своему дизайн-проекту. Общая площадь: 82.89 кв.м., жилая: 34.06 кв.м., площадь просторной кухни-столовой: 18.07 кв.м....
    • 82 м²
    • 3-ком
    • 7/23 эт.
    10 050 000 Р
    Агент
    +7 (905) Показать номер
    Посмотреть контакты
    3-к кв. Тюменская область, Тюмень ул. Арктическая, 9 (82.89 м) - Фото 1
    3-к кв. Тюменская область, Тюмень ул. Арктическая, 9 (82.89 м) - Фото 2
    3-комнатная квартира, общая площадь 82м², жилая 34м², кухня 18м²

    Трехкомнатная квартира от застройщика в ЖК Уездные кварталы на 17 этаже. Квартира без отделки, новый владелец может сделать ремонт по индивидуальному проекту. Общая площадь: 82.89 кв.м., жилая: 34.06 кв.м., площадь просторной кухни-столовой: 18.07 кв.м....
    • 82 м²
    • 3-ком
    • 17/23 эт.
    • монолит
    10 050 000 Р
    Агент
    +7 (968) Показать номер
    Посмотреть контакты
    2-к кв. Тюменская область, Тюмень ул. Разведчика Кузнецова, 9 (60.99 ... - Фото 1
    2-к кв. Тюменская область, Тюмень ул. Разведчика Кузнецова, 9 (60.99 ... - Фото 2
    2-комнатная квартира, общая площадь 60м², жилая 21м², кухня 17м²

    Просторная 2-комн. квартира с предчистовой отделкой в ЖК Дивный квартал у озера на 7 этаже. Общая площадь: 60.99 кв.м., жилая: 21.74 кв.м., площадь просторной кухни-столовой: 17.65 кв.м. Угловая квартира, окна oбecпeчивaют paвнoмepнoe ocвeщeниe в тeчeниe...
    • 60 м²
    • 2-ком
    • 7/7 эт.
    • монолит
    10 340 000 Р
    Агент
    +7 (939) Показать номер
    Посмотреть контакты
    2-к кв. Тюменская область, Тюмень ул. Разведчика Кузнецова, 9 (65.24 ... - Фото 1
    2-к кв. Тюменская область, Тюмень ул. Разведчика Кузнецова, 9 (65.24 ... - Фото 2
    2-комнатная квартира, общая площадь 65м², жилая 24м², кухня 18м²

    Просторная 2-комн. квартира с предчистовой отделкой в ЖК Дивный квартал у озера на 5 этаже. Общая площадь: 65.24 кв.м., жилая: 24.9 кв.м., площадь просторной кухни-столовой: 18.48 кв.м. Квартира угловая, идеально подойдет любителям тишины и панорамных...
    • 65 м²
    • 2-ком
    • 5/9 эт.
    • монолит
    10 680 000 Р
    Агент
    +7 (939) Показать номер
    Посмотреть контакты
    2-к кв. Тюменская область, Тюмень ул. Разведчика Кузнецова, 9 (65.24 ... - Фото 1
    2-к кв. Тюменская область, Тюмень ул. Разведчика Кузнецова, 9 (65.24 ... - Фото 2
    2-комнатная квартира, общая площадь 65м², жилая 24м², кухня 18м²

    2-комн. квартира с предчистовой отделкой в ЖК Дивный квартал у озера на 8 этаже. Общая площадь: 65.24 кв.м., жилая: 24.9 кв.м., площадь просторной кухни-столовой: 18.48 кв.м. Угловая квартира, идеально подойдет любителям тишины и панорамных видов. В...
    • 65 м²
    • 2-ком
    • 8/9 эт.
    • монолит
    10 730 000 Р
    Агент
    +7 (939) Показать номер
    Посмотреть контакты

    Не нашли подходящего объявления?

    Оставьте заявку, и наши риэлторы подберут квартиру в новостройке в районе Тюмени

    (0)