Реализация объекта недвижимости приостановлена

Информация о квартире

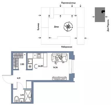
40.0 м2
Площадь
21.0 м2
Жилая
15.0 м2
Кухня
2
Комнаты
4
Этаж
18
Этажность
Развернуть

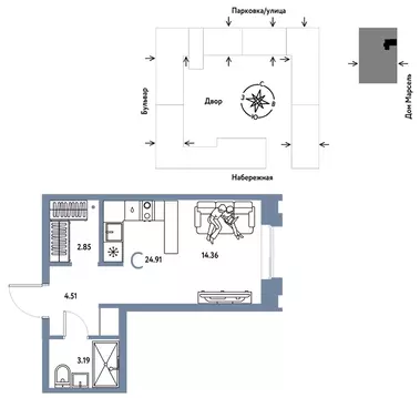
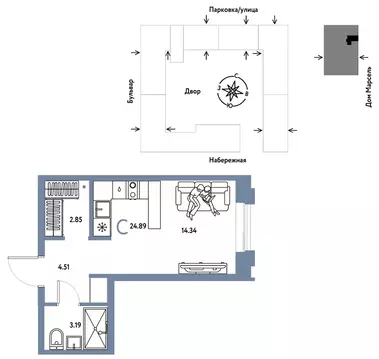
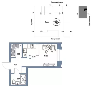
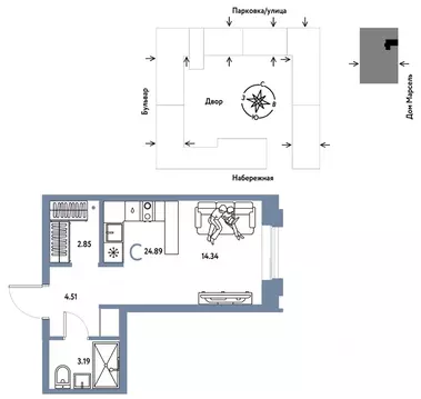
2-комнатная квартира: Тюмень, ЖК Мириады (40.1 м)

Apт.2522563. 2-комн. квартира с европланировкой и предчистовой отделкой в ЖК Мириады на 4 этаже. Общая площадь: 40.1 кв.м., жилая: 21 кв.м., суммарная площадь гостиной-столовой с кухонной зоной: 15.5 кв.м. Европланировка, зона гостиной комнаты объединена с кухней. Комнаты изолированные, все окна выходят на одну сторону. В квартире одна лоджия, один совмещенный санузел. Высота потолков 2.7 м. Дом монолитный, двухподъездный, переменной этажности, от 14 до 18 этажей. Квартира находится во 2-й секции высотой 14 этажей в корпусе ГП-72.104. На этаже 8 квартир. В подъезде 1 пассажирский и 1 грузовой лифт. Окончание строительства - 4 квартал 2025 года. Оформление сделки по договору долевого участия. Вселенная бесконечных историй. Ранее невиданный Тюмени масштаб: территория 240 гектаров им застройки. Мириады – это город масштабных перемен и больших возможностей. Город зеленых рощ и зеркальных озер. Город для работы, учебы и развлечений. Город для детей и их родителей. Город для всех и каждого. Проект расположен в районе Мыс рядом с ТРЦ «Тюмень Сити Молл в границах улицы Тимофея Чаркова, Тобольского тракта и объездной дороги. Срок полного освоения территории - до 2034 года.

Читать полностью

    Реализация объекта недвижимости приостановлена

    Не нашли подходящего объявления?

    Оставьте заявку, и наши риэлторы подберут квартиру в новостройке в районе Тюмени

    (0)