Россия, Тюменская область, Тюмень, ул. Юрия Рогачева, 9к1
5 604 643 Р 68 950 $ или 59 500

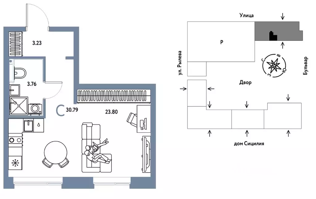
Информация о квартире

31 м2
Площадь
10 м2
Жилая
9 м2
Кухня
1
Комната
9
Этаж
17
Этажность

Дополнительная информация

Тип дома
монолит
Развернуть
Агент
+7 (968) 209-17-66
Начать чат с агентом

1-к кв. Тюменская область, Тюмень ул. Юрия Рогачева, 9к1 (31.68 м)

Строим кварталы для жизни с заботой о будущем. Предлагается 1-комнатная квартира комфорт-класса 31,68 кв.м в корпусе 1.3 на 9 этаже, в ЖК Чаркова 72 Квартира с предчистовой отделкой. Доступность дополнительных опций уточняйте у застройщика.Приобрести квартиру возможно по специальным акциям от застройщика, с текущими условиями акций можно ознакомиться в блоке Акций .Цена динамическая и может отличаться, уточняйте актуальность у застройщика.Идеальное сочетание городского комфорта и размеренной жизни — квартал Чаркова 72 на северо-востоке города. В дизайне 17-24-этажных домов с панорамными балконами нашли отражение нотки сибирской природы. От Чаркова 72 удобно добираться до центра города — всего 17 минут пути. А в 2 минутах от дома находится Тобольский тракт. Для семейного отдыха отлично подойдет парк Гагарина — он находится в 7 минутах от квартала. В закрытых дворах тихо и уютно — все авто остались на одном из 4 многоуровневых паркингов, которые находятся за территорией квартала. Можно спокойно гулять по бульвару и заниматься йогой на спортивной площадке. На первых этажах домов — кафе и магазины. Рядом с проектом — детские сады и школы, городская поликлиника и МФЦ. Во всех квартирах есть выводы под кондиционеры, на подземных этажах — индивидуальные кладовые, на первых — места для хранения велосипедов и колясок.В квартирах можно выбрать варианты отделки: чистовая, черновая и улучшенная из материалов повышенного класса.

Читать полностью
    Позвонить Написать
    5 604 643 Р68 950 $ или 59 500
    Агент
    +7 (968) 209-17-66
    Начать чат с агентом
    Похожие предложения в Тюмени
    Студия Тюменская область, Тюмень ДОК мкр, ул. Ярославская, 9к1 (30.79 ... - Фото 1
    Студия Тюменская область, Тюмень ДОК мкр, ул. Ярославская, 9к1 (30.79 ... - Фото 2
    студия, общая площадь 30м², жилая 17м², кухня 6м²

    Новая квартира в ЖК Остров-сад напрямую от федеральной группы компаний Страна Девелопмент . Финансовый партнер — Сбербанк России.Продается 1комнатная квартира на 8 этаже от застройщика Страна Девелопмент. Площадь квартиры 30,79 кв. м.ЖК ОСТРОВ-САД...
    • 30 м²
    • студия-ком
    • 8/24 эт.
    • монолит
    5 544 444 Р
    Агент
    +7 (345) Показать номер
    Посмотреть контакты
    1-к кв. Тюменская область, Тюмень ул. Юрия Рогачева, 9к1 (31.25 м) - Фото 1
    1-к кв. Тюменская область, Тюмень ул. Юрия Рогачева, 9к1 (31.25 м) - Фото 2
    1-комнатная квартира, общая площадь 31м², жилая 10м², кухня 9м²

    Строим кварталы для жизни с заботой о будущем. Предлагается 1-комнатная квартира комфорт-класса 31,25 кв.м в корпусе 1.3 на 7 этаже, в ЖК Чаркова 72 Квартира с предчистовой отделкой. Доступность дополнительных опций уточняйте у застройщика.Приобрести...
    • 31 м²
    • 1-ком
    • 7/17 эт.
    • монолит
    5 617 645 Р
    Агент
    +7 (968) Показать номер
    Посмотреть контакты
    1-к кв. Тюменская область, Тюмень ул. Юрия Рогачева, 9к1 (31.25 м) - Фото 1
    1-к кв. Тюменская область, Тюмень ул. Юрия Рогачева, 9к1 (31.25 м) - Фото 2
    1-комнатная квартира, общая площадь 31м², жилая 10м², кухня 9м²

    Строим кварталы для жизни с заботой о будущем. Предлагается 1-комнатная квартира комфорт-класса 31,25 кв.м в корпусе 1.3 на 7 этаже, в ЖК Чаркова 72 Квартира с предчистовой отделкой. Доступность дополнительных опций уточняйте у застройщика.Приобрести...
    • 31 м²
    • 1-ком
    • 7/17 эт.
    • монолит
    5 542 843 Р
    Агент
    +7 (968) Показать номер
    Посмотреть контакты
    1-к кв. Тюменская область, Тюмень ул. Юрия Рогачева, 9к1 (31.25 м) - Фото 1
    1-к кв. Тюменская область, Тюмень ул. Юрия Рогачева, 9к1 (31.25 м) - Фото 2
    1-комнатная квартира, общая площадь 31м², жилая 10м², кухня 9м²

    Строим кварталы для жизни с заботой о будущем. Предлагается 1-комнатная квартира комфорт-класса 31,25 кв.м в корпусе 1.3 на 5 этаже, в ЖК Чаркова 72 Квартира с предчистовой отделкой. Доступность дополнительных опций уточняйте у застройщика.Приобрести...
    • 31 м²
    • 1-ком
    • 5/17 эт.
    • монолит
    5 595 331 Р
    Агент
    +7 (968) Показать номер
    Посмотреть контакты
    1-к кв. Тюменская область, Тюмень ул. Юрия Рогачева, 9к1 (31.25 м) - Фото 1
    1-к кв. Тюменская область, Тюмень ул. Юрия Рогачева, 9к1 (31.25 м) - Фото 2
    1-комнатная квартира, общая площадь 31м², жилая 10м², кухня 9м²

    Строим кварталы для жизни с заботой о будущем. Предлагается 1-комнатная квартира комфорт-класса 31,25 кв.м в корпусе 1.3 на 5 этаже, в ЖК Чаркова 72 Квартира с предчистовой отделкой. Доступность дополнительных опций уточняйте у застройщика.Приобрести...
    • 31 м²
    • 1-ком
    • 5/17 эт.
    • монолит
    5 511 501 Р
    Агент
    +7 (968) Показать номер
    Посмотреть контакты

    Не нашли подходящего объявления?

    Оставьте заявку, и наши риэлторы подберут квартиру в новостройке в районе Тюмени

    (0)