Россия, Тюменская область, Тюмень, ЖК Айвазовский Сити
6 730 000 Р 82 790 $ или 71 450

Информация о квартире

31 м2
Площадь
21 м2
Жилая
студия
Комнат
3
Этаж
24
Этажность
Развернуть
Агент
+7 (905) 821-54-94
Начать чат с агентом

Квартира-студия: Тюмень, ЖК Айвазовский Сити (31.44 м)

Apт.2525508. Однокомнатная квартира-студия от застройщика с предчистовой отделкой в ЖК Айвазовский City на 3 этаже. Общая площадь: 31.44 кв.м., площадь гостиной 21.43 кв.м., из которых 5 кв.м. выделено под кухонную зону. Все окна выходят на одну сторону. В квартире один совмещенный санузел. Высота потолков 2.7 м. Дом монолитный, многоподъездный, высотой 24 этажа. Квартира находится в 3-й секции в корпусе ГП-12. На этаже 6 квартир. В подъезде 1 пассажирский и 1 грузовой лифт. Окончание строительства - 4 квартал 2028 года. Оформление сделки по договору долевого участия. Новый жилой район располагается в живописном месте на берегу Туры в центральной части города. Принципиально новое пространство для жизни в центре современного города для тех, чьи мечты сбываются, кто нацелен на постоянный рост, перемены к лучшему для себя и своих близких.Каждая деталь Айвазовский City вдохновляет и заряжает на новые свершения: авторская архитектура, сбалансированная продуманная инфраструктура, дизайнерские дворы со спортивными и детскими площадками, парковые зоны с фонтанами, водный канал, украшающий центральный прогулочный маршрут района и многое другое. В 2019 года проект стал лауреатом престижной премии Urban Awards 2019 в номинации «Лучший строящийся региональный жилой комплекс бизнес-класса . Главная особенность Айвазовский City - соседство разных архитектурных школ в рамках одного дома. Изысканная классика, выразительная эклектика и оригинальный модерн - жить в одном из таких домов настоящий повод для гордости. Айвазовский City это идеальное сочетание комфорта, технологий и развитой инфраструктуры. Вход в подъезд возможен с улицы и со двора. Отправляясь на работу или за покупками, жители могут выйти с внешней стороны дома, а для прогулки с ребенком – со стороны двора. Экологически чистые материалы и энергосберегающие технологии, качественное освещение общественных зон, видеонаблюдение по всей территории жилого района (в том числе в подъездах, лифтах и в подземном паркинге), закрытые дворы с доступом только для жителей Айвазовский City. Часть домов в Айвазовский City будут оснащены подземным паркингом. Востребованный в нашем климатическом поясе формат хранения автомобилей защитит собственность владельца в любое время года. Аккредитация в банках: «Сбербанк России , ПАО «Газпромбанк , ОАО «Альфа-Банк , ПАО Банк «ВТБ , ПАО Банк «ФК Открытие и других.

Читать полностью
    Позвонить Написать
    6 730 000 Р82 790 $ или 71 450
    Агент
    +7 (905) 821-54-94
    Начать чат с агентом
    Похожие предложения в Тюмени
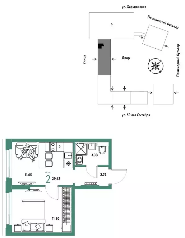
    2-комнатная квартира: Тюмень, улица 50 лет Октября, 61к1 (29.62 м) - Фото 1
    2-комнатная квартира: Тюмень, улица 50 лет Октября, 61к1 (29.62 м) - Фото 2
    2-комнатная квартира, общая площадь 29м², жилая 18м², кухня 5м²

    Новая квартира в ЖК «Сердце Сибири напрямую от федерального застройщика «Страна Девелопмент . Финансовый партнер — банк «ДОМ.РФ .Продается 2–комнатная квартира на 4 этаже от застройщика “Страна Девелопмент”. Площадь квартиры 29,62 кв. м.ЖК «Сердце Сибири...
    • 29 м²
    • 2-ком
    • 4/25 эт.
    6 775 000 Р
    Агент
    +7 (982) Показать номер
    Посмотреть контакты
    1-комнатная квартира: Тюмень, жилой комплекс Республики 205 (40.56 м) - Фото 1
    1-комнатная квартира: Тюмень, жилой комплекс Республики 205 (40.56 м) - Фото 2
    1-комнатная квартира, общая площадь 40м², жилая 10м², кухня 16м²

    Квартира в рассрочку без процентов от застройщика. Эксклюзивные ипотечные условия. Обмен квартиры на новую. Предложение от застройщика. Дом будет сдан в 4 квартале 2025 года. Квартира в счёт первоначального взноса по программе обмена. Звоните, наши менеджеры...
    • 40 м²
    • 1-ком
    • 4/17 эт.
    6 680 000 Р
    Агент
    +7 (905) Показать номер
    Посмотреть контакты
    2-к кв. Тюменская область, Тюмень ул. Республики, 204к18 (48.75 м) - Фото 1
    2-к кв. Тюменская область, Тюмень ул. Республики, 204к18 (48.75 м) - Фото 2
    2-комнатная квартира, общая площадь 48м², кухня 14м²

    Планировка с отдельной детской комнатой и кухней-гостиной. Дополнительное место для хранении в прихожей. В спальне ниша под шкафы и выход на угловую панорамную лоджию — больше угол обзора.В квартире предчистовая отделка: стены оштукатурены и выровнены...
    • 48 м²
    • 2-ком
    • 4/23 эт.
    • монолит
    6 800 000 Р
    Агент
    +7 (994) Показать номер
    Посмотреть контакты
    1-к кв. Тюменская область, Тюмень Лесобаза мкр, Кедровый Берег жилой ... - Фото 1
    1-к кв. Тюменская область, Тюмень Лесобаза мкр, Кедровый Берег жилой ... - Фото 2
    1-комнатная квартира, общая площадь 46м²

    На территории 14 гектаров создадут современный социокультурный кластер с 8 домами комфорт-класса высотой от 5 до 25 этажей, детским садом и благоустроенной набережной. Проект включает детские и спортивные площадки, приватные дворы-парки, а рядом есть...
    • 46 м²
    • 1-ком
    • 15/25 эт.
    6 750 000 Р
    Агент
    +7 (968) Показать номер
    Посмотреть контакты
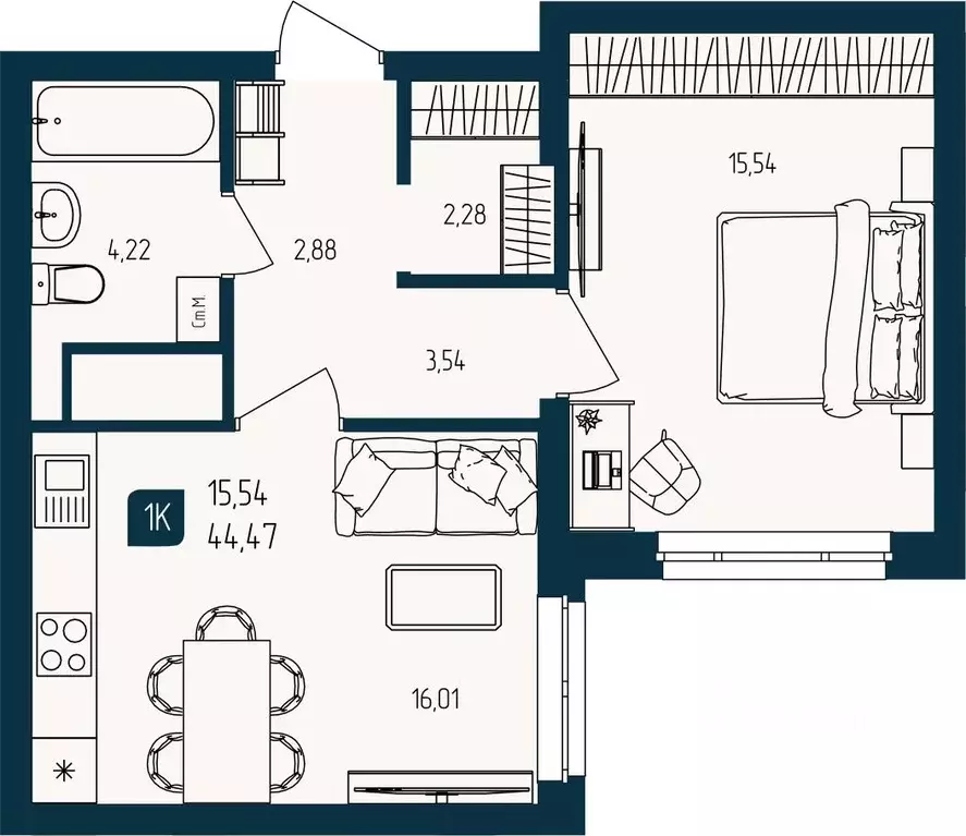
    1-к кв. Тюменская область, Тюмень  (44.47 м) - Фото 1
    1-к кв. Тюменская область, Тюмень  (44.47 м) - Фото 2
    1-комнатная квартира, общая площадь 44м²

    Продаётся 1-комнатная квартира в строящемся доме (Дом Каскад (ГП-2)), срок сдачи: III-кв. 2027, общей площадью 44.47 кв.м., на 9 этаже. Новый жилой комплекс Квартал Мятный от Специализированного застройщика Юпитерасположен по адресу: г. Тюмень по ул....
    • 44 м²
    • 1-ком
    • 9/25 эт.
    6 660 000 Р
    Агент
    +7 (800) Показать номер
    Посмотреть контакты

    Не нашли подходящего объявления?

    Оставьте заявку, и наши риэлторы подберут квартиру в новостройке в районе Тюмени

    (0)