11 377 778 Р 143 400 $ или 122 400

Информация о квартире

60 м2
Площадь
36 м2
Жилая
5 м2
Кухня
3
Комнаты
11
Этаж
24
Этажность
Развернуть
Агент
+7 (968) 302-62-08
Начать чат с агентом

3-к кв. Тюменская область, Тюмень Береговая ул., 100к2 (60.82 м)

Объявление от застройщика Страна Девелопмент. Покупка квартиры защищена банком.Продается 3комнатная квартира на 11 этаже от застройщика Страна Девелопмент. Площадь квартиры 60,82 кв. м. Стоимость указана без учета акций.Европейский берег 2.0. — это продолжение легендарного жилого комплекса Европейский берег. Он включает все, что нужно для жизни, и даже больше. Этот квартал для тех, кто не готов тратить время на ненужное, жертвовать одним ради другого. Для тех, кто хочет получить все и сразу. Именно поэтому генеральная идея проекта — жилой квартал все включено. Все преимущества включены. Никаких исключений.ПРЕИМУЩЕСТВАРазнообразие планировок: от классических до квартир с мастер-спальней и террасами.Подземный паркинг с кладовыми, охраной и видеонаблюдением 24/7.Ремонт от застройщика: 5 вариантов на выбор.Закрытый двор с площадками и зонами отдыха: мост-акведук, тренажёры, лабиринты, гамаки и шезлонги.ОТДЕЛКАБазовая отделка или готовый ремонт от застройщика.В базовой отделке все черновые работы выполнены, подведены коммуникации, стены оштукатурены под маяк.В ремонт от застройщика входит 5 вариантов отделки, уже включено всё необходимое: от сантехники до кондиционера.СПОСОБЫ ПОКУПКИСотрудники Страны Девелопмент будут сопровождать вас на каждом этапе сделки, помогут получить одобрение по ипотеке или снизить ежемесячный платеж.- ипотека- материнский капитал- 100 оплата наличными- рассрочка- обмен — это выкуп вашей старой квартиры и зачисление полученных денежных средств в счет стоимости новой квартиры или в качестве первоначального взноса по ипотеке.

Читать полностью
    Позвонить Написать
    11 377 778 Р143 400 $ или 122 400
    Агент
    +7 (968) 302-62-08
    Начать чат с агентом
    Похожие предложения в Тюмени
    3-комнатная квартира: Тюмень, Береговая улица, 100к2 (56.94 м) - Фото 1
    3-комнатная квартира: Тюмень, Береговая улица, 100к2 (56.94 м) - Фото 2
    3-комнатная квартира, общая площадь 56м², жилая 34м², кухня 5м²

    Объявление от застройщика “Страна Девелопмент”. Покупка квартиры защищена банком.Продается 3–комнатная квартира на 5 этаже от застройщика “Страна Девелопмент”. Площадь квартиры 56,94 кв. м. Стоимость указана без учета акций.Европейский берег 2.0. — это...
    • 56 м²
    • 3-ком
    • 5/24 эт.
    11 166 667 Р
    Агент
    +7 (963) Показать номер
    Посмотреть контакты
    3-к кв. Тюменская область, Тюмень Береговая ул., 100к2 (56.09 м) - Фото 1
    3-к кв. Тюменская область, Тюмень Береговая ул., 100к2 (56.09 м) - Фото 2
    3-комнатная квартира, общая площадь 56м², жилая 36м², кухня 5м²

    Объявление от застройщика Страна Девелопмент. Покупка квартиры защищена банком.Продается 3комнатная квартира на 21 этаже от застройщика Страна Девелопмент. Площадь квартиры 56,09 кв. м. Стоимость указана без учета акций.Европейский берег 2.0. — это продолжение...
    • 56 м²
    • 3-ком
    • 21/24 эт.
    11 211 111 Р
    Агент
    +7 (968) Показать номер
    Посмотреть контакты
    3-к кв. Тюменская область, Тюмень Береговая ул., 100к2 (57.89 м) - Фото 1
    3-к кв. Тюменская область, Тюмень Береговая ул., 100к2 (57.89 м) - Фото 2
    3-комнатная квартира, общая площадь 57м², жилая 35м², кухня 5м²

    Объявление от застройщика Страна Девелопмент. Покупка квартиры защищена банком.Продается 3комнатная квартира на 13 этаже от застройщика Страна Девелопмент. Площадь квартиры 57,89 кв. м. Стоимость указана без учета акций.Европейский берег 2.0. — это продолжение...
    • 57 м²
    • 3-ком
    • 13/24 эт.
    11 766 667 Р
    Агент
    +7 (968) Показать номер
    Посмотреть контакты
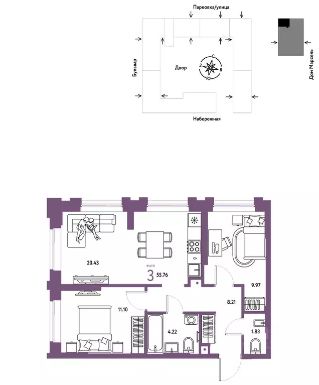
    3-к кв. Тюменская область, Тюмень Береговая ул., 100к2 (55.76 м) - Фото 1
    3-к кв. Тюменская область, Тюмень Береговая ул., 100к2 (55.76 м) - Фото 2
    3-комнатная квартира, общая площадь 55м², жилая 36м², кухня 5м²

    Объявление от застройщика Страна Девелопмент. Покупка квартиры защищена банком.Продается 3комнатная квартира на 6 этаже от застройщика Страна Девелопмент. Площадь квартиры 55,76 кв. м. Стоимость указана без учета акций.Европейский берег 2.0. — это продолжение...
    • 55 м²
    • 3-ком
    • 6/24 эт.
    10 433 333 Р
    Агент
    +7 (968) Показать номер
    Посмотреть контакты
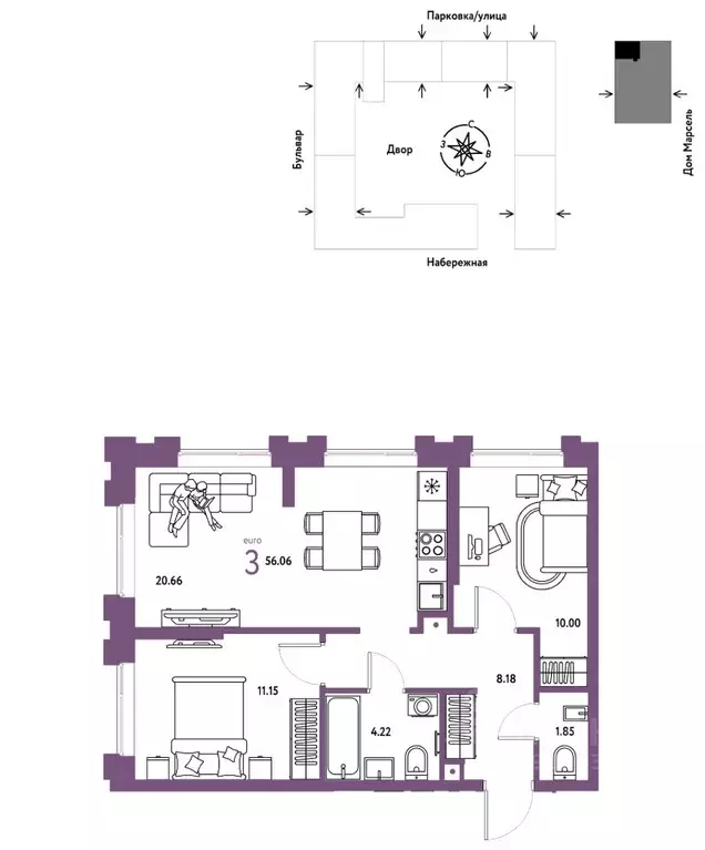
    3-к кв. Тюменская область, Тюмень Береговая ул., 100к2 (56.06 м) - Фото 1
    3-к кв. Тюменская область, Тюмень Береговая ул., 100к2 (56.06 м) - Фото 2
    3-комнатная квартира, общая площадь 56м², жилая 36м², кухня 5м²

    Объявление от застройщика Страна Девелопмент. Покупка квартиры защищена банком.Продается 3комнатная квартира на 19 этаже от застройщика Страна Девелопмент. Площадь квартиры 56,06 кв. м. Стоимость указана без учета акций.Европейский берег 2.0. — это продолжение...
    • 56 м²
    • 3-ком
    • 19/24 эт.
    11 077 778 Р
    Агент
    +7 (968) Показать номер
    Посмотреть контакты

    Не нашли подходящего объявления?

    Оставьте заявку, и наши риэлторы подберут квартиру в новостройке в районе Тюмени

    (0)