Россия, Тюменская область, Тюмень, Европейский Берег 2.0 жилой комплекс
7 711 111 Р 97 580 $ или 85 150

Информация о квартире

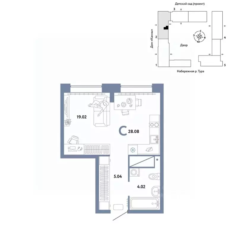
28 м2
Площадь
студия
Комнат
12
Этаж
25
Этажность
Развернуть
Агент
+7 (968) 302-62-08
Начать чат с агентом

Студия Тюменская область, Тюмень Европейский Берег 2.0 жилой комплекс ...

Продается 1комнатная квартира в новом ЖК Европейский берег . Общая площадь квартиры 28,08 кв. м. Сдача — в 4 квартале 2025 года.Европейский берег 2.0. — это продолжение легендарного жилого комплекса Европейский берег. Он включает все, что нужно для жизни, и даже больше. Этот квартал для тех, кто не готов тратить время на ненужное, жертвовать одним ради другого. Для тех, кто хочет получить все и сразу. Именно поэтому генеральная идея проекта — жилой квартал все включено. Все преимущества включены. Никаких исключений.Дом Монте-Карло - это олицетворение роскоши средиземноморского курорта. Расположен на первой линии, с выходом на набережную. Мы спроектировали квартиры с лоджиями, французскими балконами, с террасами и панорамными окнами, чтобы жители могли любоваться видом на главную реку города.ОТДЕЛКАКвартиры сдаются с предчистовой отделкой. Все грязные работы выполнены: произведена разводка электричества и отопления; выполнена стяжка пола; стены выровнены под маяк . В квартире установлены розетки, выключатели и радиаторы. На входе — надежная стальная дверь. Вам остается только выбрать материалы и начать ремонтДоступна опция Ремонт от застройщика . Стоимость можно включить в ипотеку. Вы можете заказать один из трех цветовых вариантов: светлый, натуральный или тёмный. В квартире внедрена технология Умный дом .КУХНЯ С ТЕХНИКОЙТеперь дополнительно к ремонту можно заказать кухню со встроенной техникой. Эргономику и функциональное наполнение разработали под каждую планировку. ПОЛНАЯ МЕБЛИРОВКАБольше не нужно тратить время даже на подбор, доставку и сборку мебели.Вы можете включить в стоимость квартиры с ремонтом полную меблировку.Что входит в меблировку?- Кухня с техникой и сантехникой- Диван- Кровать- Шкаф в спальне- Шкаф в прихожейЦены на квартиры указаны без учета скидок. На консультации менеджер подскажет, какие акции действуют, и как получить одобрение по ипотеке с низкой ставкой. Более подробная информация по телефону.ООО Специализированный застройщик К2 . Проектные декларации на сайте .

Читать полностью
    Позвонить Написать
    7 711 111 Р97 580 $ или 85 150
    Агент
    +7 (968) 302-62-08
    Начать чат с агентом
    Похожие предложения в Тюмени
    1-к кв. Тюменская область, Тюмень ул. Муравленко, 9к3 (43.5 м) - Фото 1
    1-к кв. Тюменская область, Тюмень ул. Муравленко, 9к3 (43.5 м) - Фото 2
    1-комнатная квартира, общая площадь 43м², жилая 11м², кухня 17м²

    Квартира в счёт первоначального взноса по программе обмена. По всем вопросам обращайтесь в офис продаж, мы вам все подробно расскажем Продается 1-комн. квартира от застройщика с предчистовой отделкой в ЖК Дом у озера на 5 этаже. Общая площадь: 43.5...
    • 43 м²
    • 1-ком
    • 5/7 эт.
    • монолит
    7 660 000 Р
    Агент
    +7 (994) Показать номер
    Посмотреть контакты
    1-к кв. Тюменская область, Тюмень Зарека жилой комплекс (50.9 м) - Фото 1
    1-к кв. Тюменская область, Тюмень Зарека жилой комплекс (50.9 м) - Фото 2
    1-комнатная квартира, общая площадь 50м²

    Квартира в счёт первоначального взноса по программе обмена. По всем вопросам звоните в офис продаж, мы вам все подробно расскажем 1-комн. квартира от застройщика с предчистовой отделкой в ЖК Зарека на 22 этаже. Общая площадь: 50.9 кв.м. Высота потолков...
    • 50 м²
    • 1-ком
    • 22/25 эт.
    • монолит
    7 770 000 Р
    Агент
    +7 (994) Показать номер
    Посмотреть контакты
    1-к кв. Тюменская область, Тюмень Полевая ул., 117к13 (51.98 м) - Фото 1
    1-к кв. Тюменская область, Тюмень Полевая ул., 117к13 (51.98 м) - Фото 2
    1-комнатная квартира, общая площадь 51м²

    Продаётся 1-комнатная квартира в строящемся доме (Корпус 4Б (Полевая, д. 117, корпус 13)), срок сдачи: IV-кв. 2026, общей площадью 51.98 кв.м., на 5 этаже. Новый жилой комплекс Фатера от Специализированного застройщика Рубинасположен по адресу: г....
    • 51 м²
    • 1-ком
    • 5/24 эт.
    7 641 060 Р
    Агент
    +7 (931) Показать номер
    Посмотреть контакты
    2-к кв. Тюменская область, Тюмень ул. Краснооктябрьская, 12 (65.5 м) - Фото 1
    2-к кв. Тюменская область, Тюмень ул. Краснооктябрьская, 12 (65.5 м) - Фото 2
    2-комнатная квартира, общая площадь 65м², жилая 21м², кухня 24м²

    ЖК DOK в ТюмениЖилой комплекс на берегу Туры с живописным видом на реку, Мост влюбленных и исторический центр.Уникальный проектЭто первый в Тюмени проект с принципиально новой организацией общественных зон. Три лепестка здания сходятся в большое пространство...
    • 65 м²
    • 2-ком
    • 23/24 эт.
    7 650 000 Р
    Агент
    +7 (968) Показать номер
    Посмотреть контакты
    2-к кв. Тюменская область, Тюмень ул. Краснооктябрьская, 12 (65.5 м) - Фото 1
    2-к кв. Тюменская область, Тюмень ул. Краснооктябрьская, 12 (65.5 м) - Фото 2
    2-комнатная квартира, общая площадь 65м², жилая 21м², кухня 24м²

    ЖК DOK в ТюмениЖилой комплекс на берегу Туры с живописным видом на реку, Мост влюбленных и исторический центр.Уникальный проектЭто первый в Тюмени проект с принципиально новой организацией общественных зон. Три лепестка здания сходятся в большое пространство...
    • 65 м²
    • 2-ком
    • 22/24 эт.
    7 650 000 Р
    Агент
    +7 (968) Показать номер
    Посмотреть контакты

    Не нашли подходящего объявления?

    Оставьте заявку, и наши риэлторы подберут квартиру в новостройке в районе Тюмени

    (0)