Россия, Тюменская область, Тюмень, Скандиа.Квартал в Комарово Парк жилой квартал

Реализация объекта недвижимости приостановлена

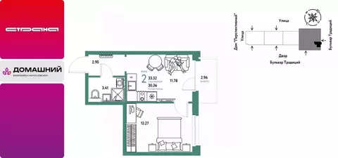
Информация о квартире

41.0 м2
Площадь
11.0 м2
Жилая
18.0 м2
Кухня
1
Комната
6
Этаж
17
Этажность
Развернуть

1-к кв. Тюменская область, Тюмень Скандиа.Квартал в Комарово Парк ...

Квартал в Комарово Парк — шесть домов переменной этажности и два наземных паркинга, которые формируют уютную квартальную застройку, органично вписываясь в природное окружение. Здесь можно наслаждаться тишиной, сохраняя доступность городской инфраструктуры. Комарово Парк — это новый район города с собственной инфраструктурой, расположенный в черте города и в то же время рядом с природой.Однокомнатная квартира 41.74 кв.м на 6 этаже с продуманной планировкой. Просторная кухня-гостиная идеально подходит для приёма гостей, а уютная спальня станет личным местом отдыха.

Читать полностью

    Реализация объекта недвижимости приостановлена

    Не нашли подходящего объявления?

    Оставьте заявку, и наши риэлторы подберут квартиру в новостройке в районе Тюмени

    (0)