Россия, Тюменская область, Тюмень, Беринг жилой комплекс
7 820 000 Р 99 960 $ или 86 110

Информация о квартире

60 м2
Площадь
28 м2
Жилая
14 м2
Кухня
2
Комнаты
7
Этаж
9
Этажность

Дополнительная информация

Тип дома
монолит
Развернуть
Агент
+7 (994) 257-47-20
Начать чат с агентом

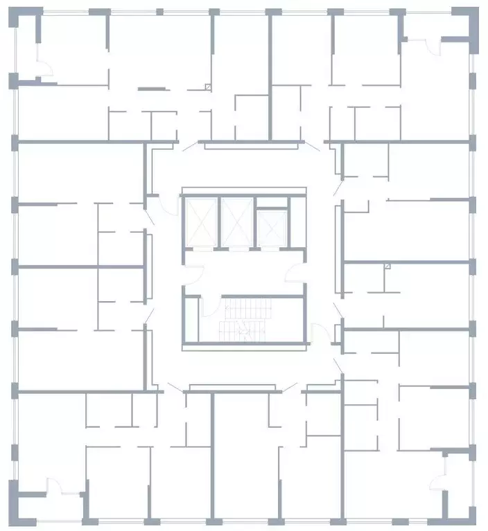
2-к кв. Тюменская область, Тюмень Беринг жилой комплекс (60.14 м)

Двухкомнатная квартира от застройщика в ЖК Беринг на 7 этаже. Квартира без отделки, полностью готова к чистовой отделке и дальнейшему ремонту. Общая площадь: 60.14 кв.м., жилая: 28.88 кв.м., площадь просторной кухни-столовой: 14.23 кв.м. Комнаты изолированные, все окна выходят на одну сторону. В квартире одна лоджия, один совмещенный и один раздельный санузел. Высота потолков 2.75 м. Дом монолитный, многоподъездный, переменной этажности, от 9 до 21 этажей. Квартира находится в 3-й секции высотой 9 этажей в корпусе ГП-74. На этаже 7 квартир. В подъезде 1 грузовой лифт. Окончание строительства - 4 квартал 2025 года. Оформление сделки по договору долевого участия. Подобно знаменитому исследователю, мы чувствуем себя первооткрывателями этой локации. Хотим показать новую суть места, сформировать для вас жизненный опыт, которого ещё не было. Беринг — район зелёного цвета. Беринг — район, который откроется вам с другой стороны. Впечатлит новым уровнем комфорта и качеством жизни. Беринг — открытие на карте города. Первый квартал расположен в районе Тура, в границах улиц: Камчатская Западносибирская Энтузиастов. Вокруг уже есть всё для того, чтобы ежедневная рутина была лишь частью жизни и не доставляла дискомфорта.Школы и детские сады, магазины и аптеки, поликлиника, места для семейного отдыха, пеших и велопрогулок, и даже рыбалки. Масштабное озеленение дворов — визитная карточка ЭНКО и ваш оазис спокойствия, чтобы отвлечься от повседневности. Раскидистые деревья, кустарники, травы и цветы — осталось остановиться, вдохнуть и расслабиться, глядя на эту природную красоту. Стилистика подъездов продолжает концепцию Беринга, вдохновлённого Камчаткой: сдержанный,но при этом впечатляющий дизайн соседствует с удобством и функциональностью. Z6g3vb

Читать полностью
    Позвонить Написать
    7 820 000 Р99 960 $ или 86 110
    Агент
    +7 (994) 257-47-20
    Начать чат с агентом
    Похожие предложения в Тюмени
    2-к кв. Тюменская область, Тюмень ул. 50 лет Октября, 63к2 (46.78 м) - Фото 1
    2-комнатная квартира, общая площадь 46м²

    Продаётся 2-комнатная квартира в строящемся доме (Квартал Экологов (ГП-6)), срок сдачи: II-кв. 2026, общей площадью 46.78 кв.м., на 12 этаже. Новый жилой комплекс Сердце Сибириасположился в центре Тюмени в границах улиц 50 лет Октября-Пермякова-Харьковская....
    • 46 м²
    • 2-ком
    • 12/25 эт.
    • монолит
    7 880 000 Р
    Агент
    +7 (969) Показать номер
    Посмотреть контакты
    2-к кв. Тюменская область, Тюмень ул. 50 лет Октября, 63к2 (46.78 м) - Фото 1
    2-к кв. Тюменская область, Тюмень ул. 50 лет Октября, 63к2 (46.78 м) - Фото 2
    2-комнатная квартира, общая площадь 46м²

    Продаётся 2-комнатная квартира в строящемся доме (Квартал Экологов (ГП-6)), срок сдачи: II-кв. 2026, общей площадью 46.78 кв.м., на 6 этаже. Новый жилой комплекс Сердце Сибириасположился в центре Тюмени в границах улиц 50 лет Октября-Пермякова-Харьковская....
    • 46 м²
    • 2-ком
    • 6/25 эт.
    • монолит
    7 880 000 Р
    Агент
    +7 (969) Показать номер
    Посмотреть контакты
    2-к кв. Тюменская область, Тюмень ул. 50 лет Октября, 63к2 (44.89 м) - Фото 1
    2-комнатная квартира, общая площадь 44м²

    Продаётся 2-комнатная квартира в строящемся доме (Квартал Экологов (ГП-6)), срок сдачи: II-кв. 2026, общей площадью 44.89 кв.м., на 12 этаже. Новый жилой комплекс Сердце Сибириасположился в центре Тюмени в границах улиц 50 лет Октября-Пермякова-Харьковская....
    • 44 м²
    • 2-ком
    • 12/25 эт.
    • монолит
    7 710 000 Р
    Агент
    +7 (969) Показать номер
    Посмотреть контакты
    2-к кв. Тюменская область, Тюмень ул. 50 лет Октября, 63к2 (43.2 м) - Фото 1
    2-к кв. Тюменская область, Тюмень ул. 50 лет Октября, 63к2 (43.2 м) - Фото 2
    2-комнатная квартира, общая площадь 43м²

    Продаётся 2-комнатная квартира в строящемся доме (Квартал Экологов (ГП-6)), срок сдачи: II-кв. 2026, общей площадью 43.2 кв.м., на 23 этаже. Новый жилой комплекс Сердце Сибириасположился в центре Тюмени в границах улиц 50 лет Октября-Пермякова-Харьковская....
    • 43 м²
    • 2-ком
    • 23/25 эт.
    • монолит
    7 855 000 Р
    Агент
    +7 (969) Показать номер
    Посмотреть контакты
    2-к кв. Тюменская область, Тюмень ул. 50 лет Октября, 63к2 (44.92 м) - Фото 1
    2-комнатная квартира, общая площадь 44м²

    Продаётся 2-комнатная квартира в строящемся доме (Квартал Экологов (ГП-6)), срок сдачи: II-кв. 2026, общей площадью 44.92 кв.м., на 11 этаже. Новый жилой комплекс Сердце Сибириасположился в центре Тюмени в границах улиц 50 лет Октября-Пермякова-Харьковская....
    • 44 м²
    • 2-ком
    • 11/25 эт.
    • монолит
    7 832 000 Р
    Агент
    +7 (969) Показать номер
    Посмотреть контакты

    Не нашли подходящего объявления?

    Оставьте заявку, и наши риэлторы подберут квартиру в новостройке в районе Тюмени

    (0)