Россия, Тюменская область, Тюмень, микрорайон Тюменская Слобода
6 190 000 Р 77 640 $ или 66 160

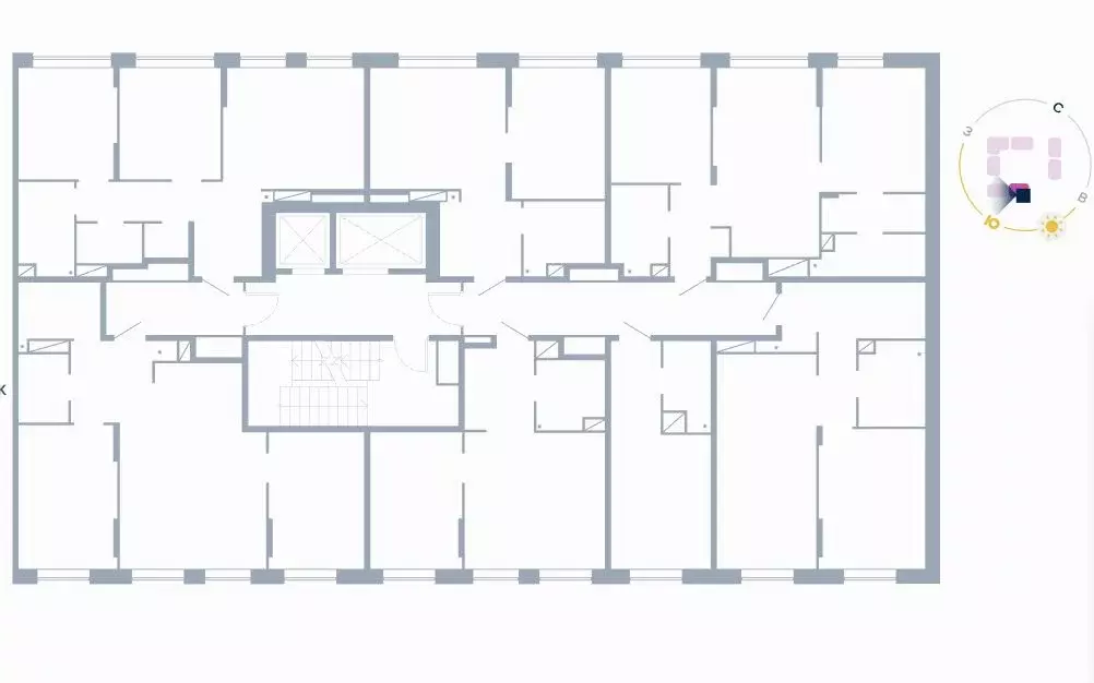
Информация о квартире

43 м2
Площадь
12 м2
Жилая
20 м2
Кухня
1
Комната
6
Этаж
7
Этажность
Развернуть
Агент
+7 (905) 525-23-12
Начать чат с агентом

1-комнатная квартира: Тюмень, микрорайон Тюменская Слобода, жилой ...

Apт.2514075. Однокомнатная квартира в ЖК Уездные кварталы на 6 этаже. Квартира без отделки, после оформления собственности можно делать ремонт. Общая площадь: 43.2 кв.м., жилая: 12.13 кв.м., площадь просторной кухни-столовой: 20.19 кв.м. Все окна выходят на одну сторону. В квартире один балкон, один совмещенный санузел. Высота потолков 2.7 м. Дом монолитный, многоподъездный, переменной этажности, от 7 до 17 этажей. Квартира находится в 5-й секции высотой 12 этажей в корпусе ГП-3. На этаже 11 квартир. В подъезде 1 пассажирский и 1 грузовой лифт. Окончание строительства - 1 квартал 2026 года. Оформление сделки по договору долевого участия. «Уездные кварталы - семейный жилой комплекс комфорт-класса с авторской архитектурой и трехуровневым ландшафтным озеленением. Рядом расположены крупные транспортные развязки, которые позволяют добраться в любую точку города за 15 минут. Жилой комплекс находится в современном районе с развитой инфраструктурой, на первой линии Тюменской Слободы. Вокруг есть всё необходимое в шаговой доступности: новые детские сады и школы, остановки общественного транспорта, магазины, кафе и рестораны, поликлиника, детская школа искусств, парки и спортивный комплекс. На первых этажах квартала расположена собственная коммерческая сеть, а также свой соседский центр. Проект включает 5 домов переменной этажности с более чем 100 планировками - с террасами, французскими балконами и мастер-спальнями. Закрытые дворы оборудованы интерактивными площадками для игр, спортивными зонами и местами тихого отдыха. Вдоль жилого комплекса расположен пешеходный бульвар с сухим фонтаном, а для автомобилей предусмотрен теплый паркинг. Часть квартир можно приобрести с ремонтом, мебелью и техникой от застройщика, а расходы включить в ипотечный платеж.

Читать полностью
    Позвонить Написать
    6 190 000 Р77 640 $ или 66 160
    Агент
    +7 (905) 525-23-12
    Начать чат с агентом
    Похожие предложения в Тюмени
    2-к кв. Тюменская область, Тюмень Интернациональная ул., 199к9 (38.79 ... - Фото 1
    2-к кв. Тюменская область, Тюмень Интернациональная ул., 199к9 (38.79 ... - Фото 2
    2-комнатная квартира, общая площадь 38м²

    Продается 2комнатная квартира в новом ЖК Юнион . Общая площадь квартиры 38,79 кв. м. Сдача — в 3 квартале 2024 года.Юнион - проект двух застройщиков всероссийского масштаба: Страны Девелопмент и Группы Эталон. Мы объединили опыт и компетенции в девелопменте,...
    • 38 м²
    • 2-ком
    • 3/16 эт.
    • монолит
    6 188 889 Р
    Агент
    +7 (989) Показать номер
    Посмотреть контакты
    2-к кв. Тюменская область, Тюмень Интернациональная ул., 199к9 (37.22 ... - Фото 1
    2-к кв. Тюменская область, Тюмень Интернациональная ул., 199к9 (37.22 ... - Фото 2
    2-комнатная квартира, общая площадь 37м²

    Продается 2комнатная квартира в новом ЖК Юнион . Общая площадь квартиры 37,22 кв. м. Сдача — в 3 квартале 2024 года.Юнион - проект двух застройщиков всероссийского масштаба: Страны Девелопмент и Группы Эталон. Мы объединили опыт и компетенции в девелопменте,...
    • 37 м²
    • 2-ком
    • 4/16 эт.
    • монолит
    6 188 889 Р
    Агент
    +7 (989) Показать номер
    Посмотреть контакты
    2-к кв. Тюменская область, Тюмень Интернациональная ул., 199к9 (36.98 ... - Фото 1
    2-к кв. Тюменская область, Тюмень Интернациональная ул., 199к9 (36.98 ... - Фото 2
    2-комнатная квартира, общая площадь 36м²

    Продается 2комнатная квартира в новом ЖК Юнион . Общая площадь квартиры 36,98 кв. м. Сдача — в 3 квартале 2024 года.Юнион - проект двух застройщиков всероссийского масштаба: Страны Девелопмент и Группы Эталон. Мы объединили опыт и компетенции в девелопменте,...
    • 36 м²
    • 2-ком
    • 10/16 эт.
    • монолит
    6 188 889 Р
    Агент
    +7 (989) Показать номер
    Посмотреть контакты
    1-к кв. Тюменская область, Тюмень Интернациональная ул., 199к9 (37.09 ... - Фото 1
    1-к кв. Тюменская область, Тюмень Интернациональная ул., 199к9 (37.09 ... - Фото 2
    1-комнатная квартира, общая площадь 37м², жилая 7м², кухня 18м²

    Продается 1комнатная квартира в новом ЖК Юнион . Общая площадь квартиры 37,09 кв. м. Сдача — в 3 квартале 2024 года.Юнион - проект двух застройщиков всероссийского масштаба: Страны Девелопмент и Группы Эталон. Мы объединили опыт и компетенции в девелопменте,...
    • 37 м²
    • 1-ком
    • 9/16 эт.
    • монолит
    6 188 889 Р
    Агент
    +7 (989) Показать номер
    Посмотреть контакты
    2-к кв. Тюменская область, Тюмень Интернациональная ул., 199к9 (38.46 ... - Фото 1
    2-к кв. Тюменская область, Тюмень Интернациональная ул., 199к9 (38.46 ... - Фото 2
    2-комнатная квартира, общая площадь 38м²

    Продается 2комнатная квартира в новом ЖК Юнион . Общая площадь квартиры 38,46 кв. м. Сдача — в 3 квартале 2024 года.Юнион - проект двух застройщиков всероссийского масштаба: Страны Девелопмент и Группы Эталон. Мы объединили опыт и компетенции в девелопменте,...
    • 38 м²
    • 2-ком
    • 13/16 эт.
    • монолит
    6 188 889 Р
    Агент
    +7 (989) Показать номер
    Посмотреть контакты

    Не нашли подходящего объявления?

    Оставьте заявку, и наши риэлторы подберут квартиру в новостройке в районе Тюмени

    (0)