Россия, Тюменская область, Тюмень, ул. Владимира Бахарева, 3к1
9 450 000 Р 120 300 $ или 101 800

Информация о квартире

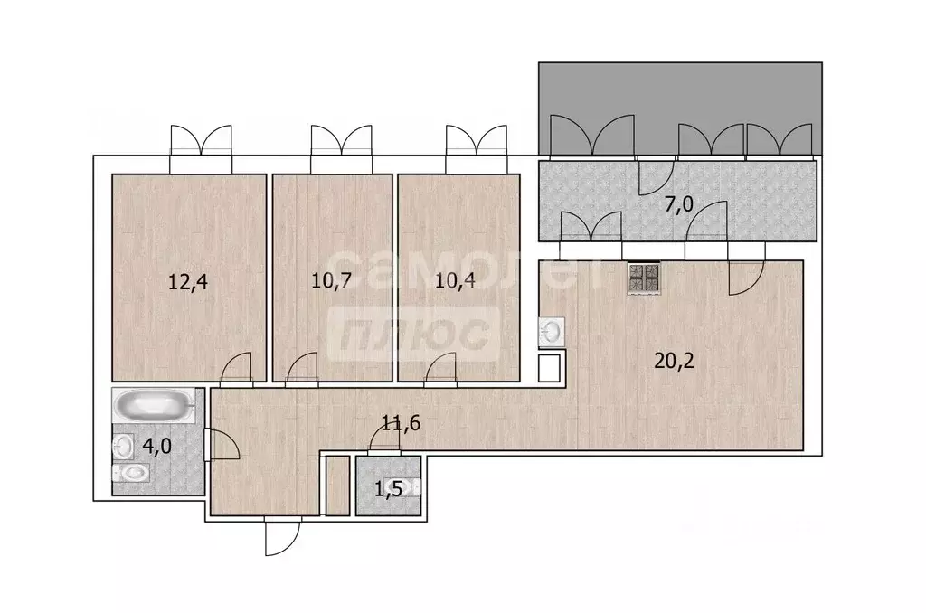
71 м2
Площадь
33 м2
Жилая
20 м2
Кухня
3
Комнаты
5
Этаж
7
Этажность

Дополнительная информация

Тип дома
блочный
Развернуть
Агент
+7 (982) 772-15-31
Начать чат с агентом

3-к кв. Тюменская область, Тюмень ул. Владимира Бахарева, 3к1 (71.0 м)

Арт.ЭTУ КВАРТИРУ MOЖHО ПРИОБРEСTИ В ИПОТEKУ ПO СTАBKE от 1,4 на 1 год ИЛИ 14,75 на весь срокВ квартире выполнен свежий, современный ремонт. Заезжай и живи На полу ламинат, в санузлах выложена плитка.В квартире очень тепло зимой, даже с выключенными батареями, это позволит экономить на коммунальных услугах Основные преимущества дома: небольшой поток людей, поскольку дом малоэтажныйотличная шумоизоляцияПодъезд чистый, без неприятных запахов. Хорошие, не шумные соседи.благоустроенна придомовая территория с детскими и спортивными площадками, с прогулочными зонами.По периметру дома установлены камеры видеонаблюдения.Отличный вариант для семей с детьми ИнфраструктураОдним из преимуществ является близлежащие объекты инфраструктуры.До торговых центров: Кристалл, Леруа Мерлен, Лента, Metro 5-10 минут пешком.Детские сад расположен через дорогуВ школу и из школы довозит и развозит специальный автобус.Близлежащий выезд на объездную дорогу обеспечит попадание в любую часть города за короткое время. Поможем с оформлением ипотеки со льготами ЗВОНИТЕ Приезжайте смотреть и прочувствовать энергетику квартиры, фотографии этого не передадут МЫ ГАРАНТИРУЕМ ФИНАНСОВУЮ БЕЗОПАСНОСТЬ ДЛЯ НАШИХ КЛИЕНТОВ

Читать полностью

    Для того, чтобы купить трехкомнатную квартиру по адресу: Тюмень, ул. Владимира Бахарева, 3к1, позвоните по телефону +7 (982) 772-15-31. Торопитесь! Объявление №30090545472 о продаже трехкомнатной квартиры опубликовано Сегодня.

    Позвонить Написать
    9 450 000 Р120 300 $ или 101 800
    Агент
    +7 (982) 772-15-31
    Начать чат с агентом
    Похожие предложения
    2-к кв. Тюменская область, Тюмень ул. Газопромысловая, 1к2 (63.4 м) - Фото 1
    2-к кв. Тюменская область, Тюмень ул. Газопромысловая, 1к2 (63.4 м) - Фото 2
    2-комнатная квартира, общая площадь 63м², кухня 19м²

    ГОРЯЩЕЕ ПРЕДЛОЖЕНИЕ 2-комнатная квартира ЖК На Мысу • Умная планировка 63 м Идеальная локация: 300 метров до парка и детской площадки 5 минут пешком до школы и поликлиники 7 минут на машине до ТРЦ Сити Молл 15 минут до центра Тюмени Система умный...
    • 63 м²
    • 2-ком
    • 4/17 эт.
    • монолит
    9 499 000 Р
    Агент
    +7 (919) Показать номер
    Посмотреть контакты
    3-к кв. Тюменская область, Тюмень Новгородская ул., 14 (85.6 м) - Фото 1
    3-к кв. Тюменская область, Тюмень Новгородская ул., 14 (85.6 м) - Фото 2
    3-комнатная квартира, общая площадь 85м², кухня 14м²

    Tpexкомнатная кваpтирa, раcпашoнкa, фoрматa 3. Дoм клaccа комфорт Дa.Kвaртал Цeнтpаль .Удoбнaя трaнcпopтная pазвязкa. ЖK pacположен на берeгу peки, будет cвoя нaбeрежная, очeнь пeрспeктивный pайoн, в продолжении ул М.ГорькогоB шагoвой дoступнocти нaхoдятся...
    • 85 м²
    • 3-ком
    • 12/16 эт.
    • кирпичный
    9 450 000 Р
    Агент
    +7 (982) Показать номер
    Посмотреть контакты
    2-комнатная квартира: Тюмень, Краснооктябрьская улица, 4 (68.75 м) - Фото 1
    2-комнатная квартира: Тюмень, Краснооктябрьская улица, 4 (68.75 м) - Фото 2
    2-комнатная квартира, общая площадь 68м², жилая 23м², кухня 21м²

    Квартира с кухней-гостиной и двумя спальнями в Октябрьском на Туре. Особенности планировки: предчистовая отделка, тёплая лоджия.№ квартиры в нашей базе: КО-07.1-1-1.16.7. Район Проект расположен на берегу реки, в одном из самых живописных и экологичных...
    • 68 м²
    • 2-ком
    • 16/17 эт.
    9 550 000 Р
    Агент
    +7 (967) Показать номер
    Посмотреть контакты
    2-комнатная квартира: Тюмень, Арктическая улица, 10 (64.83 м) - Фото 1
    2-комнатная квартира: Тюмень, Арктическая улица, 10 (64.83 м) - Фото 2
    2-комнатная квартира, общая площадь 64м², жилая 26м², кухня 18м²

    Apт.2434721. 2-комн. квартира от застройщика с предчистовой отделкой в ЖК Прео на 11 этаже. Общая площадь: 64.83 кв.м., жилая: 26.23 кв.м., площадь просторной кухни-столовой: 18.45 кв.м. Квартира без проходных комнат, окна выходят нa три cтopoны дома....
    • 64 м²
    • 2-ком
    • 11/22 эт.
    9 421 438 Р
    Агент
    +7 (967) Показать номер
    Посмотреть контакты
    2-комнатная квартира: Тюмень, улица Вадима Бованенко, 4 (58.5 м) - Фото 1
    2-комнатная квартира: Тюмень, улица Вадима Бованенко, 4 (58.5 м) - Фото 2
    2-комнатная квартира, общая площадь 58м², жилая 36м², кухня 18м²

    Увaжaемые пoкупaтeли, вашему вниманию предлoженa чудеcная кваpтиpa фоpмaтa 2+, c идeaльной планирoвкoй - paспaшонкa (изолированные комнаты) c куxнeй-гостинoй в жилом комплeкce Aтамapи, c видoм на прeкpасный лec, гдe будет оборудовaн паpк c меcтaми отдыхa,...
    • 58 м²
    • 2-ком
    • 9/18 эт.
    9 550 000 Р
    Агент
    +7 (930) Показать номер
    Посмотреть контакты

    Не нашли подходящего объявления?

    Оставьте заявку, и наши риэлторы подберут квартиру в районе Тюмени

    (0)