Россия, Тюменская область, Тюмень, ул. Прокопия Артамонова, 4
6 299 000 Р 77 780 $ или 66 600

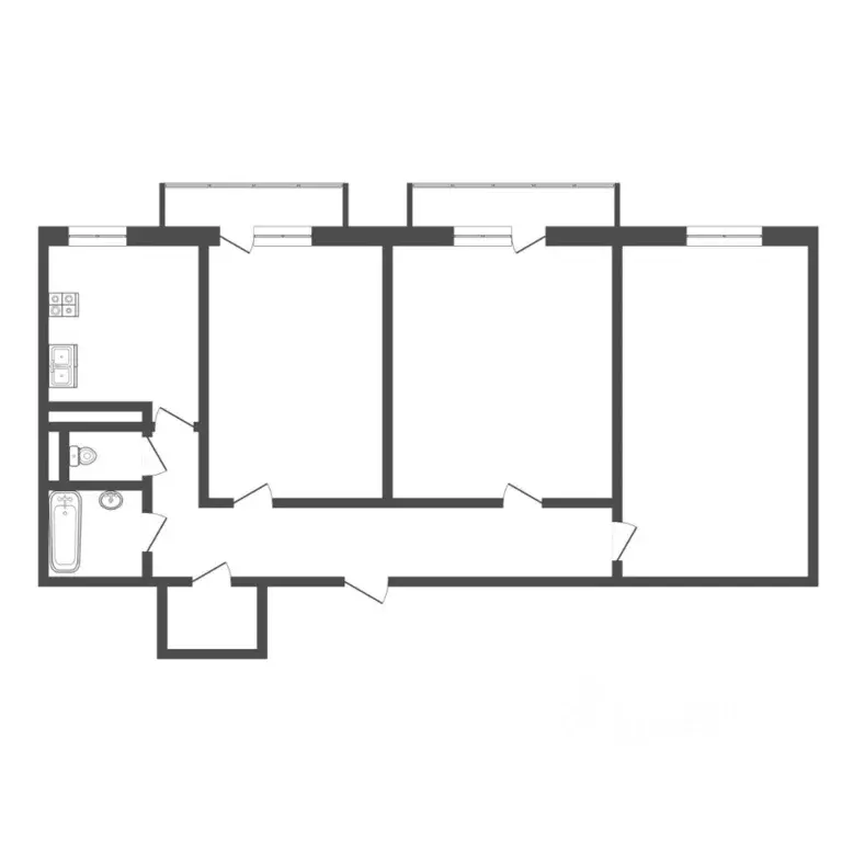
Информация о квартире

80 м2
Площадь
10 м2
Кухня
3
Комнаты
14
Этаж
16
Этажность

Дополнительная информация

Тип дома
монолит
Развернуть
Агент
+7 (912) 920-85-40
Начать чат с агентом

3-к кв. Тюменская область, Тюмень ул. Прокопия Артамонова, 4 (80.5 м)

Продается просторная 3-комнатная квартира в Тюменском микрорайоне по цене ниже рыночной Основные характеристики:• Тип дома: монолитно-каркасный• Планировка: три изолированные комнаты, кухня, вместительная гардеробная, два балкона. Окна выходят во двор, солнечная сторона.• Состояние: косметический ремонт, раздельный санузел• Оставшиеся предметы: кухонный гарнитурДополнительные преимущества:• На площадке всего 4 квартиры• Чистый подъезд и благоустроенная придомовая территория• Наличие детской игровой площадкиИнфраструктура:В районе есть все необходимое для комфортной жизни:• Отличная транспортная развязка (остановка общественного транспорта в 2 минутах пешком)• В непосредственной близости: детский сад 125, школа 65, городская поликлиника 12, аптеки, супермаркеты и гипермаркеты ( Окей , Ашан , Лента , Metro )• Торговые центры: Остров , Кристалл , рынок Михайловский *Остановка напротив домаВсе документы готовы, сделка возможна в любое время Не упустите шанс приобрести квартиру своей мечты Кухня 10 кв.м ( можно сделать перепланировку увеличить площадь кухни до 30 кв.м Солнечная сторона На площадке 4 квартиры косметический Хорошие тихие соседи Дом качественный, теплый Развитая инфраструктура Дополнительно оплачивается комиссия с покупателя. Номер объекта: 1802554

Читать полностью

    Для того, чтобы купить трехкомнатную квартиру по адресу: Тюмень, ул. Прокопия Артамонова, 4, позвоните по телефону +7 (912) 920-85-40. Торопитесь! Объявление №30090861918 о продаже трехкомнатной квартиры опубликовано 14 октября 2025.

    Позвонить Написать
    6 299 000 Р77 780 $ или 66 600
    Агент
    +7 (912) 920-85-40
    Начать чат с агентом
    Похожие предложения
    3-к кв. Тюменская область, Тюмень ул. Мебельщиков, 4 (66.0 м) - Фото 1
    3-к кв. Тюменская область, Тюмень ул. Мебельщиков, 4 (66.0 м) - Фото 2
    3-комнатная квартира, общая площадь 66м², жилая 48м², кухня 13м²

    Просторная трехкомнатная квартира площадью 66 м расположена в микрорайоне Тура — одном из самых удобных для жизни районов города. Планировка продумана для комфортного проживания семьи: изолированные комнаты , просторная кухня, отдельная кладовая и раздельный...
    • 66 м²
    • 3-ком
    • 10/10 эт.
    6 300 000 Р
    Агент
    +7 (912) Показать номер
    Посмотреть контакты
    4-к кв. Тюменская область, Тюмень ул. Прокопия Артамонова, 4 (89.9 м) - Фото 1
    4-к кв. Тюменская область, Тюмень ул. Прокопия Артамонова, 4 (89.9 м) - Фото 2
    4-комнатная квартира, общая площадь 89м², кухня 11м²

    Просторная 4-комнатная квартира 90 м в одном из лучших районов Тюмени Если вы мечтаете о комфортной жизни в городе, где всё рядом — от школ до торговых центров, а квартира не требует капитальных вложений, обратите внимание на это предложение О квартире:Общая...
    • 89 м²
    • 4-ком
    • 5/16 эт.
    • монолит
    6 200 000 Р
    Агент
    +7 (982) Показать номер
    Посмотреть контакты
    3-к кв. Тюменская область, Тюмень ул. Прокопия Артамонова, 4 (80.5 м) - Фото 1
    3-к кв. Тюменская область, Тюмень ул. Прокопия Артамонова, 4 (80.5 м) - Фото 2
    3-комнатная квартира, общая площадь 80м², кухня 10м²

    Срочно Продается просторная 3-ком квартира в Тюменском микрорайоне. Дом монолитно-каркасного исполнения. Квартира имеет удобную планировку: три изолированные комнаты, кухня, просторный санузел, вместительная гардеробная комната, два застекленных балкона....
    • 80 м²
    • 3-ком
    • 14/16 эт.
    • монолит
    6 300 000 Р
    Агент
    +7 (912) Показать номер
    Посмотреть контакты
    1-к кв. Тюменская область, Тюмень ул. Алматинская, 4 (40.4 м) - Фото 1
    1-к кв. Тюменская область, Тюмень ул. Алматинская, 4 (40.4 м) - Фото 2
    1-комнатная квартира, общая площадь 40м², жилая 12м², кухня 19м²

    Продается светлая квартира формата 1+ с качественным свежим ремонтом. Ключевым преимуществом является просторная кухня-гостиная площадью 19 м, которая служит функциональным ядром квартиры и идеально подходит для комфортного отдыха и приема гостей. Окна...
    • 40 м²
    • 1-ком
    • 8/12 эт.
    • монолит
    6 250 000 Р
    Агент
    +7 (982) Показать номер
    Посмотреть контакты
    2-к кв. Тюменская область, Тюмень ул. 50 лет Октября, 75к1 (57.1 м) - Фото 1
    2-к кв. Тюменская область, Тюмень ул. 50 лет Октября, 75к1 (57.1 м) - Фото 2
    2-комнатная квартира, общая площадь 57м², кухня 10м²

    Уважаемые покупатели , к продаже представлена уютная и тёплая двухкомнатная квартира с косметическим ремонтом в жилом комплексе Славутич. Даный жилой комлекс имеет очень удобную локацию: рядом ТИУ, медицинский колледж, два детских сада, школа,...
    • 57 м²
    • 2-ком
    • 15/18 эт.
    • монолит
    6 330 000 Р
    Агент
    +7 (919) Показать номер
    Посмотреть контакты

    Не нашли подходящего объявления?

    Оставьте заявку, и наши риэлторы подберут квартиру в районе Тюмени

    (0)