Россия, Тюменская область, Тюмень, ул. Павла Шарова, 5
6 600 000 Р 83 560 $ или 71 720

Информация о квартире

56 м2
Площадь
10 м2
Кухня
3
Комнаты
1
Этаж
14
Этажность

Дополнительная информация

Тип дома
панельный
Развернуть
Агент
+7 (982) 932-73-89
Начать чат с агентом

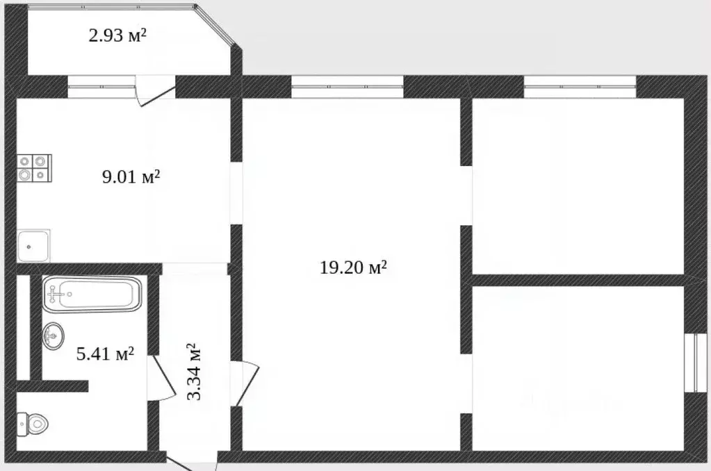
3-к кв. Тюменская область, Тюмень ул. Павла Шарова, 5 (56.1 м)

Продается уютная квартира в НовоПатрушево (ул. Павла Шарова, 5)Предлагается к продаже светлая и тихая квартира площадью 56,1 кв.м на первом этаже 14этажного монолитного дома 2019 года постройки. Высота потолков 2,5 м. Квартира с качественным евроремонтом, окна выходят во двор.Планировка включает две спальни, гостиную, кухню 10 кв.м, совмещенный санузел и балкон. Просторные и светлые комнаты, современное оснащение ванной комнаты. На этаже 4 квартиры, есть колясочная.Дом в хорошем состоянии, оборудован пассажирским и грузовым лифтами. Во дворе предусмотрена наземная парковка, много парковочных мест. Район НовоПатрушево с развитой инфраструктурой — в шаговой доступности детские сады, магазины и другие объекты, удобная транспортная доступность.Приглашаем на просмотр — звоните или пишите в чат, чтобы записаться на удобное время. Бесплатное оформление ипотеки по сниженным ставкам от банков-партнеров. Подаем заявку онлайн в несколько банков сразу. Одобрение в течениеабочего дня. Дополнительно оплачивается комиссия с покупателя. Номер объекта: 3883884

Читать полностью

    Для того, чтобы купить трехкомнатную квартиру по адресу: Тюмень, ул. Павла Шарова, 5, позвоните по телефону +7 (982) 932-73-89. Торопитесь! Объявление №30091349440 о продаже трехкомнатной квартиры опубликовано 25 октября 2025.

    Позвонить Написать
    6 600 000 Р83 560 $ или 71 720
    Агент
    +7 (982) 932-73-89
    Начать чат с агентом
    Похожие предложения
    2-к кв. Тюменская область, Тюмень ул. Обдорская, 5 (50.6 м) - Фото 1
    2-к кв. Тюменская область, Тюмень ул. Обдорская, 5 (50.6 м) - Фото 2
    2-комнатная квартира, общая площадь 50м², кухня 11м²

    Внимание Самое выгодное предложение на рынке Срочная продажа Продаётся 2-комнатная квартира (район Московского тракта) в микрорайоне Ямальский-2. Квартира расположена на среднем этаже. В квартире сделан ремонт: на стенах обои в светлых тонах,на...
    • 50 м²
    • 2-ком
    • 7/17 эт.
    • монолит
    6 600 000 Р
    Агент
    +7 (982) Показать номер
    Посмотреть контакты
    3-к кв. Тюменская область, Тюмень ул. Павла Шарова, 5 (56.1 м) - Фото 1
    3-к кв. Тюменская область, Тюмень ул. Павла Шарова, 5 (56.1 м) - Фото 2
    3-комнатная квартира, общая площадь 56м², кухня 9м²

    О доме:Предлагается к продаже уютная квартира в районе Ново-Патрушево. В квартире выполнен качественный ремонт. На этаже 4 квартиры, есть колясочная.О квартире:Квартира площадью 56,1 кв.м. Две спальные комнаты, гостиная, кухня и совмещенный санузел. Расположена...
    • 56 м²
    • 3-ком
    • 1/14 эт.
    • панельный
    6 600 000 Р
    Агент
    +7 (919) Показать номер
    Посмотреть контакты
    1-к кв. Тюменская область, Тюмень ул. Бориса Житкова, 5 (49.3 м) - Фото 1
    1-к кв. Тюменская область, Тюмень ул. Бориса Житкова, 5 (49.3 м) - Фото 2
    1-комнатная квартира, общая площадь 49м², кухня 18м²

    Уважаемые покупатели, продается уютная однокомнатная квартира в кирпичном доме. В квартире отличный ремонт, большая кухня-гостиная, при продаже остается все: кухонный гарнитур, техника, диван, стол, кровать, шкаф купе. Сан узел раздельный, отдельная гардеробная....
    • 49 м²
    • 1-ком
    • 14/17 эт.
    • монолит
    6 600 000 Р
    Агент
    +7 (982) Показать номер
    Посмотреть контакты
    2-к кв. Тюменская область, Тюмень Тарманы мкр, ул. Маршака, 5 (65.3 м) - Фото 1
    2-к кв. Тюменская область, Тюмень Тарманы мкр, ул. Маршака, 5 (65.3 м) - Фото 2
    2-комнатная квартира, общая площадь 65м², жилая 41м², кухня 19м²

    СРОЧНО ТОРГ ПРОДАМ квартиру формата 2+ в шаговой доступности от парка Ю.А. Гагарина Это идеальное место для тех, кто ценит свежий воздух и прогулки на природе в любое время года. Просторная и светлая кухня-гостиная станет идеальным местом для встреч...
    • 65 м²
    • 2-ком
    • 4/10 эт.
    • панельный
    6 700 000 Р
    Агент
    +7 (982) Показать номер
    Посмотреть контакты
    2-к кв. Тюменская область, Тюмень ул. Ленина, 71 (53.6 м) - Фото 1
    2-к кв. Тюменская область, Тюмень ул. Ленина, 71 (53.6 м) - Фото 2
    2-комнатная квартира, общая площадь 53м², кухня 8м²

    Самая удобная квартира в САМОМ ЦЕНТРЕ города Рядом ЦУМ, цирк, библиотека, пешеходный бульвар, до набережной 10 минут пешком Функциональная планировка, солнечная сторона сделают проживание в квартире благоприятным. Высота потолков 3,3м.Квартира с косметическим...
    • 53 м²
    • 2-ком
    • 4/4 эт.
    • кирпичный
    6 649 000 Р
    Агент
    +7 (912) Показать номер
    Посмотреть контакты

    Не нашли подходящего объявления?

    Оставьте заявку, и наши риэлторы подберут квартиру в районе Тюмени

    (0)