4 100 000 Р 52 700 $ или 45 180

Информация о квартире

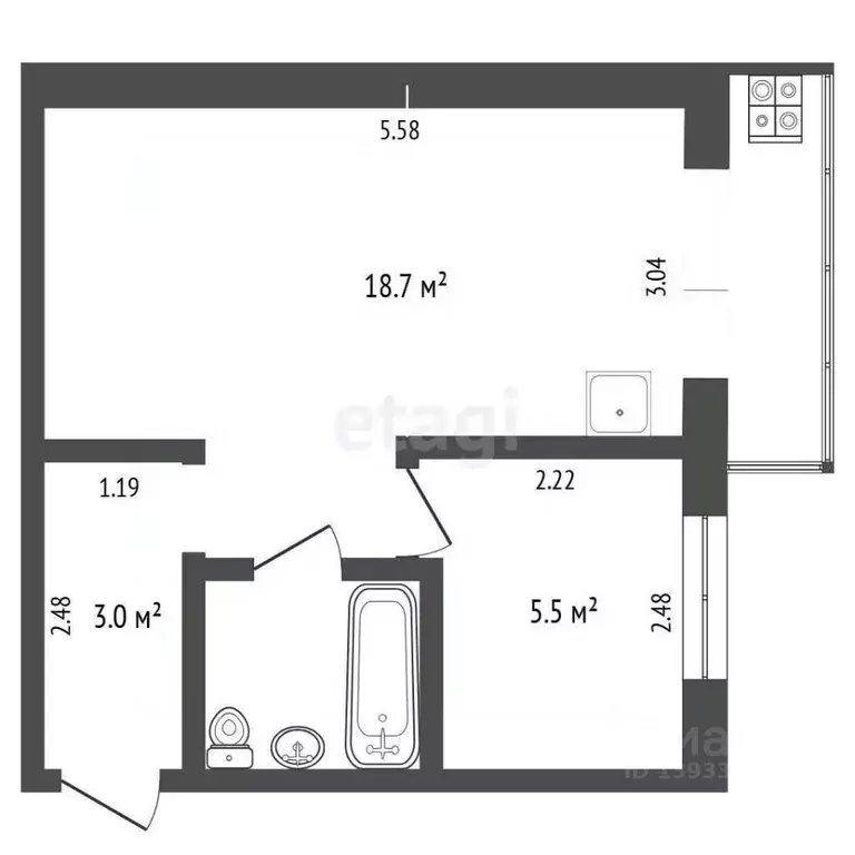
29 м2
Площадь
5 м2
Кухня
1
Комната
5
Этаж
5
Этажность

Дополнительная информация

Тип дома
кирпичный
Развернуть
Агент
+7 (912) 383-06-99
Начать чат с агентом

1-к кв. Тюменская область, Тюмень ул. Осипенко, 41 (29.8 м)

1 комнатная квартира 29.8 м с ремонтом. Центр, набережная 4 мин. Идеальный баланс уюта и центральной локации Продается светлая и уютная квартира площадью 29.8 м на 5 этаже с выполненным капитальным ремонтом в деловом центре Тюмени.Почему эта квартира — ваша лучшая инвестиция? Локация мечты:Всего 4 минуты пешком до набережной реки Тура.Развитая инфраструктура: школы, фитнес-залы, спа, салоны красоты, продуктовые и два крупных ТЦ.Остановка общественного транспорта — прямо за домом.Шаговая доступность к бизнес-центрам, офисам и Перинатальному центру. Качественный и продуманный ремонт:Выполнен капитальный ремонт: заменена вся проводка, стены выровнены под маяк, заменена стяжка пола.Установлены пластиковые окна и натяжные потолки.Сделан стильный косметический ремонт.Теплый пол на балконе и в коридоре для вашего комфорта.Современная техника: водонагреватель, посудомоечная машина, кухонный гарнитур с доводчиками. Важные детали:Мебель и техника: Остаются при продаже Идеально для вас:Для проживания: Въезжайте и живите Идеальный вариант для комфортной жизни в центре без хлопот с ремонтом.Для инвестиций: Получайте стабильный доход от аренды. Квартира полностью готова к сдаче. Высокий спрос гарантирован близостью университетов и деловых объектов.Эта квартира сочетает в себе удобство, готовность к проживанию и выгодное расположение. Цените свое время и комфорт Документы готовы и проверены юристами Свяжитесь со мной прямо сейчас, чтобы задать вопросы и договориться о просмотре МЫ ГАРАНТИРУЕМ ФИНАНСОВУЮ БЕЗОПАСНОСТЬ ДЛЯ НАШИХ КЛИЕНТОВ.Код пользователя: 163876Номер в базе:

Читать полностью

    Для того, чтобы купить однокомнатную квартиру по адресу: Тюмень, ул. Осипенко, 41, позвоните по телефону +7 (912) 383-06-99. Торопитесь! Объявление №30091363790 о продаже однокомнатной квартиры опубликовано 2 дня назад.

    Позвонить Написать
    4 100 000 Р52 700 $ или 45 180
    Агент
    +7 (912) 383-06-99
    Начать чат с агентом
    Похожие предложения
    1-к кв. Тюменская область, Тюмень ул. Осипенко, 41 (29.8 м) - Фото 1
    1-к кв. Тюменская область, Тюмень ул. Осипенко, 41 (29.8 м) - Фото 2
    1-комнатная квартира, общая площадь 29м², кухня 5м²

    1 комнатная квартира 29.8 м с ремонтом. Центр, набережная 4 мин. Идеальный баланс уюта и центральной локации Продается светлая и уютная квартира площадью 29.8 м на 5 этаже с выполненным капитальным ремонтом в деловом центре Тюмени.Почему эта квартира...
    • 29 м²
    • 1-ком
    • 5/5 эт.
    • кирпичный
    4 100 000 Р
    Агент
    +7 (982) Показать номер
    Посмотреть контакты
    1-к кв. Тюменская область, Тюмень ул. Осипенко, 41 (31.4 м) - Фото 1
    1-к кв. Тюменская область, Тюмень ул. Осипенко, 41 (31.4 м) - Фото 2
    1-комнатная квартира, общая площадь 31м², жилая 15м², кухня 6м²

    Мечтаете жить там, где все под рукой? Эта квартира именно то, что вы искали Всего 4 минуты пешком и вы наслаждаетесь прогулками по нашей прекрасной набережной.Район поражает своей развитой инфраструктурой: рядом школы для ваших детей, современные фитнес-залы...
    • 31 м²
    • 1-ком
    • 5/5 эт.
    • кирпичный
    4 100 000 Р
    Агент
    +7 (916) Показать номер
    Посмотреть контакты
    1-к кв. Тюменская область, Тюмень Молодежная ул., 70А (31.6 м) - Фото 1
    1-к кв. Тюменская область, Тюмень Молодежная ул., 70А (31.6 м) - Фото 2
    1-комнатная квартира, общая площадь 31м², кухня 7м²

    Продаётся уютная однокомнатная квартира площадью 31.6 м Описание квартиры:- Площадь комнаты: 24.6 м- Просторная кухня: 7 м- Этаж: 8-й этаж десятиэтажного дома- Высота потолков: 2.5 метра- Балкон: имеется просторный балкон- Окна: качественные пластиковые...
    • 31 м²
    • 1-ком
    • 8/10 эт.
    • панельный
    4 158 000 Р
    Агент
    +7 (982) Показать номер
    Посмотреть контакты
    Студия Тюменская область, Тюмень Войновка мкр, ул. Энергостроителей, ... - Фото 1
    Студия Тюменская область, Тюмень Войновка мкр, ул. Энергостроителей, ... - Фото 2
    студия, общая площадь 41м², кухня 12м²

    Прекрасная возможность стать владельцем уютной квартиры площадью 41,5 кв. м, расположенной в восточной части города В доме своя котельная, а стоимость коммунальных услуг вас приятно удивит, около трех тысяч в зимнее время Это идеальное место для комфортной...
    • 41 м²
    • студия-ком
    • 8/10 эт.
    • кирпичный
    4 200 000 Р
    Агент
    +7 (982) Показать номер
    Посмотреть контакты
    1-к кв. Тюменская область, Тюмень ул. Федюнинского, 15 (39.1 м) - Фото 1
    1-к кв. Тюменская область, Тюмень ул. Федюнинского, 15 (39.1 м) - Фото 2
    1-комнатная квартира, общая площадь 39м², кухня 9м²

    цена без торга.Предлагается к продаже квартира в теплом кирпичном доме по очень выгодной цене Дом находится в районе с развитой инфраструктурой: во дворе детский сад, в трех минутах ходьбы школа, до которой можно дойти без пересечения автомобильных...
    • 39 м²
    • 1-ком
    • 10/12 эт.
    • кирпичный
    4 150 000 Р
    Агент
    +7 (982) Показать номер
    Посмотреть контакты

    Не нашли подходящего объявления?

    Оставьте заявку, и наши риэлторы подберут квартиру в районе Тюмени

    (0)