Россия, Тюменская область, Тюмень, ул. Станционная, 26В/1
4 800 000 Р 59 830 $ или 52 180

Информация о квартире

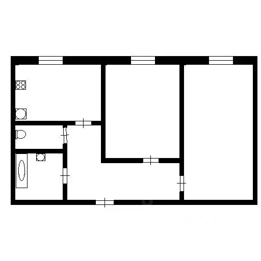
37 м2
Площадь
10 м2
Кухня
1
Комната
9
Этаж
9
Этажность

Дополнительная информация

Тип дома
кирпичный
Развернуть
Агент
+7 (919) 940-88-92
Начать чат с агентом

1-к кв. Тюменская область, Тюмень ул. Станционная, 26В/1 (37.3 м)

Продаем прекрасную светлую квартиру в кирпичном доме площадь 37,3 кв мПолностью готова к проживанию Юридические аспекты: Квартира свободна от обременений и детских долей,процесс покупки или обмена простой и быстрый. Квартира светлая и ухоженная , свежая косметика .Кирпичный дом обеспечивает надежность и хорошую тепло- и звукоизоляцию. Чистый , новый , аккуратный подъезд, приветливые и воспитанные соседи, грузовой лифт. Во дворе детская площадка, парковочные места, вблизи гипермаркет Окей , Монетка , Магнит , аптеки, отделение банка, рядом две школы и два детских сада, автобусная остановка через дорогу. Для вечерних прогулок прекрасно подойдет парк Серебряные ключи , а для активного отдыха - пруд Лесной . До центра 20-25 минут.Рассматриваем обмен на равноценнную квартиру-н Плеханово / р-н ТРЦ Колумб .Звоните, показы по предварительной договоренности , помощь с ипотекой с самого начала .МЫ ГАРАНТИРУЕМ ФИНАНСОВУЮ БЕЗОПАСНОСТЬ ДЛЯ НАШИХ КЛИЕНТОВ.Код пользователя: 20553Номер в базе: 9918210

Читать полностью

    Для того, чтобы купить однокомнатную квартиру по адресу: Тюмень, ул. Станционная, 26В/1, позвоните по телефону +7 (919) 940-88-92. Торопитесь! Объявление №30091395456 о продаже однокомнатной квартиры опубликовано Вчера.

    Позвонить Написать
    4 800 000 Р59 830 $ или 52 180
    Агент
    +7 (919) 940-88-92
    Начать чат с агентом
    Похожие предложения
    1-к кв. Тюменская область, Тюмень ул. Василия Шамова, 6 (42.7 м) - Фото 1
    1-к кв. Тюменская область, Тюмень ул. Василия Шамова, 6 (42.7 м) - Фото 2
    1-комнатная квартира, общая площадь 42м², кухня 21м²

    Продается 1-комнатная квартира в ЖК Скандиа. Квартал у озера О ЖИЛОМ КОМПЛЕКСЕ:Уютный 4-этажный квартал рядом с лесопарком и озерами Песьяное и Чистое. Закрытые зеленые дворы с видеонаблюдением, детскими площадками и зонами отдыха. Просторные и светлые...
    • 42 м²
    • 1-ком
    • 2/4 эт.
    • монолит
    4 790 000 Р
    Агент
    +7 (919) Показать номер
    Посмотреть контакты
    1-к кв. Тюменская область, Тюмень ул. Николая Ростовцева, 18 (35.5 м) - Фото 1
    1-к кв. Тюменская область, Тюмень ул. Николая Ростовцева, 18 (35.5 м) - Фото 2
    1-комнатная квартира, общая площадь 35м², кухня 5м²

    Отличня однокомнатная квартира с кладовкой в подарок Квартира расположена в монолитно-кирпичном доме в микрорайоне Ямальский. Объект предлагается с полной меблировкой и техникой, все предметы интерьера, представленные на фотографиях, остаются новому...
    • 35 м²
    • 1-ком
    • 4/17 эт.
    • монолит
    4 750 000 Р
    Агент
    +7 (982) Показать номер
    Посмотреть контакты
    1-к кв. Тюменская область, Тюмень ул. Тальниковая, 9 (39.6 м) - Фото 1
    1-к кв. Тюменская область, Тюмень ул. Тальниковая, 9 (39.6 м) - Фото 2
    1-комнатная квартира, общая площадь 39м², кухня 18м²

    Очень хорошее предложение, обратите внимание. Видовая квартира Южная сторона В продаже квартира формата 1+ в ЖК Дебют. Большая кухня гостиная 18 кв.м с выходом на лоджию. Светлая спальня 13,7 кв.м., совмещенный санузел 3,5 кв.м и просторная прихожая...
    • 39 м²
    • 1-ком
    • 13/19 эт.
    • монолит
    4 800 000 Р
    Агент
    +7 (982) Показать номер
    Посмотреть контакты
    2-к кв. Тюменская область, Тюмень Широтная ул., 105 (43.8 м) - Фото 1
    2-к кв. Тюменская область, Тюмень Широтная ул., 105 (43.8 м) - Фото 2
    2-комнатная квартира, общая площадь 43м², кухня 7м²

    Продается двухкомнатная квартира в Восточном районе г.Тюмени 3-ий этаж 5-этажного дома - Общая площадь: 48,3 м - С/У: раздельный Квартира располагается в районе с развитой инфраструктурой, где буквально всё под рукой. Во дворе дома находится детский...
    • 43 м²
    • 2-ком
    • 3/5 эт.
    • панельный
    4 750 000 Р
    Агент
    +7 (982) Показать номер
    Посмотреть контакты
    2-к кв. Тюменская область, Тюмень 6-й мкр, ул. Валерии Гнаровской, 10 ... - Фото 1
    2-к кв. Тюменская область, Тюмень 6-й мкр, ул. Валерии Гнаровской, 10 ... - Фото 2
    2-комнатная квартира, общая площадь 53м², кухня 9м²

    МЫ ГАРАНТИРУЕМ ФИНАНСОВУЮ БЕЗОПАСНОСТЬ ДЛЯ НАШИХ КЛИЕНТОВ.Код пользователя: 198613Номер в базе: 9061073
    • 53 м²
    • 2-ком
    • 9/9 эт.
    • панельный
    4 850 000 Р
    Агент
    +7 (982) Показать номер
    Посмотреть контакты

    Не нашли подходящего объявления?

    Оставьте заявку, и наши риэлторы подберут квартиру в районе Тюмени

    (0)