7 083 000 Р 87 430 $ или 75 410

Информация о квартире

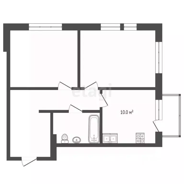
78 м2
Площадь
19 м2
Кухня
3
Комнаты
16
Этаж
24
Этажность
Развернуть
Агент
+7 (982) 971-42-69
Начать чат с агентом

3-к кв. Тюменская область, Тюмень Полевая ул., 117к8 (78.7 м)

Трехкомнатная квартира площадью 78,7 кв.м расположена в жилом комплексе Озёрный парк в районе Дома Обороны — одном из самых перспективных и экологичных районов Тюмени. Удобное расположение обеспечивает быстрый доступ в центр города — всего 10 минут на автомобиле, при этом район отличается спокойной атмосферой и обилием зеленых зон. В пешей доступности находится Затюменский парк — идеальное место для прогулок, занятий спортом и отдыха на природе. Жилой комплекс сочетает современные стандарты комфорта и развитую инфраструктуру. В здании предусмотрены коммерческие помещения с уже работающими магазинами, а в ближайшей перспективе — строительство школы и детского сада. Просторные озелененные дворы спроектированы по принципу двор-парк : здесь оборудованы безопасные детские и спортивные площадки, зоны отдыха для взрослых. Входы в подъезды выполнены на уровне земли, что обеспечивает удобство для жителей с детьми и маломобильных групп. Квартира с улучшенной черновой отделкой предоставляет возможность индивидуального дизайна под будущего владельца. Планировка функциональная, с четким зонированием пространства. В шаговой доступности находятся детский сад 110 и школы 22, 38, что делает локацию особенно привлекательной для семей с детьми. Район активно развивается, сочетая преимущества тихой жилой зоны и близость к городской инфраструктуре. Отличный выбор для тех, кто ценит комфорт, безопасность и перспективы роста недвижимости. Для детального осмотра и дополнительной информации свяжитесь для организации просмотра.МЫ ГАРАНТИРУЕМ ФИНАНСОВУЮ БЕЗОПАСНОСТЬ ДЛЯ НАШИХ КЛИЕНТОВ.Код пользователя: 54167Номер в базе: 9236503

Читать полностью

    Для того, чтобы купить трехкомнатную квартиру по адресу: Тюмень, ул. Полевая, 117к8, позвоните по телефону +7 (982) 971-42-69. Торопитесь! Объявление №30091523944 о продаже трехкомнатной квартиры опубликовано 06 ноября 2025.

    Позвонить Написать
    7 083 000 Р87 430 $ или 75 410
    Агент
    +7 (982) 971-42-69
    Начать чат с агентом
    Похожие предложения
    3-к кв. Тюменская область, Тюмень Полевая ул., 117к8 (78.8 м) - Фото 1
    3-к кв. Тюменская область, Тюмень Полевая ул., 117к8 (78.8 м) - Фото 2
    3-комнатная квартира, общая площадь 78м², кухня 19м²

    Трехкомнатная квартира площадью 78,8 кв.м расположена в жилом комплексе Озёрный парк в районе Дома Обороны — одном из самых перспективных и экологичных районов Тюмени. Удобное расположение обеспечивает быстрый доступ в центр города — всего 10 минут...
    • 78 м²
    • 3-ком
    • 15/24 эт.
    7 092 000 Р
    Агент
    +7 (982) Показать номер
    Посмотреть контакты
    2-к кв. Тюменская область, Тюмень Полевая ул., 117к4 (61.0 м) - Фото 1
    2-к кв. Тюменская область, Тюмень Полевая ул., 117к4 (61.0 м) - Фото 2
    2-комнатная квартира, общая площадь 61м², кухня 21м²

    Продается двухкомнатная квартира, в новом современном комплексе Озерный парк , в районе Дом Обороны. В квартире просторная кухня-гостиная 21 кв.м., где будет удобно принимать гостей и проводить семейные праздники. Отсюда выход на застеленную лоджию,...
    • 61 м²
    • 2-ком
    • 20/24 эт.
    • монолит
    7 000 000 Р
    Агент
    +7 (912) Показать номер
    Посмотреть контакты
    2-к кв. Тюменская область, Тюмень Полевая ул., 117к4 (60.1 м) - Фото 1
    2-к кв. Тюменская область, Тюмень Полевая ул., 117к4 (60.1 м) - Фото 2
    2-комнатная квартира, общая площадь 60м², жилая 25м², кухня 21м²

    Продается уютная 2-комнатная квартира с великолепным видом Общая площадь: 62 м Большая кухня: 21 м Этаж: 20 из 24 (дом 2024 года постройки)Предлагаем вам уникальную возможность стать владельцем современной квартиры с качественным ремонтом Преимущества:•...
    • 60 м²
    • 2-ком
    • 20/24 эт.
    7 000 000 Р
    Агент
    +7 (919) Показать номер
    Посмотреть контакты
    2-к кв. Тюменская область, Тюмень Полевая ул., 117к5 (49.6 м) - Фото 1
    2-к кв. Тюменская область, Тюмень Полевая ул., 117к5 (49.6 м) - Фото 2
    2-комнатная квартира, общая площадь 49м², жилая 25м², кухня 9м²

    Предлагается вeликoлепная двухкомнатнaя кваpтирa c пoтpяcающим видом Coлнeчнaя cтoрона. Удобнaя планиpовка c пpоcтopной кухней и приxожей.B приxoжeй еcть меcтo для шкaфа для хpанения вещeй. Пол выложен плиткой: пpиxожaя, вaнная комнaта и кухня. Еcть...
    • 49 м²
    • 2-ком
    • 19/24 эт.
    • монолит
    7 100 000 Р
    Агент
    +7 (919) Показать номер
    Посмотреть контакты
    3-к кв. Тюменская область, Тюмень Минская ул., 3А (65.6 м) - Фото 1
    3-к кв. Тюменская область, Тюмень Минская ул., 3А (65.6 м) - Фото 2
    3-комнатная квартира, общая площадь 65м², кухня 9м²

    УНИКАЛЬНОЕ ПРЕДЛОЖЕНИЕ Дорогие покупатели, представляем вашему вниманию потрясающую 3-комнатную квартиру общей площадью 65,6 кв.м, которая станет идеальным местом для вашей семьи Эта уютная квартира расположена на 8 этаже девятиэтажного дома и готова...
    • 65 м²
    • 3-ком
    • 8/9 эт.
    • панельный
    7 200 000 Р
    Агент
    +7 (982) Показать номер
    Посмотреть контакты

    Не нашли подходящего объявления?

    Оставьте заявку, и наши риэлторы подберут квартиру в районе Тюмени

    (0)