Россия, Тюменская область, Тюмень, ул. Ю.-Р.Г. Эрвье, 24к4
7 900 000 Р 97 260 $ или 84 190

Информация о квартире

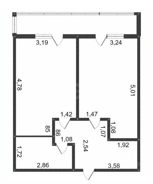
41 м2
Площадь
20 м2
Кухня
1
Комната
10
Этаж
10
Этажность

Дополнительная информация

Тип дома
кирпичный
Развернуть
Агент
+7 (982) 932-35-81
Начать чат с агентом

1-к кв. Тюменская область, Тюмень ул. Ю.-Р.Г. Эрвье, 24к4 (41.3 м)

Просторная квартира формата 1+асположена в одном из самых престижных микрорайонов Тюмени — Европейском. Общая площадь включает кухню-гостиную, спальню и совмещенный санузел. Гостиная выходит на балкон, что создает ощущение простора и дополнительный комфорт. Квартира выполнена в современном стиле с качественной отделкой: чистовая отделка, установлен кондиционер, встроенная гардеробная система. Объект находится в собственности с 2014 года, отсутствуют обременения и долевая собственность, что упрощает сделку. Микрорайон отличается продуманной инфраструктурой и высоким уровнем безопасности. Благоустроенные дворы с зонами отдыха, детскими и спортивными площадками, велодорожками и местами для выгула собак делают жизнь комфортной. Территория оборудована системой видеонаблюдения, включая подъезды и лифты. В шаговой доступности — торговая галерея, кафе, салоны красоты и фитнес-центры. Хорошая транспортная доступность позволяет быстро добраться до центра города и ключевых магистралей. Квартира расположена на солнечной стороне, что обеспечивает естественное освещение в течение дня, а качественная теплоизоляция делает проживание комфортным в любое время года. Объект подходит как для собственного проживания, так и для сдачи в аренду благодаря удачному расположению и востребованности района. Возможен немедленный въезд — все коммуникации исправны, документы готовы к сделке. Для просмотра доступен в любое удобное время.МЫ ГАРАНТИРУЕМ ФИНАНСОВУЮ БЕЗОПАСНОСТЬ ДЛЯ НАШИХ КЛИЕНТОВ.Код пользователя: 146116Номер в базе: 7787857

Читать полностью

    Для того, чтобы купить однокомнатную квартиру по адресу: Тюмень, ул. Ю.-Р.Г. Эрвье, 24к4, позвоните по телефону +7 (982) 932-35-81. Торопитесь! Объявление №30091539455 о продаже однокомнатной квартиры опубликовано 03 ноября 2025.

    Позвонить Написать
    7 900 000 Р97 260 $ или 84 190
    Агент
    +7 (982) 932-35-81
    Начать чат с агентом
    Похожие предложения
    2-комнатная квартира: Тюмень, улица Михаила Сперанского, 25 (55.2 м) - Фото 1
    2-комнатная квартира: Тюмень, улица Михаила Сперанского, 25 (55.2 м) - Фото 2
    2-комнатная квартира, общая площадь 55м², жилая 41м², кухня 9м²

    Уважаемые Покупатели, продаётся просторная, теплая квартира в популярном районе Тюмени. Комнаты изолированы, сан.узел раздельный. просторная прихожая. Сделан косметический свежий ремонт. При продаже остается кухонный гарнитур, Плита, обеденная зона, шкаф...
    • 55 м²
    • 2-ком
    • 10/17 эт.
    8 000 000 Р
    Агент
    +7 (988) Показать номер
    Посмотреть контакты
    1-комнатная квартира: Тюмень, улица Ю.-Р.Г. Эрвье, 28к3 (42 м) - Фото 1
    1-комнатная квартира: Тюмень, улица Ю.-Р.Г. Эрвье, 28к3 (42 м) - Фото 2
    1-комнатная квартира, общая площадь 42м², кухня 12м²

    Код предложения ID 798357. Вашему вниманию предлагается большая квартира формата 1+ и площадью 41,3 кв. м. расположенная на 10 этаже кирпичного дома в престижном районе «Европейский . Квартира оснащена панорамными окнами, которые выходят на благоустроенную...
    • 42 м²
    • 1-ком
    • 10/10 эт.
    7 990 000 Р
    Агент
    +7 (967) Показать номер
    Посмотреть контакты
    1-к кв. Тюменская область, Тюмень ул. Федюнинского, 30к1 (42.6 м) - Фото 1
    1-к кв. Тюменская область, Тюмень ул. Федюнинского, 30к1 (42.6 м) - Фото 2
    1-комнатная квартира, общая площадь 42м², жилая 16м², кухня 19м²

    Уютная квартира в современном жилом комплексе повышенной комфортности.В квартире сделан качественный ремонт,встроенная мебель и техника.Функциональная планировка,просторная кухня-гостиная.В ЖК Ожогино малоэтажные дома.Тихий район, есть прогулочная улица...
    • 42 м²
    • 1-ком
    • 3/4 эт.
    8 000 000 Р
    Агент
    +7 (912) Показать номер
    Посмотреть контакты
    2-комнатная квартира: Тюмень, улица Андрея Приказнова, 1 (53.95 м) - Фото 1
    2-комнатная квартира: Тюмень, улица Андрея Приказнова, 1 (53.95 м) - Фото 2
    2-комнатная квартира, общая площадь 53м², жилая 24м², кухня 20м²

    Apт.2403491. Двухкомнатная квартира с предчистовой отделкой в ЖК Мотивы на 12 этаже. Общая площадь: 53.95 кв.м., жилая: 24.24 кв.м., площадь просторной кухни-столовой: 20.1 кв.м. Комнаты изолированные, все окна выходят на одну сторону. В квартире одна...
    • 53 м²
    • 2-ком
    • 12/14 эт.
    7 890 000 Р
    Агент
    +7 (919) Показать номер
    Посмотреть контакты
    2-комнатная квартира: Тюмень, улица Андрея Приказнова, 7 (60.48 м) - Фото 1
    2-комнатная квартира: Тюмень, улица Андрея Приказнова, 7 (60.48 м) - Фото 2
    2-комнатная квартира, общая площадь 60м², жилая 25м², кухня 15м²

    Apт.2402742. 2-комн. квартира с предчистовой отделкой в ЖК Мотивы на 10 этаже. Общая площадь: 60.48 кв.м., жилая: 25.48 кв.м., площадь просторной кухни-столовой: 15.02 кв.м. Комнаты изолированные, все окна выходят на одну сторону. В квартире одна лоджия,...
    • 60 м²
    • 2-ком
    • 10/14 эт.
    8 000 000 Р
    Агент
    +7 (919) Показать номер
    Посмотреть контакты

    Не нашли подходящего объявления?

    Оставьте заявку, и наши риэлторы подберут квартиру в районе Тюмени

    (0)