Россия, Тюменская область, Тюмень, ул. Ю.-Р.Г. Эрвье, 30к2
6 400 000 Р 78 790 $ или 68 200

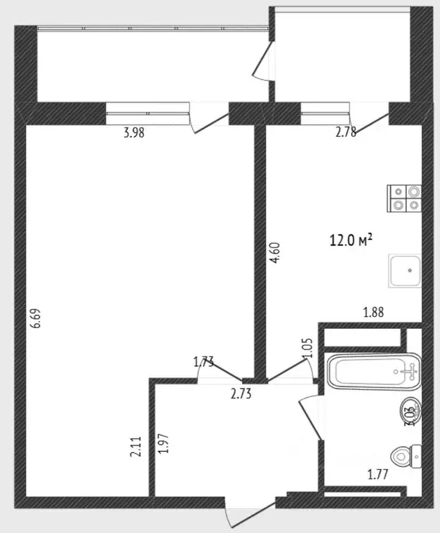
Информация о квартире

43 м2
Площадь
11 м2
Кухня
1
Комната
16
Этаж
17
Этажность

Дополнительная информация

Тип дома
монолит
Развернуть
Агент
+7 (912) 382-35-75
Начать чат с агентом

1-к кв. Тюменская область, Тюмень ул. Ю.-Р.Г. Эрвье, 30к2 (43.5 м)

Продается однокомнатная квартира в ЖК Европейский О КВАРТИРЕ:Общая площадь квартиры — 43,5 м. Комнаты просторные и правильной формы. Кухня — 12 м, санузел совмещенный с ванной — 5,4 м. В проекте предусмотрена застекленная лоджия (3 м) и открытый балкон (чуть меньше) с плиткой. В комнате можно обустроить гардеробную. В квартире сделан косметический ремонт: обои на стенах, ламинат на полу, пластиковые панели в санузле. Вся мебель и техника остаются новым владельцам.О ДОМЕ:- Своя управляющая компания- Видеонаблюдение- Два лифта- Сквозная парадная, ведущая во двор и к наружной части домаО ЛОКАЦИИ:Район полностью развит. Рядом остановка общественного транспорта, позволяющая добраться в любую точку города. В пешей доступности супермаркеты Магнит и Пятерочка , гипермаркет Лента , поликлиника 1. ЖК Европейский микрорайон — это новое качество жизни: дворы без машин, прогулочные бульвары, рестораны, фонтаны, скамейки, многоуровневое освещение и облагороженное озеро с пешеходными и велодорожками. Ландшафтный дизайн включает взрослые деревья, небольшие ели, качели для детей и многоуровневую подсветку домов. Рядом находится небольшой водоем и улица, ведущая к Туре. Инфраструктура микрорайона полностью доступна. Дополнительно оплачивается комиссия с покупателя. Номер объекта: 3950693

Читать полностью

    Для того, чтобы купить однокомнатную квартиру по адресу: Тюмень, ул. Ю.-Р.Г. Эрвье, 30к2, позвоните по телефону +7 (912) 382-35-75. Торопитесь! Объявление №30091580035 о продаже однокомнатной квартиры опубликовано 04 ноября 2025.

    Позвонить Написать
    6 400 000 Р78 790 $ или 68 200
    Агент
    +7 (912) 382-35-75
    Начать чат с агентом
    Похожие предложения
    1-к кв. Тюменская область, Тюмень ул. Ю.-Р.Г. Эрвье, 30к2 (43.5 м) - Фото 1
    1-к кв. Тюменская область, Тюмень ул. Ю.-Р.Г. Эрвье, 30к2 (43.5 м) - Фото 2
    1-комнатная квартира, общая площадь 43м², жилая 19м², кухня 12м²

    Продается однокомнатная квартира в ЖК Европейский общей площадью 43,5 с застекленной лоджией 6м2и открытым балконом, чуть меньше -4,5м2 В квартире косметический ремонт. На стенах обои, на полу ламинат, в санузеле на стенах пластиковые панели . В квартире...
    • 43 м²
    • 1-ком
    • 16/17 эт.
    • монолит
    6 400 000 Р
    Агент
    +7 (984) Показать номер
    Посмотреть контакты
    3-к кв. Тюменская область, Тюмень ул. Николая Чаплина, 125 (60.6 м) - Фото 1
    3-к кв. Тюменская область, Тюмень ул. Николая Чаплина, 125 (60.6 м) - Фото 2
    3-комнатная квартира, общая площадь 60м², кухня 7м²

    Уютная трехкомнатная квартира (расположена на 8-ом этаже 9-ти этажного дома)Без обременений и занижений О ДОМЕ:Год постройки 1987Чистый подъезд Хорошие спокойные соседи, безопасный и уютный район.О КВАРТИРЕ: Квартираочень теплая и светлая ,с интересной...
    • 60 м²
    • 3-ком
    • 8/9 эт.
    • блочный
    6 300 000 Р
    Агент
    +7 (919) Показать номер
    Посмотреть контакты
    2-к кв. Тюменская область, Тюмень Интернациональная ул., 199к8 (51.0 ... - Фото 1
    2-к кв. Тюменская область, Тюмень Интернациональная ул., 199к8 (51.0 ... - Фото 2
    2-комнатная квартира, общая площадь 51м², кухня 9м²

    Предлагаю к продаже двух комнатную квартиру в новом доме в ЖК Авиатор. Площадь 49 кв.м. Просторный санузел вмещает стиральную машину, унитаз, душевую кабину. Комната довольно просторная для проживания одного или двух человек. Окно выходит в охраняемый...
    • 51 м²
    • 2-ком
    • 4/17 эт.
    • монолит
    6 300 000 Р
    Агент
    +7 (912) Показать номер
    Посмотреть контакты
    1-к кв. Тюменская область, Тюмень Пролетарская ул., 111 (44.6 м) - Фото 1
    1-к кв. Тюменская область, Тюмень Пролетарская ул., 111 (44.6 м) - Фото 2
    1-комнатная квартира, общая площадь 44м², кухня 14м²

    Просторная однокомнатная квартира с ремонтом в спокойных тонах При входе вас встретит просторная оборудованная гардеробная, которая позволит вам организовать пространство и освободить комнаты от лишних шкафов. Уютная кухня-гостиная станет настоящим сердцем...
    • 44 м²
    • 1-ком
    • 15/16 эт.
    • кирпичный
    6 500 000 Р
    Агент
    +7 (982) Показать номер
    Посмотреть контакты
    1-к кв. Тюменская область, Тюмень ул. Чернышевского, 2бк12 (41.0 м) - Фото 1
    1-к кв. Тюменская область, Тюмень ул. Чернышевского, 2бк12 (41.0 м) - Фото 2
    1-комнатная квартира, общая площадь 41м², жилая 24м², кухня 11м²

    МАКСИМАЛЬНО БЛИЗКО К ЦЕНТРУ ГОРОДА. В ЦЕНТРЕ ТАКИХ ЦЕН НЕТ ИДЕАЛЬНО ДЛЯ ПРОЖИВАНИЯ ИЛИ СДАЧИ В АРЕНДУ.Стильная, современная 1-комнатная квартира с дизайнерским ремонтом в настоящем КИРПИЧНОМ ДОМЕ 2009 г. постройки. Квартира просторная, с функциональной...
    • 41 м²
    • 1-ком
    • 4/10 эт.
    • кирпичный
    6 300 000 Р
    Агент
    +7 (919) Показать номер
    Посмотреть контакты

    Не нашли подходящего объявления?

    Оставьте заявку, и наши риэлторы подберут квартиру в районе Тюмени

    (0)