4 570 000 Р 56 700 $ или 48 780

Информация о квартире

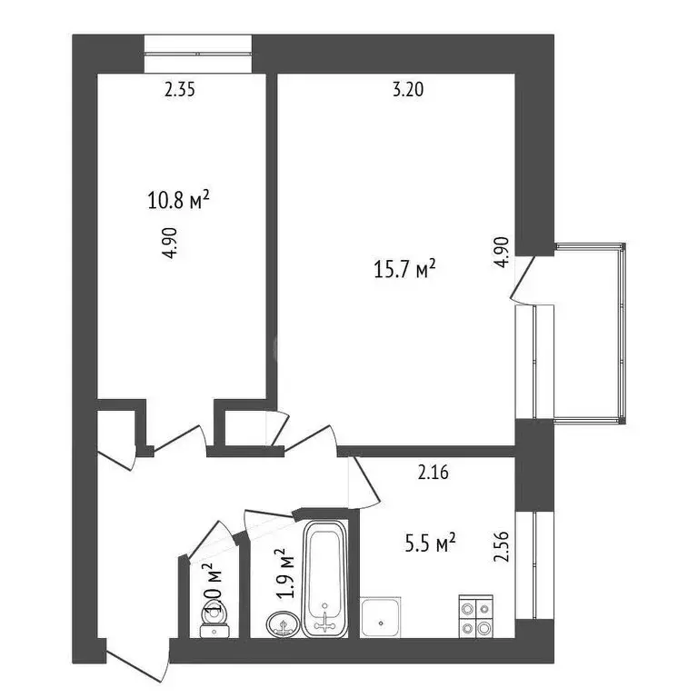
37 м2
Площадь
15 м2
Жилая
13 м2
Кухня
1
Комната
3
Этаж
9
Этажность

Дополнительная информация

Тип дома
кирпичный
Развернуть
Агент
+7 (912) 990-86-13
Начать чат с агентом

1-к кв. Тюменская область, Тюмень Ставропольская ул., 97к1 (37.0 м)

Продам 1 ком квартиру в кирпичном доме, построенном в 2017 году (ЖК Юго-западный). Общая площадь составляет 37 кв.м. Теплая и светлая квартира, с высокими потолками, что обеспечивает дополнительный объем воздуха и создается прекрасный микроклимат. Выход из кухни на застекленный балкон с витражным остеклением, что придает максимальное количество света. Вид из окон во внутрь, во двор - для вас это означает минимум шума и пыли. Квартира расположена на комфортном третьем этаже, можно подняться как на грузопассажирском лифте, так и пешком. Жилой комплекс в городе уникальный, аналогов нет. На первом этаже дома капитальные гаражи, у каждого гаража свои ворота, на втором этаже кладовые помещения. В каждом подъезде велосипедные и колясочные на втором этаже. На площадке от трех до четырех квартир, что придает дополнительный уровень комфорта.Во дворе дома капитальные парковочные места и места под навесом. Детские площадки изолированы от машин и имеют свой надземный переход из дома. Двор закрытый.В квартире сделан ремонт: натяжные потолки с точечными светильниками, санузел полностью под кафель, установлен санфаянс, на стенах обои, на полу линолеум. Состояние - заезжай и живи. Продается без мебели и техники.Район с развитой инфраструктурой, в 5 минутах ходьбы можно дойти до ТРЦ Колумб и Остановочного комплекса. До Центра на общественном транспорте 25 минут езды. До Поликлиники номер 5 - 15 минут пешком. Для любителей прогулок на свежем воздухе неподалеку расположен сквер Комсомольский. Близость объездной дороги обеспечивает прекрасную транспортную развязку в любую часть города, минуя светофоры.Прекрасный вариант для тех, кто хочет жить в КИРПИЧНОМ доме, в районе с развитой инфраструктурой и прекрасной транспортной развязкой. Звоните, смотрите и убедитесь в этом сами P.S.: КВАРТИРА БЕЗ ОБРЕМЕНЕНИЯ, ОДИН ВЗРОСЛЫЙ СОБСТВЕННИК.

Читать полностью

    Для того, чтобы купить однокомнатную квартиру по адресу: Тюмень, ул. Ставропольская, 97к1, позвоните по телефону +7 (912) 990-86-13. Торопитесь! Объявление №30091638673 о продаже однокомнатной квартиры опубликовано Сегодня.

    Позвонить Написать
    4 570 000 Р56 700 $ или 48 780
    Агент
    +7 (912) 990-86-13
    Начать чат с агентом
    Похожие предложения
    1-комнатная квартира: Тюмень, Ставропольская улица, 97к1 (37 м) - Фото 1
    1-комнатная квартира: Тюмень, Ставропольская улица, 97к1 (37 м) - Фото 2
    1-комнатная квартира, общая площадь 37м², жилая 15м², кухня 13м²

    Продам 1 ком квартиру в кирпичном доме, построенном в 2017 году (ЖК Юго-западный). Общая площадь составляет 37 кв.м. Теплая и светлая квартира, с высокими потолками, что обеспечивает дополнительный объем воздуха и создается прекрасный микроклимат. Выход...
    • 37 м²
    • 1-ком
    • 3/9 эт.
    4 590 000 Р
    Агент
    +7 (982) Показать номер
    Посмотреть контакты
    1-к кв. Тюменская область, Тюмень Ставропольская ул., 2 (34.0 м) - Фото 1
    1-к кв. Тюменская область, Тюмень Ставропольская ул., 2 (34.0 м) - Фото 2
    1-комнатная квартира, общая площадь 34м², кухня 9м²

    Продается однокомнатная квартира площадью 34 м, расположенная на 9 этаже . Объект отличается продуманной планировкой и качественной отделкой, что делает его комфортным для проживания. Комната площадью 23 м разделена на две функциональные зоны с помощью...
    • 34 м²
    • 1-ком
    • 9/9 эт.
    • панельный
    4 600 000 Р
    Агент
    +7 (912) Показать номер
    Посмотреть контакты
    1-к кв. Тюменская область, Тюмень Ставропольская ул., 160/1 (39.3 м) - Фото 1
    1-к кв. Тюменская область, Тюмень Ставропольская ул., 160/1 (39.3 м) - Фото 2
    1-комнатная квартира, общая площадь 39м², кухня 14м²

    Уважаемые покупатели Предлагаем уникальную квартиру формата 1+ в жилом комплексе Тесла Парк Эта уютная, светлая и теплая квартира станет идеальным местом для комфортной жизни Просторная кухня-гостиная оборудована кухонным гарнитуром, встроенной техникой....
    • 39 м²
    • 1-ком
    • 11/15 эт.
    • монолит
    4 500 000 Р
    Агент
    +7 (919) Показать номер
    Посмотреть контакты
    1-комнатная квартира: Тюмень, улица 30 лет Победы, 48 (33.6 м) - Фото 1
    1-комнатная квартира: Тюмень, улица 30 лет Победы, 48 (33.6 м) - Фото 2
    1-комнатная квартира, общая площадь 33м², жилая 18м², кухня 10м²

    Продается ухоженная квартира общей площадью 34 кв. м на четвертом этаже. Объект отличается рациональной планировкой с изолированной комнатой 18 кв. м и просторной кухней 10 кв. м. Из комнаты имеется выход на застекленный и благоустроенный балкон. В квартире...
    • 33 м²
    • 1-ком
    • 4/9 эт.
    4 500 000 Р
    Агент
    +7 (986) Показать номер
    Посмотреть контакты
    2-комнатная квартира: Тюмень, Рижская улица, 47 (40.8 м) - Фото 1
    2-комнатная квартира: Тюмень, Рижская улица, 47 (40.8 м) - Фото 2
    2-комнатная квартира, общая площадь 40м², жилая 26м², кухня 5м²

    Квартира площадью 41 м расположена в кирпичном доме в центре Тюмени, что обеспечивает отличную транспортную доступность и развитую инфраструктуру в шаговой доступности. На расстоянии 100 м расположен Тюменский государственный медицинский университет,...
    • 40 м²
    • 2-ком
    • 3/5 эт.
    4 500 000 Р
    Агент
    +7 (988) Показать номер
    Посмотреть контакты

    Не нашли подходящего объявления?

    Оставьте заявку, и наши риэлторы подберут квартиру в районе Тюмени

    (0)