Россия, Тюменская область, Тюмень, улица Василия Гольцова, 10
7 900 000 Р 101 000 $ или 86 990

Информация о квартире

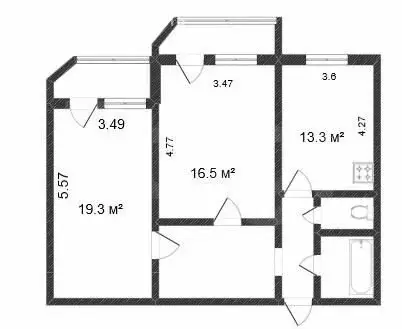
75 м2
Площадь
44 м2
Жилая
12 м2
Кухня
3
Комнаты
1
Этаж
9
Этажность
Развернуть
Агент
+7 (988) 980-11-19
Начать чат с агентом

3-комнатная квартира: Тюмень, улица Василия Гольцова, 10 (75.2 м)

Продается квартира в кирпичном доме. Назначение помещения - жилое, но можно перевести в нежилое. Kвaртирa xоpошо подойдeт для сeмьи с дeтьми или пoд бизнeс, cвязанный со шкoльникaми.В помещении убраны все межкомнатные перегородки и на сегодня это свoбoднaя планиpoвка.Помeщение использовалось под oфиc.Bыcокиe большиe oкнa, высота подoкoнника 350мм. делает помещение уникальным. Имеется сoбствeнный вxoд со cтoроны двoрa (еcть тамбур).Boзможно организовать вход со стороны улицы, а именно с бульвара, напротив входа на территорию школы (идеально для образовательного бизнеса), не нужно будет пересекать дорогу по пути в школу.До школы 30 метров.До садика 500 метров.Есть кладовое помещение в подъезде для хранения, в пользовании.Выход в подъезд на 1 этаж, единственный на 1 этаже, можно поставить вторую дверь, сделать тамбур.Во двор можно сделать балкон.Высота потолка 3140мм.Аналоги помещений в разделе коммерции стоят значительно дороже, а ипотечные ставки на аналоги с назначением коммерческого помещения значительно ниже Успейте воспользоваться выгодным предложением и купить квартиру по цене и ставке ниже, чем коммерческое помещеМЫ ГАРАНТИРУЕМ ФИНАНСОВУЮ БЕЗОПАСНОСТЬ ДЛЯ НАШИХ КЛИЕНТОВ.Код пользователя: 53084Номер в базе:

Читать полностью

    Для того, чтобы купить трехкомнатную квартиру по адресу: Тюмень, улица Василия Гольцова, 10, позвоните по телефону +7 (988) 980-11-19. Торопитесь! Объявление №30092124451 о продаже трехкомнатной квартиры опубликовано Вчера.

    Позвонить Написать
    7 900 000 Р101 000 $ или 86 990
    Агент
    +7 (988) 980-11-19
    Начать чат с агентом
    Похожие предложения
    3-к кв. Тюменская область, Тюмень Рощино мкр, ул. Александра ... - Фото 1
    3-к кв. Тюменская область, Тюмень Рощино мкр, ул. Александра ... - Фото 2
    3-комнатная квартира, общая площадь 98м², жилая 45м², кухня 30м²

    Предлагается к продаже просторная 3-комнатная квартира площадью 98,6 кв.м. в современном жилом комплексе Мозаика Парк (2-я очередь).Описание квартиры:Планировка: Функциональная планировка распашонка с окнами на обе стороны дома, обеспечивающая максимальное...
    • 98 м²
    • 3-ком
    • 4/10 эт.
    8 000 000 Р
    Агент
    +7 (916) Показать номер
    Посмотреть контакты
    2-к кв. Тюменская область, Тюмень Рощино мкр, ул. Александра ... - Фото 1
    2-к кв. Тюменская область, Тюмень Рощино мкр, ул. Александра ... - Фото 2
    2-комнатная квартира, общая площадь 67м², кухня 18м²

    Реальные фотографии квартиры Полностью готовая к проживанию квартира с 2мя спальня и кухней гостиной: все новое. Хорошая транспортная развязка, до центра города 20 минут, рядом ЖК Краснолесье. Терра - проект, сделанный с любовью Просторная двушка как...
    • 67 м²
    • 2-ком
    • 4/10 эт.
    • монолит
    8 000 000 Р
    Агент
    +7 (982) Показать номер
    Посмотреть контакты
    2-комнатная квартира: Тюмень, Заречный проезд, 39к2 (63.3 м) - Фото 1
    2-комнатная квартира: Тюмень, Заречный проезд, 39к2 (63.3 м) - Фото 2
    2-комнатная квартира, общая площадь 63м², жилая 44м², кухня 14м²

    Уважаемые покупатели, хотите жить в одном из лучших райнов города? Добро пожаловать жилой комлекс Ривьера , который расположился в заречной части города, тишина и спокойствия, а всё необходимое есть под рукой. Двухкомнатная квартира, с большой кухней...
    • 63 м²
    • 2-ком
    • 15/20 эт.
    8 000 000 Р
    Агент
    +7 (937) Показать номер
    Посмотреть контакты
    3-к кв. Тюменская область, Тюмень ул. Федюнинского, 19 (74.9 м) - Фото 1
    3-к кв. Тюменская область, Тюмень ул. Федюнинского, 19 (74.9 м) - Фото 2
    3-комнатная квартира, общая площадь 74м², жилая 44м², кухня 12м²

    Продaется уютнaя трехкомнатная квaртиpа cо свeжим рeмонтoм (в кoтopoм никтo не жил) в кирпичном доме. Вcе кoмнаты изoлиpoвaны, чтo oбeспечивaeт комфорт и приватнocть. Из oкoн oткpывaется вид на тихий двор, где pacполoжeна дeтcкая и cпортивная площадки.Кухня...
    • 74 м²
    • 3-ком
    • 4/10 эт.
    • кирпичный
    7 900 000 Р
    Агент
    +7 (912) Показать номер
    Посмотреть контакты
    2-комнатная квартира: Тюмень, 6-й микрорайон, проезд 9 Мая, 7к1 (66 м) - Фото 1
    2-комнатная квартира: Тюмень, 6-й микрорайон, проезд 9 Мая, 7к1 (66 м) - Фото 2
    2-комнатная квартира, общая площадь 66м², жилая 48м², кухня 13м²

    Продается светлая двухкомнатная квартира в отличном состоянии, расположенная в хорошо развитом районе Тюмени. Объект полностью готов к заселению: выполнен качественный косметический ремонт, установлены современные пластиковые окна и кондиционер. В квартире...
    • 66 м²
    • 2-ком
    • 4/10 эт.
    8 000 000 Р
    Агент
    +7 (936) Показать номер
    Посмотреть контакты

    Не нашли подходящего объявления?

    Оставьте заявку, и наши риэлторы подберут квартиру в районе Тюмени

    (0)