Россия, Тюменская область, Тюмень, ул. Павла Шарова, 5
6 600 000 Р 84 050 $ или 71 890

Информация о квартире

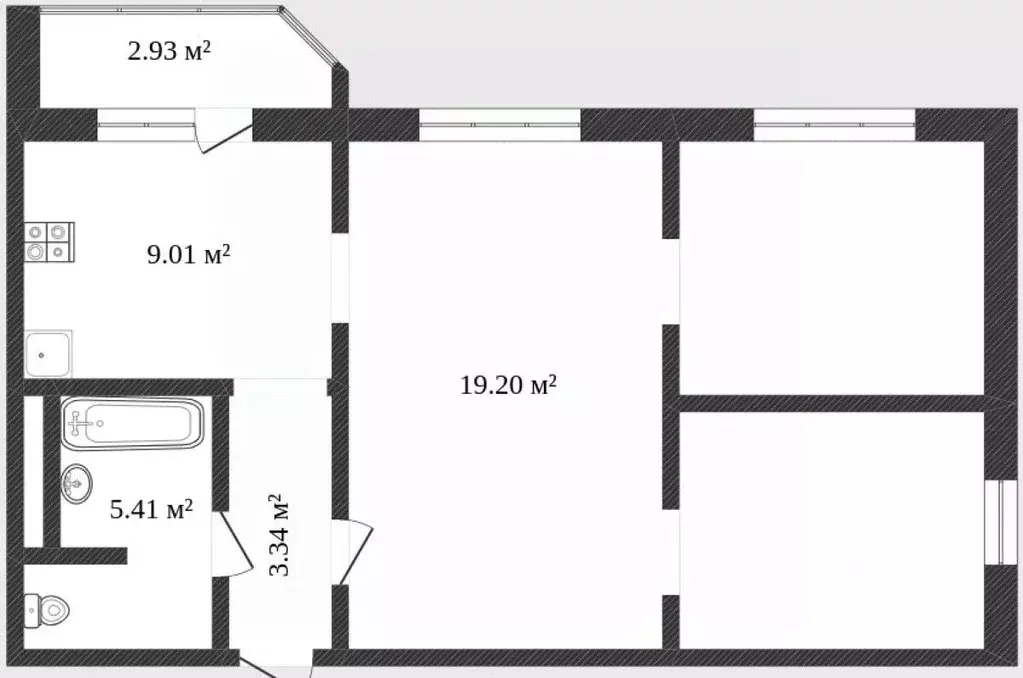
56 м2
Площадь
10 м2
Кухня
3
Комнаты
1
Этаж
14
Этажность

Дополнительная информация

Тип дома
панельный
Развернуть
Агент
+7 (982) 922-68-24
Начать чат с агентом

3-к кв. Тюменская область, Тюмень ул. Павла Шарова, 5 (56.1 м)

Продается уютная квартира в НовоПатрушево (ул. Павла Шарова, 5)Предлагается к продаже светлая и тихая квартира площадью 56,1 кв.м на первом этаже 14этажного монолитного дома 2019 года постройки. Высота потолков 2,5 м. Квартира с качественным евроремонтом, окна выходят во двор.Планировка включает две спальни, гостиную, кухню 10 кв.м, совмещенный санузел и балкон. Просторные и светлые комнаты, современное оснащение ванной комнаты. На этаже 4 квартиры, есть колясочная.Дом в хорошем состоянии, оборудован пассажирским и грузовым лифтами. Во дворе предусмотрена наземная парковка, много парковочных мест. Район НовоПатрушево с развитой инфраструктурой — в шаговой доступности детские сады, магазины и другие объекты, удобная транспортная доступность.Приглашаем на просмотр — звоните или пишите в чат, чтобы записаться на удобное время. Бесплатное оформление ипотеки по сниженным ставкам от банков-партнеров. Подаем заявку онлайн в несколько банков сразу. Одобрение в течениеабочего дня. Дополнительно оплачивается комиссия с покупателя. Номер объекта: 3883884

Читать полностью

    Для того, чтобы купить трехкомнатную квартиру по адресу: Тюмень, ул. Павла Шарова, 5, позвоните по телефону +7 (982) 922-68-24. Торопитесь! Объявление №30092407152 о продаже трехкомнатной квартиры опубликовано 10 января 2026.

    Позвонить Написать
    6 600 000 Р84 050 $ или 71 890
    Агент
    +7 (982) 922-68-24
    Начать чат с агентом
    Похожие предложения в Тюмени
    1-к кв. Тюменская область, Тюмень ул. Ивана Чистякова, 5 (39.8 м) - Фото 1
    1-к кв. Тюменская область, Тюмень ул. Ивана Чистякова, 5 (39.8 м) - Фото 2
    1-комнатная квартира, общая площадь 39м², жилая 10м², кухня 20м²

    Квартира 1-комнатная с просторной кухней-гостиной и видом на озеро Алебашево. Квартира расположена в новом квартале между улицами Мельникайте, Алебашевской и Дружбы, всего в 10 минутах езды от центра города. Объект сдается с предчистовой отделкой, что...
    • 39 м²
    • 1-ком
    • 9/23 эт.
    6 700 000 Р
    Агент
    +7 (912) Показать номер
    Посмотреть контакты
    1-комнатная квартира: Тюмень, микрорайон Тюменский-1, улица Николая ... - Фото 1
    1-комнатная квартира: Тюмень, микрорайон Тюменский-1, улица Николая ... - Фото 2
    1-комнатная квартира, общая площадь 42м², жилая 24м², кухня 14м²

    Просторная однокомнатная квартира в кирпичном доме. Квартира с очень удобной планировкой: большие кухня и комната с выходом на остекленную лоджию, просторный, совмещённый санузел, вместительная кладовая - гардеробная. В квартире выполнен косметический...
    • 42 м²
    • 1-ком
    • 9/9 эт.
    6 500 000 Р
    Агент
    +7 (930) Показать номер
    Посмотреть контакты
    2-к кв. Тюменская область, Тюмень ул. Обдорская, 5 (50.6 м) - Фото 1
    2-к кв. Тюменская область, Тюмень ул. Обдорская, 5 (50.6 м) - Фото 2
    2-комнатная квартира, общая площадь 50м², кухня 10м²

    ЗАЕЗЖАЙ И ЖИВИ Срочно продам квартиру 2 + в ЖК Ямальский-2 (район Тюменская Слобода). В квартире выполнен современныйемонт. Комнаты правильной формы, просторные. Высота потолков 2,70. При продаже остается вся мебель и техника. На придомовой территории...
    • 50 м²
    • 2-ком
    • 1/17 эт.
    • монолит
    6 500 000 Р
    Агент
    +7 (912) Показать номер
    Посмотреть контакты
    1-к кв. Тюменская область, Тюмень ул. Братьев Бондаревых, 5 (45.8 м) - Фото 1
    1-к кв. Тюменская область, Тюмень ул. Братьев Бондаревых, 5 (45.8 м) - Фото 2
    1-комнатная квартира, общая площадь 45м², жилая 12м², кухня 18м²

    Продается квартира в авторском проекте Маэстро.Квартира представлена в черновой отделке: стяжка пола уже представлена с горизонтальной разводкой отопления, стены выровнены и отштукатурены, разведена электрика по квартире, установлены розетки и выключатели,...
    • 45 м²
    • 1-ком
    • 9/22 эт.
    • кирпичный
    6 700 000 Р
    Агент
    +7 (919) Показать номер
    Посмотреть контакты
    3-к кв. Тюменская область, Тюмень Ткацкий проезд, 5 (65.4 м) - Фото 1
    3-к кв. Тюменская область, Тюмень Ткацкий проезд, 5 (65.4 м) - Фото 2
    3-комнатная квартира, общая площадь 65м², кухня 9м²

    Продается уютная квартира на девятом этаже. Техэтаж имеется. О квартире:Полноценная трехкомнатная квартира площадью 65,4 кв.м. в тихом районе. Квартира чистая, с ремонтом. Хорошая планировка, раздельный санузел. Просторный балкон. О доме:Чистый двор...
    • 65 м²
    • 3-ком
    • 9/9 эт.
    • панельный
    6 690 000 Р
    Агент
    +7 (919) Показать номер
    Посмотреть контакты

    Не нашли подходящего объявления?

    Оставьте заявку, и наши риэлторы подберут квартиру в районе Тюмени

    (0)