Россия, Тюменская область, Тюмень, улица Новосёлов, 109

Реализация объекта недвижимости приостановлена

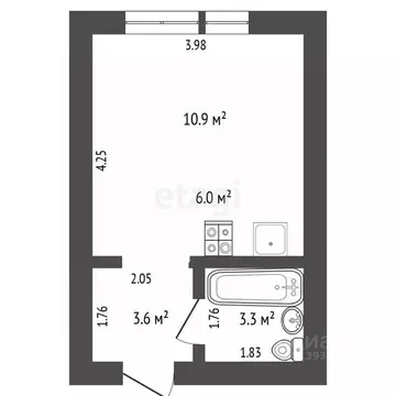
Информация о квартире

19.0 м2
Площадь
11.0 м2
Жилая
студия
Комнат
13
Этаж
15
Этажность
Развернуть

Квартира-студия: Тюмень, улица Новосёлов, 109 (19.5 м)

ПРОДАМ студию 19,5 м2+ 3,5м2 лоджия в новом ЖК Ленинград.Срочнейшая продажа по максимально выгодной цене.Наша студия с идеальным ремонтом, использован керамогранит,полный ремонт в санузле и сделан балкон САМАЯ ЛУЧШАЯ ЦЕНА вэтом доме Монолитно- каркасный дом 2022 года постройки САМАЯ НИЗКАЯ ЦЕНА В ДОМЕ Во дворе детский сад и много парковочных мест,как по бокам,так и сзади дома С обратной стороны дома Страна Домашний растет на глазах. В квартире качественный ремонт:керамогранит,дорогая сантехника,отделанный балкон,натяжной потолок+много светильников,озеток,даже есть подсветка на потолке для нежной передачи цвета красивенных штор.Площадь : -23м2 вместе с лоджией;-2,85* 1,2-коридор;-2,1*1,74-совмещенный санузел;-3,218*1,16-лоджия с ремонтом.Размеры входного проема расширены-2,042 *0,95.на балконе от пола до подоконника 1,206, а сами окна под самый потолок.Квартира оооочень жаркая,на большой батарее установлен терморегулятор.В этом районе есть все,что необходимо для жизни: напротив подьезда- детский сад Счастливое детство ,по соседству еще один садик. Рядом с ЖК построена большая школа,через 2дома ваш ребенок,не пересекая дорог окажется в ней.Рядом находится остановка. от ЖК Плеханово идти 3 дома и вы на месте,на автобусе в город 20 минут езды.Рядом с домом много мелких магазинов,аптеки,недалеко ТЦ Колумб. В ЖК более 50-ти обьектов торговли. Для детей оборудована игровая площадка с качелями,горками и песочницей. Любителям спорта понравится зона с уличными тренажерами ,велосипедной дорожкой и workout-площадкой. Использованы качественные материалы,например стены выровнены финишной шпаклевкой Sheetrok,наклеены моющиеся фактурные флизелиновые обои с рисунком натуральной ткани,трубы армирование,ламинат 33 класса,сантехника из профессионального магазина,разводка электрики выполнена профессионалами и грамотно логически. Счетчик поднят выше,вы сможете прекрасно установить шкаф. Пол между коридором и санузлом-сглажен,без выступов.Дверь в ванной с магнитным замком. Отделка откосов входной двери сочетается с дверным проемом в ванную и плинтусами как на полу,так и на потолке. Очень стильно.Никто не жил,квартира ждала вашего просмотра.Приглашаю на просмотр и сделку по квартире Документы собраны и проверены юристами. 1 взрослый собственник. В течении 1 дня готовы выйти на сделку МЫ ГАРАНТИРУЕМ ФИНАНСОВУЮ БЕЗОПАСНОСТЬ ДЛЯ НАШИХ КЛИЕНТОВ.Код пользователя: 133913Номер в базе:

Читать полностью

    Реализация объекта недвижимости приостановлена

    Не нашли подходящего объявления?

    Оставьте заявку, и наши риэлторы подберут квартиру в районе Тюмени

    (0)