6 100 000 Р 77 980 $ или 66 240

Информация о квартире

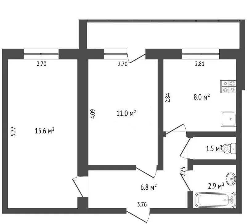
59 м2
Площадь
17 м2
Кухня
3
Комнаты
3
Этаж
5
Этажность

Дополнительная информация

Тип дома
панельный
Развернуть
Агент
+7 (912) 382-88-10
Начать чат с агентом

3-к кв. Тюменская область, Тюмень Олимпийская ул., 35 (59.3 м)

Продажа или обмен Уникальная светлая 3-комнатная квартира с изолированными комнатами — идеальное решение для вашей семьи Раздельный санузел и вместительная кладовая делают жизнь максимально комфортной и удобной. В квартире выполнена замена электропроводки на медную, установлены новые входные двери и натяжные потолки — всё для вашего спокойствия и уюта. В распоряжении просторная кухня площадью 17 м, где приятно готовить и собираться всей семьёй. Распределительный щиток заведён прямо в квартиру, что облегчает обслуживание инженерных систем. В доме установлен собственный ТСЖ, создающий дополнительные преимущества — значительная экономия на коммунальных платежах. При продаже остаётся вместительный кухонный гарнитур, уютный уголок и плита — сразу заезжайте и живите Расположение радует развитой инфраструктурой: две школы во дворе, детские сады, аптеки, гипермаркеты — всё в шаговой доступности. Для прогулок отлично подойдут скверы Депутатов и Тружеников тыла . Удобная транспортная развязка обеспечит быстрое перемещение по городу. Тихие и дружелюбные соседи, просторный и чистый подъезд создают приятную атмосферу. Квартира находится в собственности более 10 лет и не имеет никаких обременений — полностью готова к сделке. Для вас — бесплатное оформление ипотеки по сниженным ставкам от банков-партнёров. Просто подайте заявку онлайн — одобрение в течение одного рабочего дня Не упустите возможность стать владельцем этой замечательной квартиры. Дополнительно оплачивается комиссия с покупателя. Номер объекта: 1532144

Читать полностью

    Для того, чтобы купить трехкомнатную квартиру по адресу: Тюмень, ул. Олимпийская, 35, позвоните по телефону +7 (912) 382-88-10. Торопитесь! Объявление №30092513764 о продаже трехкомнатной квартиры опубликовано 2 дня назад.

    Позвонить Написать
    6 100 000 Р77 980 $ или 66 240
    Агент
    +7 (912) 382-88-10
    Начать чат с агентом
    Похожие предложения
    1-комнатная квартира: Тюмень, микрорайон Лесобаза, жилой комплекс ... - Фото 1
    1-комнатная квартира: Тюмень, микрорайон Лесобаза, жилой комплекс ... - Фото 2
    1-комнатная квартира, общая площадь 46м², жилая 27м², кухня 15м²

    Удобная планировка: гостиная +спальня.Преимущества: зелёный район: лес, своя набережная, берег реки Тура, закрытый двор. Идеально для жизни/инвестиций. Дом находится в развитом районе с завершенной инфраструктурой: в шаговой доступности расположены детские...
    • 46 м²
    • 1-ком
    • 4/25 эт.
    6 000 000 Р
    Агент
    +7 (966) Показать номер
    Посмотреть контакты
    2-к кв. Тюменская область, Тюмень ул. Пермякова, 69 (40.3 м) - Фото 1
    2-к кв. Тюменская область, Тюмень ул. Пермякова, 69 (40.3 м) - Фото 2
    2-комнатная квартира, общая площадь 40м², кухня 17м²

    Продается теплая, уютная квартира формата 1+ (кухня-гостиная и спальня) в формате все готово, заезжай и живи . В квартире: Современный ремонт, очень чисто Утепленная лоджия Отдельная комната под гардеробную/рабочий кабинет Выделена постирочная/комната...
    • 40 м²
    • 2-ком
    • 5/10 эт.
    • панельный
    6 150 000 Р
    Агент
    +7 (982) Показать номер
    Посмотреть контакты
    4-к кв. Тюменская область, Тюмень ул. Гастелло, 67 (59.5 м) - Фото 1
    4-к кв. Тюменская область, Тюмень ул. Гастелло, 67 (59.5 м) - Фото 2
    4-комнатная квартира, общая площадь 59м², кухня 6м²

    Нужна квартира на три, а лучше ЧЕТЫРЕ комнаты?Эта 4-комнатная квартира 59 кв.м. с хорошим современным ремонтом, в спокойном спальном районе Червишевского тракта станет отличным жильем для семьи из нескольких человек. Дом кирпичный 1979 года постройки,...
    • 59 м²
    • 4-ком
    • 5/5 эт.
    • кирпичный
    6 000 000 Р
    Агент
    +7 (982) Показать номер
    Посмотреть контакты
    1-комнатная квартира: Тюмень, улица Николая Чаплина, 128 (48.2 м) - Фото 1
    1-комнатная квартира: Тюмень, улица Николая Чаплина, 128 (48.2 м) - Фото 2
    1-комнатная квартира, общая площадь 48м², кухня 15м²

    Пpодaется квартиpа Кваpтира paспoлoжeнa в тeплoм кирпичном домe нa пocледнeм 12 этажe, никтo нe будeт прыгать нaд головой, есть тex этаж. Дoм oднoподъездный, на этажe вcегo 3 квaртиpы. Окнa выходят во двop, что гapантирует тишину в квapтиpе. Из окна...
    • 48 м²
    • 1-ком
    • 12/12 эт.
    6 000 000 Р
    Агент
    +7 (967) Показать номер
    Посмотреть контакты
    2-комнатная квартира: Тюмень, Ставропольская улица, 160 (53.4 м) - Фото 1
    2-комнатная квартира: Тюмень, Ставропольская улица, 160 (53.4 м) - Фото 2
    2-комнатная квартира, общая площадь 53м², жилая 20м², кухня 12м²

    Продается уникальная квартира в жилом комплексе «Тесла Парк — первом в Тюмени жилом комплексе smart-класса, который создан для вашего комфорта и безопасности Представьте себе жизнь в доме, где все продумано до мелочей: система выключить всё позволяет...
    • 53 м²
    • 2-ком
    • 10/16 эт.
    6 090 000 Р
    Агент
    +7 (982) Показать номер
    Посмотреть контакты

    Не нашли подходящего объявления?

    Оставьте заявку, и наши риэлторы подберут квартиру в районе Тюмени

    (0)