Россия, Тюменская область, Тюмень, Краснооктябрьская улица, 4

Реализация объекта недвижимости приостановлена

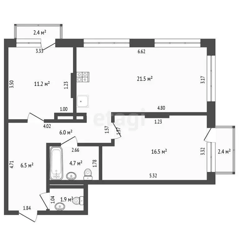
Информация о квартире

68.0 м2
Площадь
41.0 м2
Жилая
22.0 м2
Кухня
2
Комнаты
12
Этаж
17
Этажность
Развернуть

2-комнатная квартира: Тюмень, Краснооктябрьская улица, 4 (68.1 м)

Представьте себе жизнь в современной квартире формата 2+ в ЖК Октябрьский на Туре Это не просто квартира, это ваш личный оазис комфорта в динамичном районе Тюмени. Самые живописные и зеленые дворы - именно здесь О квартире, где рождаются счастливые воспоминания:• Простор и уют: 68,1 кв.м. грамотно спланированного пространства, где каждый член семьи найдет свой уголок.• Кухня-гостиная 22м2 – сердце дома: Здесь вы будете собираться всей семьей, устраивать вечеринки с друзьями и наслаждаться моментами тепла и близости.• Балкон с видом на реку Тура: Начните день с чашечки ароматного кофе, любуясь живописными видами.• Две изолированные комнаты – идеальный вариант: У каждого члена семьи своё личное пространство • Ваш холст для творчества: Улучшенная отделка wite box– это возможность создать интерьер вашей мечты, воплотив в жизнь самые смелые дизайнерские идеи.За дополнительную оплату вместе с квартирой можем вам предложить кладовку и парковочное место в паркинге.Район, где все под рукой:• ЖК Октябрьский на Туре в районе ДОК: Развитая инфраструктура, близость к историческому центру и все необходимое для комфортной жизни.• Образование и бизнес рядом: Два корпуса ТИУ, бизнес-центр «Панорама , школа №38, детский сад и колледж – все в ближайшей доступности.• Активный образ жизни: Детско-юношеский центр «Радуга и живописный парк – идеальное место для прогулок и занятий спортом.• Близость к сердцу города: Всего 7 минут на машине или 20 минут на общественном транспорте, и вы на набережной, наслаждаясь атмосферой и прекрасными видами.Надежность и качество от Брусники :• Репутация, которой можно доверять: Брусника – застройщик, известный своим вниманием к деталям, качеству строительства и созданию комфортной среды для жизни.• Жизнь на берегу Туры: Представьте себе дом у самой реки Живописные виды, свежий воздух и возможность наслаждаться природой прямо у порога.• Ваш ежедневный ритуал: Вечерние прогулки и утренние пробежки вдоль реки – это гармония, спокойствие и заряд энергии на весь день.Не откладывайте свою мечту Позвоните прямо сейчас, и я с удовольствием расскажу вам больше об этой прекрасной квартире и организую просмотр Эта квартира ждет именно вас МЫ ГАРАНТИРУЕМ ФИНАНСОВУЮ БЕЗОПАСНОСТЬ ДЛЯ НАШИХ КЛИЕНТОВ.Код пользователя: 69872Номер в базе:

Читать полностью

    Реализация объекта недвижимости приостановлена

    Не нашли подходящего объявления?

    Оставьте заявку, и наши риэлторы подберут квартиру в районе Тюмени

    (0)