Реализация объекта недвижимости приостановлена

Информация о квартире

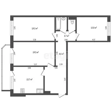
77.0 м2
Площадь
34.0 м2
Жилая
19.0 м2
Кухня
3
Комнаты
9
Этаж
21
Этажность
Развернуть

3-комнатная квартира: Тюмень, Ленинский округ, ЖК Беринг (77.91 м)

Apт.2316312. Трехкомнатная квартира от застройщика с предчистовой отделкой в ЖК Беринг на 9 этаже. Общая площадь: 77.91 кв.м., жилая: 34.78 кв.м., площадь просторной кухни-столовой: 19.45 кв.м. Комнаты изолированные, все окна выходят на одну сторону. В квартире одна лоджия, два совмещенных санузла. Высота потолков 2.75 м. Дом монолитный, многоподъездный, переменной этажности, от 9 до 21 этажей. Квартира находится в 3-й секции высотой 9 этажей в корпусе ГП-74. На этаже 7 квартир. В подъезде 1 грузовой лифт. Окончание строительства - 4 квартал 2025 года. Оформление сделки по договору долевого участия. Подобно знаменитому исследователю, мы чувствуем себя первооткрывателями этой локации. Хотим показать новую суть места, сформировать для вас жизненный опыт, которого ещё не было. Беринг — район зелёного цвета. Беринг — район, который откроется вам с другой стороны. Впечатлит новым уровнем комфорта и качеством жизни. Беринг — открытие на карте города. Первый квартал расположен в районе Тура, в границах улиц: Камчатская – Западносибирская – Энтузиастов. Вокруг уже есть всё для того, чтобы ежедневная рутина была лишь частью жизни и не доставляла дискомфорта.Школы и детские сады, магазины и аптеки, поликлиника, места для семейного отдыха, пеших и велопрогулок, и даже рыбалки. Масштабное озеленение дворов — визитная карточка ЭНКО и ваш оазис спокойствия, чтобы отвлечься от повседневности. Раскидистые деревья, кустарники, травы и цветы — осталось остановиться, вдохнуть и расслабиться, глядя на эту природную красоту. Стилистика подъездов продолжает концепцию Беринга, вдохновлённого Камчаткой: сдержанный,но при этом впечатляющий дизайн соседствует с удобством и функциональностью.

Читать полностью

    Реализация объекта недвижимости приостановлена

    Не нашли подходящего объявления?

    Оставьте заявку, и наши риэлторы подберут квартиру в районе Тюмени

    (0)