4 900 000 Р 63 020 $ или 54 350

Информация о квартире

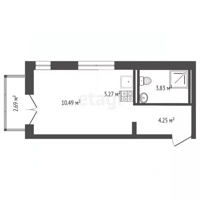
26 м2
Площадь
5 м2
Кухня
студия
Комнат
4
Этаж
10
Этажность

Дополнительная информация

Тип дома
монолит
Развернуть
Агент
+7 (919) 940-88-92
Начать чат с агентом

Студия Тюменская область, Тюмень ул. Газовиков, 38к2 (26.53 м)

Продается великолепная студия в одном из самых привлекательных районов Тюмени с развитой инфраструктурой Это идеальное место для комфортной жизни всего в 5 минутах от центра города. Удобная планировка студии позволяет легко зонировать пространство под ваши индивидуальные нужды. Просторная комната правильной квадратной формы обеспечит вам максимальную функциональность. Балкон станет вашим личным уголком для утреннего кофе или романтического вечера под звездами.Дополнительные преимущества включают нишу под гардеробную, что позволит вам хранить вещи аккуратно и удобно. Большой санузел обеспечит комфорт и свободу в повседневной жизни. Высота потолков 2.74 м создает ощущение простора и света, наполняя каждый уголок уютом.Современные технологии, такие как горизонтальная разводка отопления и система телеметрии, позволят вам контролировать расходы на коммунальные услуги в реальном времени. Большие подъезды с прозрачной входной группой обеспечивают безопасность и стиль, а отделка общих зон выполнена дизайнерами с любовью и вкусом.Для вашего удобства предусмотрены велосипедные и колясочные, а бесшумные лифты создают максимальный комфорт для жителей. Не упустите уникальную возможность стать владельцем этой замечательной студии Звоните прямо сейчас, чтобы записаться на просмотр и сделать первый шаг к вашей новой жизни МЫ ГАРАНТИРУЕМ ФИНАНСОВУЮ БЕЗОПАСНОСТЬ ДЛЯ НАШИХ КЛИЕНТОВ.Код пользователя: 20553Номер в базе: 3791030

Читать полностью

    Для того, чтобы купить студию по адресу: Тюмень, ул. Газовиков, 38к2, позвоните по телефону +7 (919) 940-88-92. Торопитесь! Объявление №30092717566 о продаже студии опубликовано 11 января 2026.

    Позвонить Написать
    4 900 000 Р63 020 $ или 54 350
    Агент
    +7 (919) 940-88-92
    Начать чат с агентом
    Похожие предложения
    Студия Тюменская область, Тюмень ул. Газовиков, 38к2 (20.5 м) - Фото 1
    Студия Тюменская область, Тюмень ул. Газовиков, 38к2 (20.5 м) - Фото 2
    студия, общая площадь 20м², кухня 5м²

    Продается уникальная студия с современным ремонтом в развивающемся районе Тюмени Это идеальное место для тех, кто ценит комфорт и удобство городской жизни. Всего в 10 минутах от центра города, вы сможете наслаждаться всеми преимуществами городской инфраструктуры:...
    • 20 м²
    • студия-ком
    • 2/10 эт.
    • монолит
    4 990 000 Р
    Агент
    +7 (919) Показать номер
    Посмотреть контакты
    Свободной планировки кв. Тюменская область, Тюмень ул. Газовиков, 25 ... - Фото 1
    Свободной планировки кв. Тюменская область, Тюмень ул. Газовиков, 25 ... - Фото 2
    общая площадь 65м²

    Данные получены с сайта ГИС Торги.Должник: Орлова Е.Н., собственник: Орлова Е.Н. Лот: Жилое помещение (квартира), площадь 65,3 кв. м., кадастровый номер: 72:23:0110001:11498, г. Тюмень, ул. Газовиков, д. 25, кв. 41, (зарегистрированные лица отсутствуют,...
    • 65 м²
    • 1/9 эт.
    4 887 415 Р
    Агент
    +7 (912) Показать номер
    Посмотреть контакты
    общая площадь 65м²

    Данные в объявлении обновляются раз в сутки. Подробные параметры объекта, актуальные данные и НДС посмотрите на сайте электронных торгов.
    • 65 м²
    • 1/10 эт.
    4 887 415 Р
    Агент
    +7 (919) Показать номер
    Посмотреть контакты
    3-к кв. Тюменская область, Тюмень ул. Газовиков, 6 (59.9 м) - Фото 1
    3-к кв. Тюменская область, Тюмень ул. Газовиков, 6 (59.9 м) - Фото 2
    3-комнатная квартира, общая площадь 59м², кухня 8м²

    Уважаемые покупатели Вашему вниманию предлагаю трехкомнатную квартиру в хорошем развитом районе. Квартира площадью 59,9 м2. В которой 3 отдельных комнаты - 9,8 м2, 14,3 м2, 12,9м2. Кухня - 8,9 м2. Большая застекленная лоджия 7 м2. Окна в квартире выходят...
    • 59 м²
    • 3-ком
    • 9/9 эт.
    • кирпичный
    4 800 000 Р
    Агент
    +7 (982) Показать номер
    Посмотреть контакты
    1-к кв. Тюменская область, Тюмень Широтная ул., 168 (47.0 м) - Фото 1
    1-к кв. Тюменская область, Тюмень Широтная ул., 168 (47.0 м) - Фото 2
    1-комнатная квартира, общая площадь 47м², кухня 14м²

    Однокомнатная квартира-распашонка с приятным ремонтом площадью 47 кв.м . с великолепной кухней-гостиной в 14,4 квадратов в новом доме. Микрорайон Юбилейный (застройщик ТДСК). Удобная функциональная планировка. В комнатах на стенах - качественные обои,...
    • 47 м²
    • 1-ком
    • 1/14 эт.
    • панельный
    4 800 000 Р
    Агент
    +7 (982) Показать номер
    Посмотреть контакты

    Не нашли подходящего объявления?

    Оставьте заявку, и наши риэлторы подберут квартиру в районе Тюмени

    (0)