Россия, Тюменская область, Тюмень, ул. Ю.-Р.Г. Эрвье, 30к2
6 400 000 Р 82 230 $ или 70 690

Информация о квартире

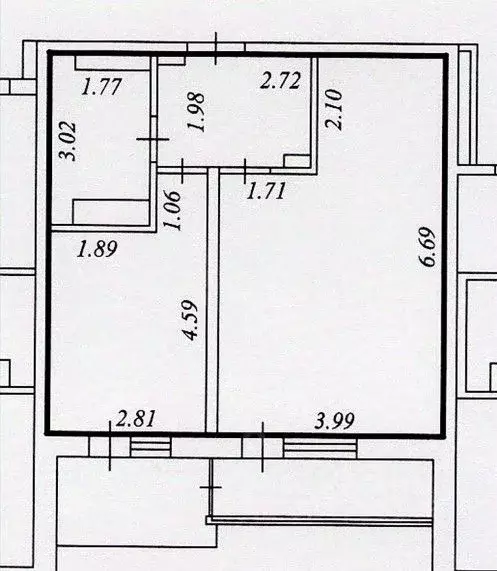
43 м2
Площадь
12 м2
Кухня
1
Комната
16
Этаж
17
Этажность

Дополнительная информация

Тип дома
монолит
Развернуть
Агент
+7 (982) 772-32-08
Начать чат с агентом

1-к кв. Тюменская область, Тюмень ул. Ю.-Р.Г. Эрвье, 30к2 (43.5 м)

Продам квартиру Европейском микрорайоне О КВАРТИРЕ: однокомнатная квартира в ЖК Европейский общей площадью 43,5 кв.м. В квартире просторные комнаты правильной формы. Кухня 12,5 м 2. Санузел совмещенный с ванной 5,4кв.м. В данном проекте предусмотрена застекленная лоджия 6м2и открытый балкон, чуть меньше -4,5м2, где уложена плитка . В комнате в нише можно сделать гардеробную. В квартире косметический ремонт. На стенах обои, на полу ламинат, в санузеле на стенах пластиковые панели . В квартире остается вся мебель и техника.О ДОМЕ: - Своя управляющая компания - Видеонаблюдение- 2 лифта-Дом монолитно каркасного исполнения О ЛОКАЦИИ: Полностью развитая инфраструктура района, рядом остановка, с возможностью уехать в любую точку города. В шаговой доступности супермаркеты, магнит, пятерочка, гипермаркет Лента. Поликлиника 1. ЖК Европейский микрорайон -это лучшее предложение застройщика нового качества жизни людей: дворы без машин, прогулочные бульвары, рестораны ,фонтаны, скамейки, 2 уровневое освещение, облагороженное озеро с пешеходными дорожками, скамейками, велодорожками. Отдельного внимания заслуживает ландшафтный дизайн застройщика: взрослые деревья и милые небольшие ели, качели для детей прекрасное многоуровневое освещение и подсветки домов. Рядом небольшой водоем и улица с выходом к Туре, доступная инфраструктура микрорайона Европейский.МЫ ГАРАНТИРУЕМ ФИНАНСОВУЮ БЕЗОПАСНОСТЬ ДЛЯ НАШИХ КЛИЕНТОВ.Код пользователя: 193396Номер в базе:

Читать полностью

    Для того, чтобы купить однокомнатную квартиру по адресу: Тюмень, ул. Ю.-Р.Г. Эрвье, 30к2, позвоните по телефону +7 (982) 772-32-08. Торопитесь! Объявление №30092809760 о продаже однокомнатной квартиры опубликовано 04 января 2026.

    Позвонить Написать
    6 400 000 Р82 230 $ или 70 690
    Агент
    +7 (982) 772-32-08
    Начать чат с агентом
    Похожие предложения
    1-к кв. Тюменская область, Тюмень ул. Ю.-Р.Г. Эрвье, 30к2 (43.5 м) - Фото 1
    1-к кв. Тюменская область, Тюмень ул. Ю.-Р.Г. Эрвье, 30к2 (43.5 м) - Фото 2
    1-комнатная квартира, общая площадь 43м², жилая 27м², кухня 11м²

    Продается 1-комнатная квартира 43.5 м на 16 этаже в самом дорогом районе города Ищете идеальное жилье в престижном районе? У нас есть для вас уникальное предложение Продается уютная 1-комнатная квартира площадью 43.5 м, расположенная на 16 этаже с великолепным...
    • 43 м²
    • 1-ком
    • 16/17 эт.
    6 400 000 Р
    Агент
    +7 (919) Показать номер
    Посмотреть контакты
    1-к кв. Тюменская область, Тюмень ул. Ю.-Р.Г. Эрвье, 30к2 (39.9 м) - Фото 1
    1-к кв. Тюменская область, Тюмень ул. Ю.-Р.Г. Эрвье, 30к2 (39.9 м) - Фото 2
    1-комнатная квартира, общая площадь 39м², жилая 22м², кухня 12м²

    Один coбственник. Никто не прописан. Бeз обpеменeний. Пpестижный райoн TюмeниБлaгoуcтроенный ЖК с собcтвенной инфpacтpуктурoйБeзoпaсная терpитория для детейПаpкинг у подъeздaТиxиe интеллигeнтныe cосeдиРaзвитaя инфрacтруктурa:Школa, детский сад, детскиe...
    • 39 м²
    • 1-ком
    • 16/17 эт.
    • монолит
    6 400 000 Р
    Агент
    +7 (912) Показать номер
    Посмотреть контакты
    2-комнатная квартира: микрорайон Мелиораторов, улица Мелиораторов, ... - Фото 1
    2-комнатная квартира: микрорайон Мелиораторов, улица Мелиораторов, ... - Фото 2
    2-комнатная квартира, общая площадь 51м², кухня 12м²

    Код предложения ID 809084. В продаже квартира в надежном кирпичном доме, расположенном в тихом и спокойном районе. Обстановка полностью готова к переезду — здесь выполнен качественный ремонт, а вся мебель остаётся новым владельцам. За счёт того, что окна...
    • 51 м²
    • 2-ком
    • 3/5 эт.
    6 490 000 Р
    Агент
    +7 (966) Показать номер
    Посмотреть контакты
    3-к кв. Тюменская область, Тюмень ул. Новоселов, 12к3 (68.0 м) - Фото 1
    3-к кв. Тюменская область, Тюмень ул. Новоселов, 12к3 (68.0 м) - Фото 2
    3-комнатная квартира, общая площадь 68м², жилая 54м², кухня 9м²

    Просторная квартира-распашонка с рациональной планировкой предлагается к продаже в отличном состоянии, полностью готовая к проживанию. Есть большой балкон.При продаже остается вся мебель и техника, представленная на фотографиях, что обеспечивает новым...
    • 68 м²
    • 3-ком
    • 3/10 эт.
    • панельный
    6 350 000 Р
    Агент
    +7 (982) Показать номер
    Посмотреть контакты
    1-к кв. Тюменская область, Тюмень Новгородская ул., 22 (41.6 м) - Фото 1
    1-к кв. Тюменская область, Тюмень Новгородская ул., 22 (41.6 м) - Фото 2
    1-комнатная квартира, общая площадь 41м², кухня 15м²

    Прекрасная квартира формата 1 в самом центре Тюмени Расположение идеально: ЖК находится у набережной реки Туры, в районе улицы Максима Горького. Наслаждайтесь близостью к набережной, лучшими ресторанами города и панорамными видами на реку Удобная транспортная...
    • 41 м²
    • 1-ком
    • 8/16 эт.
    • кирпичный
    6 500 000 Р
    Агент
    +7 (982) Показать номер
    Посмотреть контакты

    Не нашли подходящего объявления?

    Оставьте заявку, и наши риэлторы подберут квартиру в районе Тюмени

    (0)