Россия, Тюменская область, Тюмень, ул. Суходольская, 16
5 700 000 Р 73 230 $ или 62 960

Информация о квартире

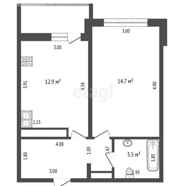
42 м2
Площадь
17 м2
Кухня
1
Комната
7
Этаж
16
Этажность

Дополнительная информация

Тип дома
монолит
Развернуть
Агент
+7 (982) 929-80-65
Начать чат с агентом

1-к кв. Тюменская область, Тюмень ул. Суходольская, 16 (42.6 м)

Продается великолепная 1-комнатная квартира с современным, свежим ремонтом в доме 2012 года постройки по адресу: суходольская 16 Эта квартира — идеальный выбор для тех, кто ценит комфорт и стиль. Просторная планировка формата 1+ включает уютную кухню-гостиную, где вы сможете проводить время с семьей и друзьями, а также наслаждаться шикарным видом с высокого этажа.Квартира светлая и теплая, с продуманной функциональной планировкой. Просторная прихожая-холл , а уютная кухня-гостиная с выходом на остекленную лоджию площадью создаст атмосферу уюта и комфорта. Спальня правильной формы и санузел с современной сантехникой обеспечивают максимальное удобство.Находясь на комфортном седьмом этаже, вы сможете наслаждаться тишиной и спокойствием, так как окна выходят в благоустроенный двор. Высокие потолки 2,7 м добавляют пространству света. Двор оборудован современными спортивными площадками: двумя футбольными и баскетбольным полями, а также тренажерами — идеальное место для активного отдыха Расположение квартиры просто великолепно В шаговой доступности находятся детский сад 125 и школа 92, а также крупные торговые центры, такие как ТРЦ Остров и ТЦ Пять звезд . Здесь вы найдете все необходимое: магазины, медицинские и развивающие центры, аптеки и автошколы. Отличная транспортная развязка позволит вам легко добраться в любую точку города.Не упустите шанс стать владельцем этой замечательной квартиры, которая идеально подойдет как для проживания, так и для сдачи в аренду. Мы готовы к быстрой сделке и приглашаем вас на просмотр Эта квартира ждет именно вас МЫ ГАРАНТИРУЕМ ФИНАНСОВУЮ БЕЗОПАСНОСТЬ ДЛЯ НАШИХ КЛИЕНТОВ.Код пользователя: 61228Номер в базе: 7647723

Читать полностью

    Для того, чтобы купить однокомнатную квартиру по адресу: Тюмень, ул. Суходольская, 16, позвоните по телефону +7 (982) 929-80-65. Торопитесь! Объявление №30093010349 о продаже однокомнатной квартиры опубликовано Вчера.

    Позвонить Написать
    5 700 000 Р73 230 $ или 62 960
    Агент
    +7 (982) 929-80-65
    Начать чат с агентом
    Похожие предложения
    1-к кв. Тюменская область, Тюмень ул. Александра Протозанова, 16 (39.0 ... - Фото 1
    1-к кв. Тюменская область, Тюмень ул. Александра Протозанова, 16 (39.0 ... - Фото 2
    1-комнатная квартира, общая площадь 39м², жилая 16м², кухня 12м²

    Продам квартиру, с хорошим ремонтом, в новом микрорайоне ПРЕОБРАЖЕНСКИЙ.. В одном из самых востребованных районах города. Двор, под видеонаблюдением. На территории прекрасные детские и взрослые, спортивные, площадки. . Баскетбольное поле.: В шаговой...
    • 39 м²
    • 1-ком
    • 5/16 эт.
    • монолит
    5 757 000 Р
    Агент
    +7 (916) Показать номер
    Посмотреть контакты
    1-комнатная квартира: Тюмень, улица Александра Протозанова, 16 (39 м) - Фото 1
    1-комнатная квартира: Тюмень, улица Александра Протозанова, 16 (39 м) - Фото 2
    1-комнатная квартира, общая площадь 39м², жилая 21м², кухня 13м²

    Современный жилой комплекс Преображенский , просторная 1-комнатная квартира с косметическим ремонтом, не требует дополнительных финансовых вложений, при продаже остается вся мебель и бытовая техника, что на фото, отличный вариант, чтобы сразу заехать...
    • 39 м²
    • 1-ком
    • 5/16 эт.
    5 750 000 Р
    Агент
    +7 (934) Показать номер
    Посмотреть контакты
    2-комнатная квартира: Тюмень, Депутатская улица, 129 (52 м) - Фото 1
    2-комнатная квартира: Тюмень, Депутатская улица, 129 (52 м) - Фото 2
    2-комнатная квартира, общая площадь 52м², жилая 30м², кухня 9м²

    2 ком. квартира в кирпичном доме, в районе ТЦ ЮЖНЫЙ. Заменены все окна, система отопления, новые двери ( входные и межкомнатные). Натяжные потолки, зонированная подсветка. На полу ламинат, в кухне на стене плитка. Большая лоджия с панорамным окном....
    • 52 м²
    • 2-ком
    • 3/9 эт.
    5 790 000 Р
    Агент
    +7 (912) Показать номер
    Посмотреть контакты
    2-к кв. Тюменская область, Тюмень ул. Западносибирская, 14 (50.5 м) - Фото 1
    2-к кв. Тюменская область, Тюмень ул. Западносибирская, 14 (50.5 м) - Фото 2
    2-комнатная квартира, общая площадь 50м², кухня 9м²

    Продается двухкомнатная квартира с ремонтом в тихом, но динамично развивающемся районе вблизи центра города. Классическая планировка с комнатами правильной формы: кухня около 9квм, раздельный санузел, прихожая, две изолированный спальни и балкон. Выполнен...
    • 50 м²
    • 2-ком
    • 10/10 эт.
    • панельный
    5 600 000 Р
    Агент
    +7 (912) Показать номер
    Посмотреть контакты
    3-к кв. Тюменская область, Тюмень ул. Боровская, 5 (66.5 м) - Фото 1
    3-к кв. Тюменская область, Тюмень ул. Боровская, 5 (66.5 м) - Фото 2
    3-комнатная квартира, общая площадь 66м², кухня 10м²

    Мечтаете купить квартиу?Предлагаю уютную трехкомнатную квартиру - распашонку, которая станет идеальным пространством для вашей семьи. По адресу ул. Боровская 5, район Войновки.В квартире остаются вся мебель и техника, что позволит вам сразу же комфортно...
    • 66 м²
    • 3-ком
    • 1/9 эт.
    • панельный
    5 600 000 Р
    Агент
    +7 (982) Показать номер
    Посмотреть контакты

    Не нашли подходящего объявления?

    Оставьте заявку, и наши риэлторы подберут квартиру в районе Тюмени

    (0)